Crompton Way, Bolton, Greater Manchester, BL1 8TJ

GBP 140000 For Sale

Property Details

Property Type

Ask agent

Description

Property Details: • Type: Ask agent • Tenure: N/A • Floor Area: N/A

Key Features:

Location: • Nearest Station: Hall i' th' Wood Station • Distance to Station: 0.6 miles

Agent Information: • Address: Burden House, 2-10 Bradshawgate, Bolton, BL1 1DG

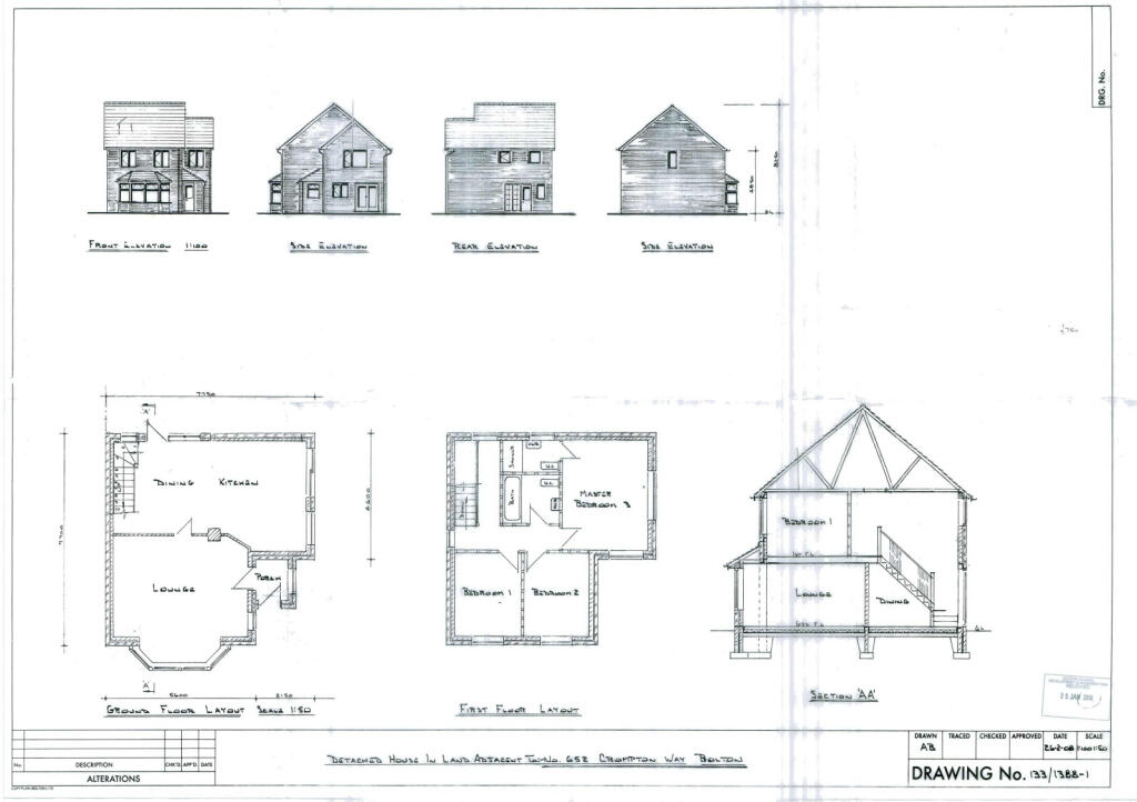
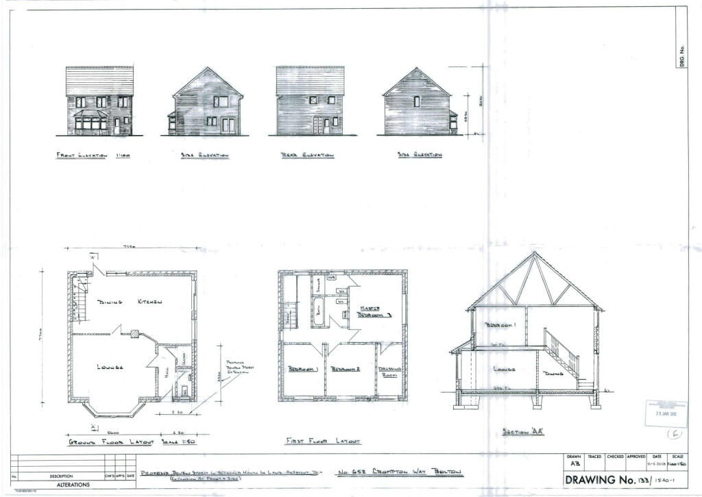
Full Description: PLOT FOR SALE, WITH PLANNING PERMISSION!We are delighted to market this fabulous development opportunity for a three bedroom detached property in a popular location in Bolton, with full detailed planning. The footings and drainage have already been completed with some additional martials to be included in the sale.Positioned in Astley Bridge, offering excellent commuting facilities and amenities and also within close proximity to Bolton Town Centre.Please contact Miller Metcalfe Commercial for more information.

Location

Address

Crompton Way, Bolton, Greater Manchester, BL1 8TJ

City

Bolton

Legal Notice

Our comprehensive database is populated by our meticulous research and analysis of public data. MirrorRealEstate strives for accuracy and we make every effort to verify the information. However, MirrorRealEstate is not liable for the use or misuse of the site's information. The information displayed on MirrorRealEstate.com is for reference only.

Real Estate Broker
Miller Metcalfe, Bolton
Brokerage
Miller Metcalfe, Bolton
Top Tags
Likes

0

Views

90

This website uses cookies to ensure you get the best experience. Learn more