Cromwell Park Place, Folkestone, CT20
Property Details
Land
Description
Property Details: • Type: Land • Tenure: N/A • Floor Area: N/A
Key Features: • 3 Bed Semi Detached House • No Chain • 2195 sq ft Plot • 21/0810/FH • Self Build
Location: • Nearest Station: Folkestone West Station • Distance to Station: 0.8 miles
Agent Information: • Address: Suite 1-2 Motis Business Centre, Cheriton High Street, Folkestone, Kent, CT19 4QJ
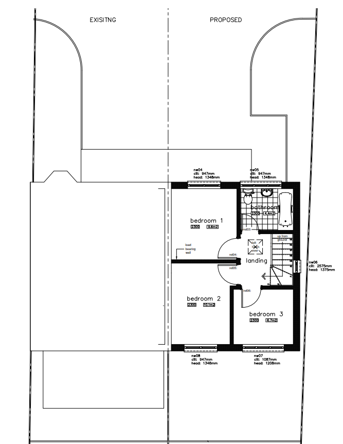
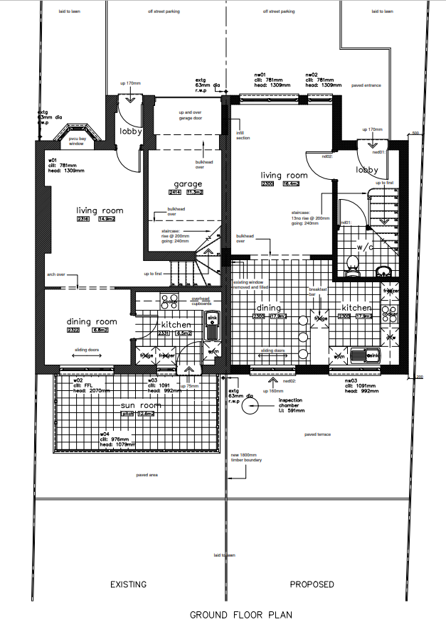
Full Description: Number 41 Cromwell Park Place is located within a well established residential area to the West of Folkestone/Cheriton. The pleasant neighbourhood was constructed in the late 1980's using traditional masonry construction techniques and contains a wide pallet of materials as well as a variety of dwellings including two, three and four bedroom houses in mixed forms being either detached, semi-detached or large terraces. The site location benefits from close vehicular transport links such as the M20 and A2 Motorways as well as having great public transport links including the high speed link to London via Folkestone West Train Station and local bus routes. Within close proximity to the site, Cheriton also provides many other facilities such as supermarkets, post offices, pharmacies, banks, service stations, local shops, large green spaces, doctor surgeries, dental practices, primary schools and secondary schools.Number 41 Cromwell Park Place is a detached two storey, three bedroom ,residential dwelling with a pitched roof clad with concrete pan tiles that spans predominately front to rear with a small dormer to the south elevation. The front, rear and sidle elevations are finished with facing brickwork with white UPVC rainwater goods, windows and doors. There is a disused timber shed to the Western side of the site as outlined above, however the intention is to remove this to facilitate for the footprint of the new proposed dwelling. The site is very well defined with the boundary that serves the front and side of the property to the South and West being served via an 1800mm high timber fence. There is an overly large area of hard standing to the front of the existing dwelling which currently provides off street parking for several vehicles. The rear boundary that faces North is lined with an 1800mm timber boundary fence, so too is the Eastern boundary.Being the last detached property from the row of four dwellings (East to West) number 41 has sizeable gardens to the front and rear which is comparable to other local dwellings (see amenity space study below) but where it benefits is with the extra of the side garden between the dwelling and the adjacent properties situated on Fairfax Close.The proposed development is for one adjoining residential dwelling by which will mimic the footprint of the existing dwelling at Number 41 Cromwell Park Place. As a whole the existing site has a total area of approximately 407m2 and when subdivided Number 41 will retain a site area of 203m2 with 204m2 being dedicated to the new proposed dwelling. Both the existing and the new dwelling will have almost identical footprints being 52.1m2 (existing) and 49.8m2 (proposed) over each of the two storeys.The application site can comfortably accommodate the proposed dwelling whiist fully respecting the existing context of Cromwell Park Place, all neighbouring properties. existing details, layouts, privacy requirements, overlooking and overshadowing.Off road parking for several vehicles is currently available within the large expanse of hard standing to the front of the existing dwelling, this area of existing parking available will be subdivided into self-contained parking areas for both dwellings. Each dwelling will have a minimum of two parking spaces and will also be accompanied by an integral turning area.Planning Reference: 21/0810/FHPrice: Offers in excess of £100,000 (no VAT)If you would like any further information then please don't hesitate to contact Motis Estates.BrochuresBrochure
Location
Address
Cromwell Park Place, Folkestone, CT20
City
Folkestone
Features and Finishes
3 Bed Semi Detached House, No Chain, 2195 sq ft Plot, 21/0810/FH, Self Build
Legal Notice
Our comprehensive database is populated by our meticulous research and analysis of public data. MirrorRealEstate strives for accuracy and we make every effort to verify the information. However, MirrorRealEstate is not liable for the use or misuse of the site's information. The information displayed on MirrorRealEstate.com is for reference only.