Crystal Business Centre, Sandwich, Kent, CT13

GBP 900 For Rent

Property Details

Property Type

1,367 sq ft

Description

Property Details: • Type: 1,367 sq ft • Tenure: N/A • Floor Area: N/A

Key Features: • Light Industrial & Office Unit To Let • Ground Floor Storage Approx. 72m2 (774sqft) • First Floor Offices/Show Room Approx. 55m2 (593sqft) • Parking For Up to 3 Vehicles • Roller Shutter Delivery & Personal Access • New FRI Commercial Lease • Kitchenette & W.C. • New 3 Year Minimum Lease Available

Location: • Nearest Station: Sandwich Station • Distance to Station: 0.7 miles

Agent Information: • Address: 44 High Street, Broadstairs, CT10 1JT

Full Description: These commercial premises are located within the heart of the Sandwich Industrial Estate on the outskirts of Sandwich. The ground floor benefits from a roller shutter delivery access and a separate personal door. There is also a small kitchenette area and a W.C. The first floor mezzanine level is currently set out as offices/showroom and storage.

The premises may be suitable for a number of commercial uses, subject to Landlord's approval and any necessary Estate & Planning Consents. We understand the premises benefits from a 3-Phase electrical supply. Externally there is parking at the front for up to three vehicles.

The premises are vacant and available for immediate use subject to agreeing new lease terms. The Landlord is offering a new Full Repairing & Insuring Commercial Lease with a minimum of three years.

Location: Crystal Business Park is located within the Sandwich Industrial Estate on the outskirts of Sandwich with easy access to Dover, Ramsgate & Canterbury and all major road connections.

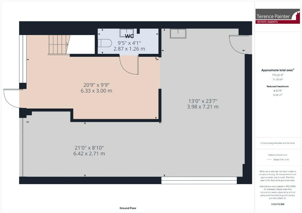
Entrance Access: Access to the unit is via steel roller shutter and steel pedestrian access doors.

Pedestrian Access & Storage Area: 6.43m x 3.58m max narrowing to 3m (21' 1" x 11' 9">9'10) Steel pedestrian door with internal steel security gate. Window to front with internal security bars. Strip lighting. Concrete flooring. Electric meter and water stop-cock. Stairs leading to first floor mezzanine level. Open to further storage area and kitchenette. Door to W.C.

W.C. Fitted with low level W.C. and wash hand basin. Concrete flooring.

Storage Area & Kitchenette: 7.23m x 4.01m (23' 9" x 13' 2") Window to side with internal security bars. Concrete flooring. Kitchenette area with range of fitted cupboards and stainless steel sink inset to work surface area. Open to:

Delivery Access Bay & Storage Area: 6.41m x 2.80m widening to 3.23m (21' 0" x 9' 2" < 10'7") Steel roller shutter door approx. 3m high x 2.8m wide (9'10" x 9'2") leading to delivery bay with fitted shelving. Concrete flooring and strip lighting.

FIRST FLOOR

Central Office/Show Room: 5.47m x 3.59m max (17' 11" x 11' 9" max) Carpet flooring. With ceiling lights and access to three further offices/rooms.

Office & Store Room: Overall measurement of 5.46m x 3.58m (17' 11" x 11' 9"). Carpet and laminate flooring. Window overlooking central office.

Office: 3.30m x 2.81m narrowing to 1.62m (10' 10" x 9' 3">5'4") Carpet flooring. Ceiling lights. Glazed doors overlooking central office.

Office/Store Room: 3.15m x 1.57m (10' 4" x 5' 2") Carpet flooring. Ceiling lights. Glazed doors overlooking central office.

Parking: There is private parking and delivery access at the front of the building for up to three vehicles.

Lease terms: The Landlords are offering a new Full Repairing & Insuring Lease for a minimum term of three years. The Landlords are seeking a rent of £900 per calendar month (£10,800 per annum) exclusive of Business Rates, Insurance, utilities & Estate Management Service Charges. Three months rent required as a deposit. We understand that the rent does not attract any VAT. Internal non-structural alterations are permitted, subject to Landlords approval. Restrictions: No motor trade, motor repairs or joinery workshop use.

Services: We understand the premises benefits from a 3-phase electrical supply and mains water. No gas.

Business Rates: The current Rateable Value is £6,800.

Estate Management Service Charge: There is an Estate Management service charge applicable, which is £628 for the current year.

Viewing: Strictly by appointment with the Agents Terence Painter Estate Agents onEnergy Performance CertificatesEPC 1EPC 2

Location

Address

Crystal Business Centre, Sandwich, Kent, CT13

Features and Finishes

Light Industrial & Office Unit To Let, Ground Floor Storage Approx. 72m2 (774sqft), First Floor Offices/Show Room Approx. 55m2 (593sqft), Parking For Up to 3 Vehicles, Roller Shutter Delivery & Personal Access, New FRI Commercial Lease, Kitchenette & W.C., New 3 Year Minimum Lease Available

Legal Notice

Our comprehensive database is populated by our meticulous research and analysis of public data. MirrorRealEstate strives for accuracy and we make every effort to verify the information. However, MirrorRealEstate is not liable for the use or misuse of the site's information. The information displayed on MirrorRealEstate.com is for reference only.

Real Estate Broker
Terence Painter Estate Agents, Kent
Brokerage
Terence Painter Estate Agents, Kent
Top Tags
Likes

0

Views

83

This website uses cookies to ensure you get the best experience. Learn more