Culgaith, Penrith, CA10

GBP 140000 For Sale

Property Details

Property Type

Plot

Description

Property Details: • Type: Plot • Tenure: N/A • Floor Area: N/A

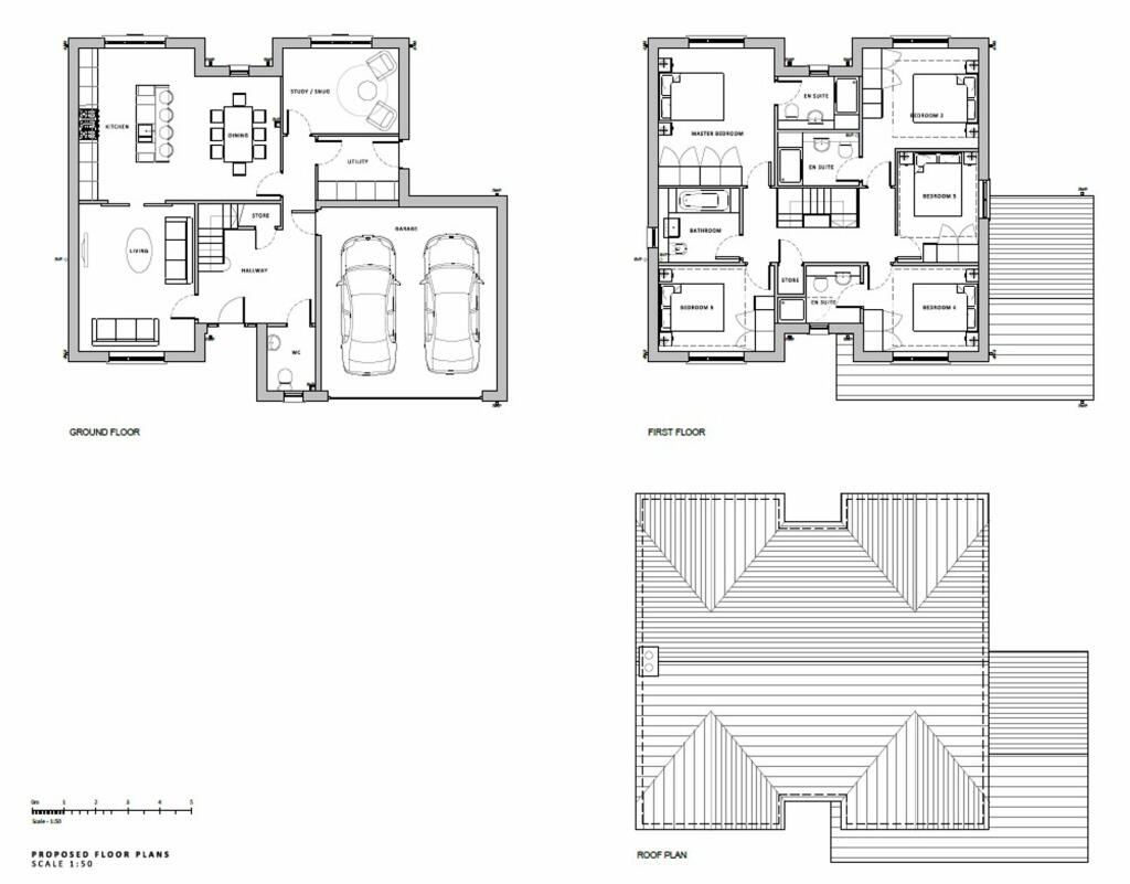
Key Features: • Very generous plot • Reserved matters planning permissions granted • 5 bed det family home • Integral double garage • Build your own executive residence • Popular village • Planning application 21/0430

Location: • Nearest Station: Langwathby Station • Distance to Station: 3.2 miles

Agent Information: • Address: Devonshire Chambers, Devonshire Street, Penrith, CA11 7SS

Full Description: An exciting opportunity to build your own executive residence on a fantastic plot extending to approx. 1900sqm.  With views towards the Lake District fells and enjoying a slightly elevated position, this property has the potential to be a truly magnificent home, whilst being sympathetically constructed using materials which blend with the construction of older properties in the area.Reserved Matters Planning Permission has been granted for a substantial, single detached 5 bed residence on the outskirts of this popular village, with an overall proposed floor area of 171.3sqm (1843.3sqft), excluding the integral double garage (31.9sqm/343.4sqft).Planning Application number 21/0430 refers and is in conjunction with the outline planning granted under reference 17/0502 and the conditions within.We understand that the planning permission has been granted with no occupancy restrictions and that all major services are readily accessible, although we would advise any prospective purchasers to make their own enquiries.  The access to the site has been completed in order to comply with highway standards.Computer Generated ImagesThe use of computer-generated images (CGIs), artists impressions and photographs are for illustrative purposes only and should be treated as general guidance only.Referral & Other PaymentsPFK work with preferred providers for certain services necessary for a house sale or purchase. Our providers price their products competitively, however you are under no obligation to use their services and may wish to compare them against other providers. Should you choose to utilise them PFK will receive a referral fee : Napthens LLP, Bendles LLP, Scott Duff & Co, Knights PLC, Newtons Ltd - completion of sale or purchase - £120 to £210 per transaction; Pollard & Scott/Independent Mortgage Advisors – arrangement of mortgage & other products/insurances - average referral fee earned in 2022 was £260.48; M & G EPCs Ltd - EPC/Floorplan Referrals - EPC & Floorplan £35.00, EPC only £24.00, Floorplan only £6.00. All figures quoted are inclusive of VAT.ServicesWe are advised all major services are readily accessible, but prospective purchasers should make their own enquiries.DirectionsWhat3Words - ants.forgotten.novelist

From Penrith take the A66 east. Proceed for approx. 5 miles then take the exit signposted Temple Sowerby and Culgaith. Turn right at the bottom of the slip road then take the next two left turns and continue to the bottom of the village. The site can be found on the right hand side at the bottom of the hill and a 'For Sale' board has been erected for identification purposes.BrochuresBrochure 1

Location

Address

Culgaith, Penrith, CA10

City

Penrith

Features and Finishes

Very generous plot, Reserved matters planning permissions granted, 5 bed det family home, Integral double garage, Build your own executive residence, Popular village, Planning application 21/0430

Legal Notice

Our comprehensive database is populated by our meticulous research and analysis of public data. MirrorRealEstate strives for accuracy and we make every effort to verify the information. However, MirrorRealEstate is not liable for the use or misuse of the site's information. The information displayed on MirrorRealEstate.com is for reference only.

Real Estate Broker
PFK, Penrith
Brokerage
PFK, Penrith
Top Tags
Popular village
Likes

0

Views

54

This website uses cookies to ensure you get the best experience. Learn more