Cuthbert House, Cooperative Street, Chester Le Street, DH3

GBP 145000 For Sale

Property Details

Bedrooms

2

Bathrooms

2

Property Type

Flat

Description

Property Details: • Type: Flat • Tenure: N/A • Floor Area: N/A

Key Features: • Spacious First Floor apartment • Town Centre Location • Two Double Bedrooms - Master With En-Suite Shower Room • Large Open Plan Living Area • Transport links on Doorstep • Secure Entry • 10 Year Insurance Backed Guarantee

Location: • Nearest Station: N/A • Distance to Station: N/A

Agent Information: • Address: 3 Front Street, Chester Le Street, DH3 3BQ

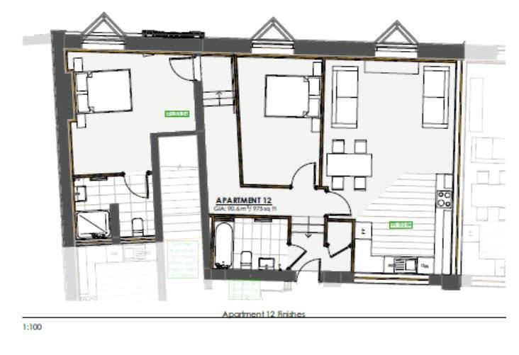
Full Description: A new luxury apartment suited to retirement purchasers, conveniently situated within walking distance of shops and facilities in Chester le Street.Cuthbert House is a development of high quality apartments located in the town centre of Chester Le Street. Made up of one, two and three bedroom properties, all of which feature well proportioned rooms which in every case, come together to make truly spectacular places to live.Apartment number twelve is one of a kind. The interesting layout includes the only en suite shower room in the whole complex and it faces onto the back of Co-operative street.“Cuthbert House” is a new development of luxury apartments located in the heart of this bustling market town. Consisting of one, two and three bedroom properties with spacious living areas, contemporary kitchen and bathrooms. Perfectly located for town centre living, all the facilities of Chester Le Street are right on the doorstep, from shops, bars and restaurants, to transport links, health care and education. Chester Le street is located on the East Coast main railway line, meaning residents can be in either Durham or Newcastle in a few short minutes. Entrance HallFitted Storage cupboard, wall mounted telephone for secure entry systemLiving / dining / kitchen7.6m x 4.7mTo Side. Wall mounted night storage heater, telephone connection socket, sky fibre connection point, television aerial connection point, fully fitted kitchen in grey comprising of floor and wall mounted units with worktops and splash backs. Integrated appliances comprising of dishwasher, automatic washer dryer, fridge freezer, electric oven, hob and chrome chimney style extractor above.Bedroom 14.5mMax x 4.32mmax - To side. Wall mounted panel heater, television aerial connection pointEnsuite shower room2.8m x 2.16mFully fitted suite in white comprising of pedestal wash basin with mixer tap and Low level wc with cistern. Wall mounted chrome towel heater, separate shower cubicle, shaver pointBedroom 24.5m x 3.7mTo Side. Wall mounted panel heater, television aerial connection pointBathroom2.6m x 1.8mFully fitted bathroom suite in white comprising of bath with side panel and mixer tap, pedestal wash basin with mixer tap and Low level wc with cistern. Wall mounted chrome towel heater, shaver pointPictures are taken from Show apartments and are for illustrative purposes only.BrochuresWeb Details

Location

Address

Cuthbert House, Cooperative Street, Chester Le Street, DH3

City

Chester-le-Street District

Features and Finishes

Spacious First Floor apartment, Town Centre Location, Two Double Bedrooms - Master With En-Suite Shower Room, Large Open Plan Living Area, Transport links on Doorstep, Secure Entry, 10 Year Insurance Backed Guarantee

Legal Notice

Our comprehensive database is populated by our meticulous research and analysis of public data. MirrorRealEstate strives for accuracy and we make every effort to verify the information. However, MirrorRealEstate is not liable for the use or misuse of the site's information. The information displayed on MirrorRealEstate.com is for reference only.

Real Estate Broker
J W Wood, Chester Le Street
Brokerage
J W Wood, Chester Le Street
Top Tags
Likes

0

Views

56

This website uses cookies to ensure you get the best experience. Learn more