Cuthbert House, Cooperative Street, Chester Le Street, DH3

GBP 140000 For Sale

Property Details

Property Type

Flat

Description

Property Details: • Type: Flat • Tenure: N/A • Floor Area: N/A

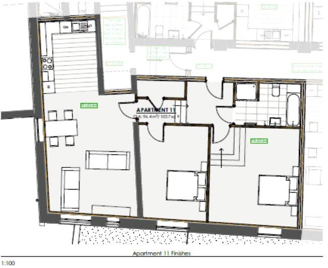
Key Features: • Spacious First Floor apartment • Town Centre Location • Two Double Bedrooms • Large Open Plan Living Area • Transport links on Doorstep • Secure Entry • 10 Year Insurance Backed Guarantee

Location: • Nearest Station: N/A • Distance to Station: N/A

Agent Information: • Address: 3 Front Street, Chester Le Street, DH3 3BQ

Full Description: Apartment eleven is very spacious with a large open plan living space with contemporary kitchen. The property has two double bedrooms, a large hallway with reception area and a bathroom with modern fittings and a separate shower.“Cuthbert House” is a new development of luxury apartments located in the heart of this bustling market town. Consisting of one, two and three bedroom properties with spacious living areas, contemporary kitchen and bathrooms. Perfectly located for town centre living, all the facilities of Chester Le Street are right on the doorstep, from shops, bars and restaurants, to transport links, health care and education. Chester Le street is located on the East Coast main railway line, meaning residents can be in either Durham or Newcastle in a few short minutes.Entrance HallFitted storage cupboard, wall mounted telephone for secure entry systemBathroom3.45m x 1.96mFully fitted bathroom suite in white comprising of bath with side and end panel and mixer tap, pedestal wash basin with mixer tap and Low level wc with cistern. Wall mounted chrome towel heater, separate shower cubicle, shaver pointBedroom 15.16m x 4.52mTo Rear. Wall mounted panel heater, television aerial connection pointBedroom 25m x 3.48mTo Rear. Wall mounted panel heater, television aerial connection pointLiving / dining / kitchen9.5m max x 4.1m Max - To side and Rear. Wall mounted panel heater, telephone connection socket, sky fibre connection point, television aerial connection point, fully fitted kitchen in grey comprising of floor and wall mounted units with worktops. Integrated appliances comprising of dishwasher, automatic washer dryer, fridge freezer, electric oven, hob and chrome chimney style extractor above.Images taken from Show apartments and are for ilustrative purposes only.BrochuresWeb Details

Location

Address

Cuthbert House, Cooperative Street, Chester Le Street, DH3

City

Chester-le-Street District

Features and Finishes

Spacious First Floor apartment, Town Centre Location, Two Double Bedrooms, Large Open Plan Living Area, Transport links on Doorstep, Secure Entry, 10 Year Insurance Backed Guarantee

Legal Notice

Our comprehensive database is populated by our meticulous research and analysis of public data. MirrorRealEstate strives for accuracy and we make every effort to verify the information. However, MirrorRealEstate is not liable for the use or misuse of the site's information. The information displayed on MirrorRealEstate.com is for reference only.

Real Estate Broker
J W Wood, Chester Le Street
Brokerage
J W Wood, Chester Le Street
Top Tags
Two Double Bedrooms
Likes

0

Views

22

This website uses cookies to ensure you get the best experience. Learn more