Cuthbert House, Cooperative Street, Chester Le Street, DH3

GBP 150000 For Sale

Property Details

Bedrooms

2

Bathrooms

1

Property Type

Flat

Description

Property Details: • Type: Flat • Tenure: N/A • Floor Area: N/A

Key Features: • Spacious First Floor apartment • Town Centre Location • Two Double Bedrooms • Large Open Plan Living Area • Transport links on Doorstep • Secure Entry • 10 Year Insurance Backed Guarantee • Allocated parking space

Location: • Nearest Station: N/A • Distance to Station: N/A

Agent Information: • Address: 3 Front Street, Chester Le Street, DH3 3BQ

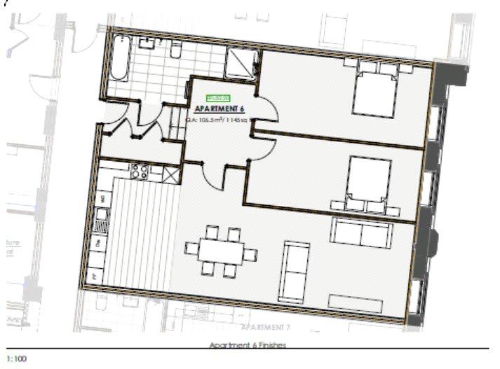
Full Description: A new luxury apartment suited to a wide variety of purchasers, conveniently situated within walking distance of shops and facilities in Chester le StreetApartment number six is one of four similarly laid out properties facing the front street. These are very spacious indeed and the bedrooms in particular are very large. The open plan kitchen / living / dining room is very bright and the hallways of these properties are almost a room in themselves and as such could well be used for a pleasant reading spot or make up area. The apartment again benefits from storage in the entrance lobby. The property also benefits from an allocated parking space.Cuthbert House is a development of high quality apartments located in the town centre of Chester Le Street. Made up of one, two and three bedroom properties, all of which feature well proportioned rooms which in every case, come together to make truly spectacular places to live.High ceilings, spacious hallways, high quality fixtures and fittings throughout set these properties out as arguably some of the best in Chester Le Street, if not, county Durham. The apartments come with floor coverings and fully fitted kitchens with integrated appliances made up of fridge freezers, washing machines, dishwashers, gas hobs, electrical ovens and extractors. Cuthbert house is perfectly located for town centre living and as such has all the facilities of Chester Le Street right on the doorstep, from shops, bars and restaurants, to transport links, health care and education. Chester Le street is located on the East Coast main railway line, meaning residents can be in either Durham or Newcastle in a few short minutes.Entrance HallFitted storage cupboard, Wall mounted telephone for secure entry systemBathroom5.3m x 2.3mFully fitted bathroom suite in white comprising of bath with side and end panel and mixer tap, pedestal wash basin with mixer tap and Low level wc with cistern. Wall mounted chrome towel heater, separate shower cubicle, shaver pointBedroom 16.2m x 2.9mTo Front. Wall mounted panel heater, television aerial connection pointBedroom 26.2m x 2.51mTo Front. Wall mounted panel heater, television aerial connection pointLiving / dining / kitchen11.6m x 3.4mTo Front. Two wall mounted storage heaters, telephone connection socket, sky fibre connection point, television aerial connection point, fully fitted kitchen in grey comprising of floor and wall mounted units with worktops. Integrated appliances comprising of dishwasher, automatic washer dryer, fridge freezer, electric oven, gas hob and chrome chimney style extractor above.BrochuresWeb Details

Location

Address

Cuthbert House, Cooperative Street, Chester Le Street, DH3

City

Chester-le-Street District

Features and Finishes

Spacious First Floor apartment, Town Centre Location, Two Double Bedrooms, Large Open Plan Living Area, Transport links on Doorstep, Secure Entry, 10 Year Insurance Backed Guarantee, Allocated parking space

Legal Notice

Our comprehensive database is populated by our meticulous research and analysis of public data. MirrorRealEstate strives for accuracy and we make every effort to verify the information. However, MirrorRealEstate is not liable for the use or misuse of the site's information. The information displayed on MirrorRealEstate.com is for reference only.

Real Estate Broker
J W Wood, Chester Le Street
Brokerage
J W Wood, Chester Le Street
Top Tags
Two Double Bedrooms
Likes

0

Views

57

This website uses cookies to ensure you get the best experience. Learn more