Cuthbert House, Cooperative Street, Chester Le Street, DH3

GBP 145000 For Sale

Property Details

Property Type

Flat

Description

Property Details: • Type: Flat • Tenure: N/A • Floor Area: N/A

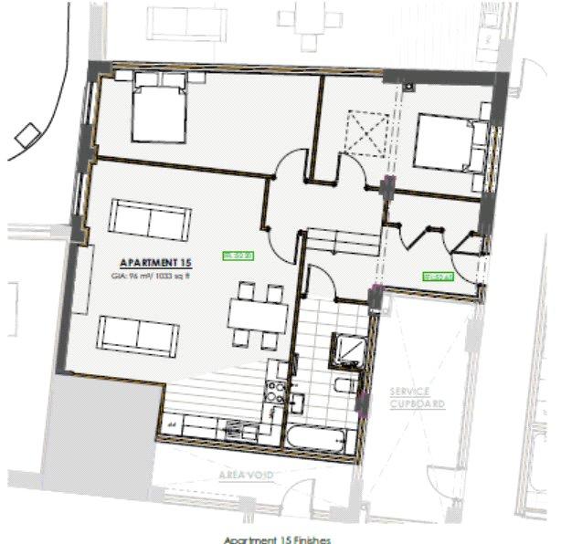
Key Features: • Spacious First Floor apartment • Town Centre Location • Two Double Bedrooms • Large Open Plan Living Area • Transport links on Doorstep • Secure Entry • 10 Year Insurance Backed Guarantee

Location: • Nearest Station: N/A • Distance to Station: N/A

Agent Information: • Address: 3 Front Street, Chester Le Street, DH3 3BQ

Full Description: A new luxury apartment suited to a wide variety of purchasers, conveniently situated within walking distance of shops and facilities in Chester le StreetApartment number fifteen faces to the rear of the development and boasts a spacious living area with a great "Loft" feel to it. The second bedroom features electronically, remote controlled sky lights, whilst the main bedroom is generously proportioned. The hallway in this property is big enough for a pleasant reading spot.Cuthbert House is a development of high quality apartments located in the town centre of Chester Le Street. Made up of one, two and three bedroom properties, all of which feature well proportioned rooms which in every case, come together to make truly spectacular places to live.High ceilings, spacious hallways, high quality fixtures and fittings throughout set these properties out as arguably some of the best in Chester Le Street, if not, county Durham. The apartments come with floor coverings and fully fitted kitchens with integrated appliances made up of fridge freezers, washing machines, dishwashers, electrical hob, oven and extractor. Cuthbert house is perfectly located for town centre living and as such has all the facilities of Chester Le Street right on the doorstep, from shops, bars and restaurants, to transport links, health care and education. Chester Le street is located on the East Coast main railway line, meaning residents can be in either Durham or Newcastle in a few short minutes.BrochuresWeb Details

Location

Address

Cuthbert House, Cooperative Street, Chester Le Street, DH3

City

Chester-le-Street District

Features and Finishes

Spacious First Floor apartment, Town Centre Location, Two Double Bedrooms, Large Open Plan Living Area, Transport links on Doorstep, Secure Entry, 10 Year Insurance Backed Guarantee

Legal Notice

Our comprehensive database is populated by our meticulous research and analysis of public data. MirrorRealEstate strives for accuracy and we make every effort to verify the information. However, MirrorRealEstate is not liable for the use or misuse of the site's information. The information displayed on MirrorRealEstate.com is for reference only.

Real Estate Broker
J W Wood, Chester Le Street
Brokerage
J W Wood, Chester Le Street
Top Tags
Two Double Bedrooms
Likes

0

Views

31

This website uses cookies to ensure you get the best experience. Learn more