Danesbury Park Road, Welwyn, Hertfordshire, AL6

GBP 650000 For Sale

Property Details

Property Type

Land

Description

Property Details: • Type: Land • Tenure: N/A • Floor Area: N/A

Key Features: • Plot with planning for two residential dwellings • Around 6 acres in total • Possibility of creating one residential unit (subject to a new planning application) • Stunning views and a rare opportunity to buy a plot like this • Extra land subject to separate negotiation

Location: • Nearest Station: Welwyn North Station • Distance to Station: 1.4 miles

Agent Information: • Address: 2 Station Road, Harpenden, AL5 4SD

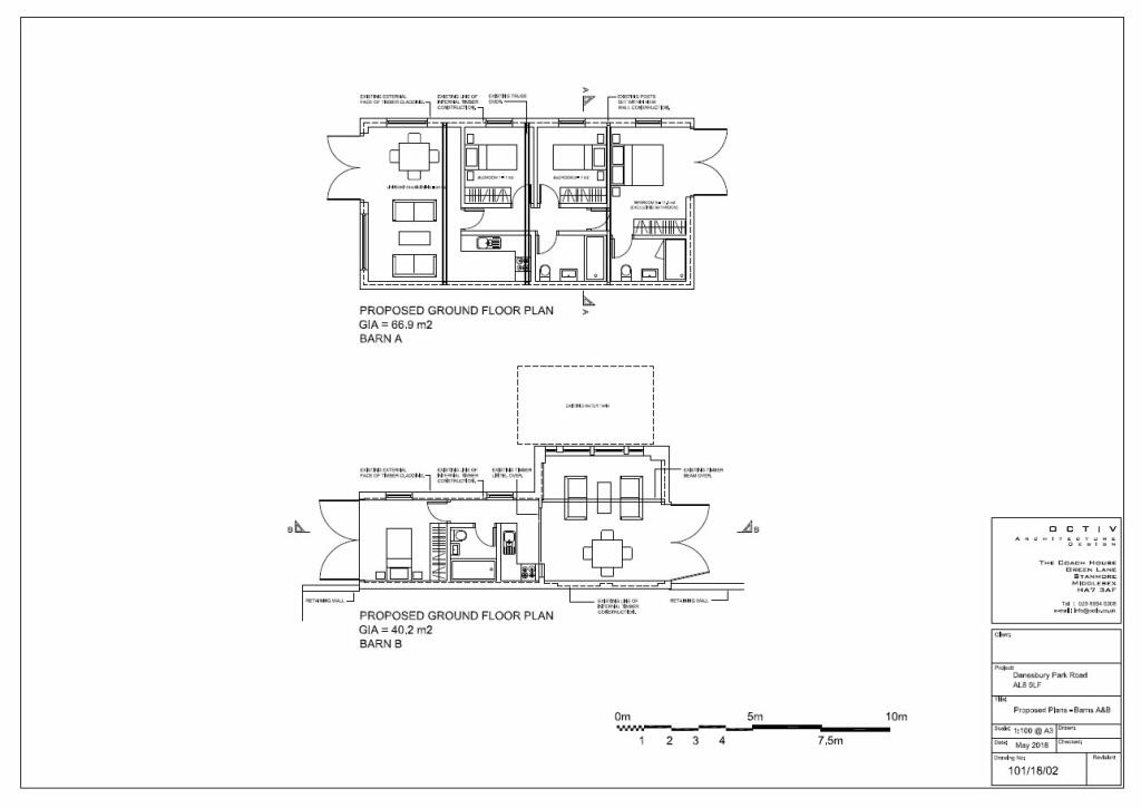
Full Description: Plot for sale with planning for two brand new residential dwellings. DescriptionThis stunning plot offers a rare opportunity to build two brand new dwellings, which have previously been approved but now expired, or subject to a new planning application, build one brand new residential dwelling all set in around 6 acres.Formerly part of a nine hole golf course, this wonderful parcel of land enjoys beautiful views, privacy but more importantly offers a unique opportunity to build your own home subject to planning.There is additional land potentially available by separate negotiation.North Hertfordshire Planning portal ref - 20/01677/FPLocationMileages approx; Old Welwyn 1.1 Miles, Welwyn North Station 2.9 Miles with direct line to London Kings Cross from 24 minutes, Welwyn Garden City 4.3 Miles, A1(M) 1.4 Miles The land is set off Danesbury Park Road which is a private road in this much sought after location , just on the outskirts of Old Welwyn. Just over a mile away is the picturesque village of Old Welwyn which is rich in history and located on the banks of the river Mimram. The streets are home to a selection of general and specialist shops, pubs and restaurants, doctors and dentists surgeries, which all give the village a busy, vibrant feel. Welwyn Garden City is approximately 5 miles south and has a number of leisure facilities, a shopping centre with a department store and Waitrose supermarket.There are rail links in both Welwyn Garden City and also at the nearby villages of Knebworth & Digswell (Welwyn North) which are approximately 5 minutes by car.Extensive schooling is widely available in the area, including Sherrardswood School, Heathmount, Princess Helena’s College, Kingshot, Haileybury College and private school buses pick up locally for schools further afield.The locality offers many private and public golf courses, including both the championship courses at Hanbury Manor and Brocket Hall. There is also a branch of the popular Odyssey Health Club at nearby Knebworth.

Acreage: 5.9 AcresBrochuresWeb DetailsParticulars

Location

Address

Danesbury Park Road, Welwyn, Hertfordshire, AL6

City

Hertfordshire

Features and Finishes

Plot with planning for two residential dwellings, Around 6 acres in total, Possibility of creating one residential unit (subject to a new planning application), Stunning views and a rare opportunity to buy a plot like this, Extra land subject to separate negotiation

Legal Notice

Our comprehensive database is populated by our meticulous research and analysis of public data. MirrorRealEstate strives for accuracy and we make every effort to verify the information. However, MirrorRealEstate is not liable for the use or misuse of the site's information. The information displayed on MirrorRealEstate.com is for reference only.

Real Estate Broker
Savills, Harpenden
Brokerage
Savills, Harpenden
Top Tags
Likes

0

Views

120

This website uses cookies to ensure you get the best experience. Learn more