Danesbury Park Road, Welwyn, Hertfordshire, AL6
Property Details
Bungalow
Description
Property Details: • Type: Bungalow • Tenure: FREEHOLD • Floor Area: N/A
Key Features: • Development plot of about 0.42 acres • Plans passed for a contemporary four bedroom house • Award winning architect design • Private road • Existing house could be refurbished • EPC Rating = E
Location: • Nearest Station: Knebworth Station • Distance to Station: 1.7789556818375685 miles
Agent Information: • Address: 2 Station Road, Harpenden, AL5 4SD
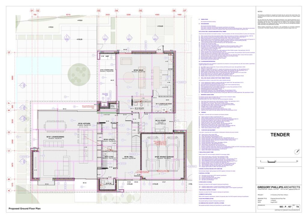
Full Description: Plot of about 0.42 acres with chalet style house and planning consent to build a contemporary new house<br /><br /> <b>Description</b><br /><br />A rare opportunity to acquire a plot of about 0.42 of an acre, prominently located within Danesbury Park Road, an exclusive private road made up of high quality individual detached houses. <br /><br />At present the site has a two storey detached chalet bungalow that has fallen into a state of some disrepair and would need substantial internal refurbishment. Alternatively, planning consent has been granted for the demolition of the existing property and replacement with a contemporary four bedroom house designed by award winning architects GPA design features a part single, part two storey flat roof form. Materials would include brick, timber cladding, render, hung tiles, and aluminium glazing. The consent runs until 23 January 2027 and can be viewed on the North Herts planning portal, reference 23/02207/FP.<br /><br /> <br /><br />The plot is broadly square with a road frontage of approximately 137 ft, an overall size of about 0.42 acres. The site is slightly elevated above the road and there are a number of very attractive mature conifers that add character to the grounds.<br /><br />Residents of Danesbury Park Road are required to contribute to the upkeep of the road.<br /><br />Option1: 400m2 Gregory Philips Grand Design ready to start building tomorrow<br />- Planning granted and runs to 2027.<br />- Bat studies completed<br />- Building Regs pre-approval granted<br />- 30 trees removed in preparation for construction<br />- Plot already secured with hoarding<br />- Project is tender ready<br /><br />Option 2: Renovate existing 350m2 buildings<br />- Requires extensive structural work to floors and roofs<br />- Requires complete internal repair and redecoration<br /><br /><br /> <br /> <br />Acreage: 0.42 Acres
Location
Address
Danesbury Park Road, Welwyn, Hertfordshire, AL6
City
Hertfordshire
Features and Finishes
Development plot of about 0.42 acres, Plans passed for a contemporary four bedroom house, Award winning architect design, Private road, Existing house could be refurbished, EPC Rating = E
Legal Notice
Our comprehensive database is populated by our meticulous research and analysis of public data. MirrorRealEstate strives for accuracy and we make every effort to verify the information. However, MirrorRealEstate is not liable for the use or misuse of the site's information. The information displayed on MirrorRealEstate.com is for reference only.