Dawlish Road, Birmingham, West Midlands, B29

GBP 345000 For Sale

Property Details

Bedrooms

3

Property Type

Terraced

Description

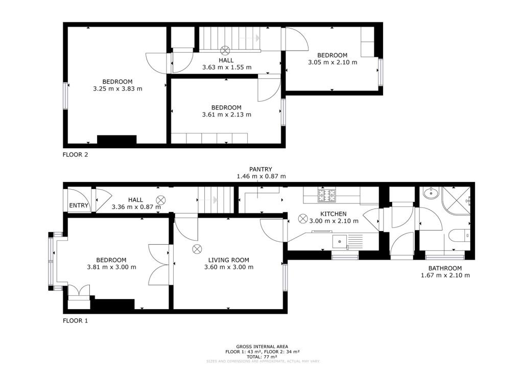
Property Details: • Type: Terraced • Tenure: Freehold • Floor Area: N/A

Key Features: • NO UPWARD CHAIN • STUDENT INVESTMENT PROPERTY • PRIME LOCATION • CALL OAKMANS

Location: • Nearest Station: N/A • Distance to Station: N/A

Agent Information: • Address: 2, Katie Road, Selly Oak, Birmingham B29 6JG

Full Description: ** NO UPWARD CHAIN ** ** FULLY COMPLIANT & MANAGED HMO ** ** STUDENT INVESTMENT PROPERTY ** ** CALL OAKMANS TODAY ** ** 2026/2027 ACADEMIC YEAR – £97 PPPW***Set in the main student area, this is a prime student location, within walking distance to The University of Birmingham. There are also multiple transport links such as Selly Oak Train Station and bus routes along the A38. Being conveniently central to various bars, restaurants and retail, properties in this location are extremely popular and will go quickly, Call Oakmans Today To Arrange Your Viewing!We have been advised by the owner that the property council tax is band is B.Property type: Terraced HouseTenure: FreeholdCouncil Tax Band: BEPC Rating: EConstruction Type: Standard constructionParking Arrangements: On streetMobile Signal Coverage: No known issuesWater Supply: MainsSewerage: MainsElectric: MainsHeating Supply: Electric (No gas central heating).Building Safety Issues: NoSpecial Conditions: NoneFlood Risk or Previous Flooding: NoMine Shafts/Coal Fields/Erosion: NoRestrictions: NoRights and Easements: YesPlanning Permissions: YesLocal Developments: NoAccessibility Adaptations: NoService charge: N/AGround rent: N/AMaterial Information:Please note the material information will need to be confirmed by your conveyancer. Anti-money Laundering Checks (AML)Regulations require us to conduct identity and AML checks and gather information about every buyer's financial circumstances. These checks are essential in fulfilling our Customer Due Diligence obligations, which must be done before any property can be marked as sold subject to contract. The rules are set by law and enforced by trading standards.We will start these checks once you have made a provisionally agreeable offer on a property. The cost is £100 (plus VAT). This fee covers the expense of obtaining relevant data and any necessary manual checks and monitoring. It's paid in advance via our onboarding system, Kotini, and is non-refundable.

Location

Address

Dawlish Road, Birmingham, West Midlands, B29

City

Birmingham

Features and Finishes

NO UPWARD CHAIN, STUDENT INVESTMENT PROPERTY, PRIME LOCATION, CALL OAKMANS

Legal Notice

Our comprehensive database is populated by our meticulous research and analysis of public data. MirrorRealEstate strives for accuracy and we make every effort to verify the information. However, MirrorRealEstate is not liable for the use or misuse of the site's information. The information displayed on MirrorRealEstate.com is for reference only.

Real Estate Broker
Oakmans Estate Agents, Birmingham
Brokerage
Oakmans Estate Agents, Birmingham
Likes

0

Views

13

This website uses cookies to ensure you get the best experience. Learn more