Deebing Heights QLD 4306
Property Details
4
2
New House & Land
Description
Property Details: • Type: New House & Land
• Bedrooms: 4 • Bathrooms: 2
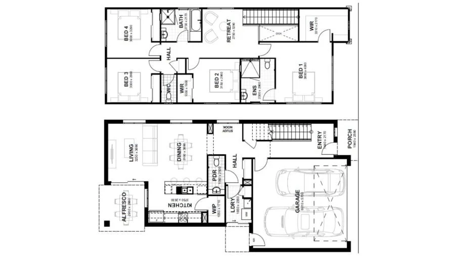
Description: Positioned within the sought-after Highgrove Estate, Deebing Heights, this exceptional house and land package offers a rare combination of generous land size, architectural presence and full turnkey certainty. Set on a substantial 912mò allotment, the Aston 219 - City façade is a contemporary two-level residence delivering space, flexibility and long-term appeal. With approximately 218.64mò of living, the home has been designed for growing families, professionals or buyers wanting room to move without compromising on modern convenience. The ground floor features expansive open-plan living and dining zones that flow seamlessly to the alfresco, creating a natural hub for entertaining and everyday family life. A large kitchen with walk-in pantry anchors the space, while the additional powder room adds functionality rarely found in standard builds. Upstairs, the home offers four generous bedrooms, including a private master suite with ensuite and walk-in robe, plus a separate retreat ideal as a second living area or study zone. Delivered as a full turnkey package, the home includes high-quality finishes throughout, ensuring there are no hidden costs after handover. Premium turnkey inclusions include: 20mm engineered stone benchtops to kitchen & bathrooms Quality tiles and carpet throughout Split-system air-conditioning to main living area & master bedroom LED downlights, ceiling fans and roller blinds Semi-frameless shower screens and freestanding bath Exposed aggregate driveway, alfresco, porch and paths Landscaping with A-grade turf, fencing, letterbox and clothesline Upgraded City façade with rendered and painted cladding elements Multiple turnkey options are available, allowing buyers to tailor the finish level to suit their preferences: Gold Turnkey: $1,461,511 Aurum Turnkey: $1,469,510 Designer Turnkey: $1,477,510 Land is scheduled to register in March 2026, providing time to plan with confidence while locking in today's pricing. Located in Deebing Heights, the property sits within one of Ipswich's most active growth corridors, supported by major infrastructure investment, expanding education and employment hubs, and strong owner-occupier demand. The area benefits from proximity to schools, shopping centres, transport links and easy access to Ipswich CBD and Brisbane. This opportunity is ideal for buyers seeking: A large family home on a rare oversized block Turnkey certainty with premium inclusions Long-term growth in a proven Ipswich location A home that stands apart from standard project offerings Contact Us Now For More Information Aaron Weaver on 0412828702 HOW WE CAN HELP YOU Through our trusted network of builders and land developers across South East Queensland, Asset Property Partners offers a no cost service that helps everyday Australian's make smarter property choices. Let us help you save time and money whilst taking the hassle out of building! Contact Aaron Weaver on 0412828702 or [email protected] to help you find the most suitable property option for you. Disclaimer: Disclaimer: All images and descriptions are indicative and may vary from the final product. All information contained herein is gathered from sources we believe to be reliable. Intending purchasers should satisfy themselves by clarification prior to purchase. Prices stated are subject to availability. All plans are copyright in whole and in part.
Location
Address
Deebing Heights QLD 4306
City
Deebing Heights
Features and Finishes
None
Legal Notice
Our comprehensive database is populated by our meticulous research and analysis of public data. MirrorRealEstate strives for accuracy and we make every effort to verify the information. However, MirrorRealEstate is not liable for the use or misuse of the site's information. The information displayed on MirrorRealEstate.com is for reference only.