Development Opportunity, 5 Esk Avenue, Ramsbottom, Bury
Property Details
4
5
House
Description
Property Details: • Type: House • Tenure: N/A • Floor Area: N/A
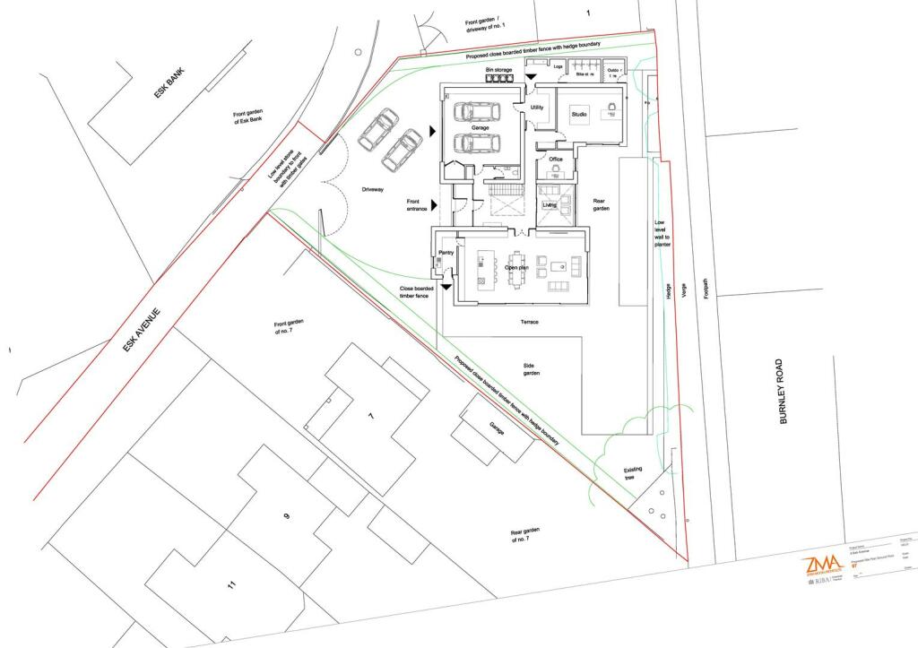
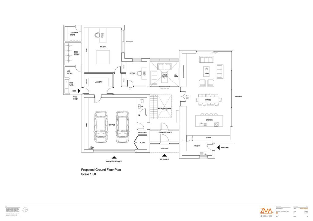
Key Features: • Prestigious and highly desirable location • Well established neighbourhood, with a number of large conversions complete • Agreed planning for demolition and build of a 5 bedroom Eco Home • Plans for the new build can be viewed online under reference 2023/0189 with Rossendale Council • Submitted plans/ subject to approval for the substantial extension of existing house • Plans for the extention can be viewed online under reference 2024/0311 with Rossendale Council
Location: • Nearest Station: N/A • Distance to Station: N/A
Agent Information: • Address: 4 Bolton Street, Ramsbottom, BL0 9HX
Full Description: Charles Louis Homes this unique and exciting offering will suit a variety of buyers, and we expect high demand due to its prime location, and its outstanding potential for development and expansion.The current property has agreed planning for demolition and re-build of an eco home on this substantial site. There is also a second planning application currently under submission for the extension of the current building.Planning images are of the agreed scheme, more information can be found on the Rossendale Planning reference 2023/0189.Located between the market towns of Ramsbottom and Rawtenstall, this property is within walking distance of excellent local schools and shops. It offers easy access to Manchester and beyond via public transport and the motorway network.Planning - Planning images are of the agreed scheme, more information can be found on the Rossendale Planning reference 2023/0189.Ariel Shot Of Plot - Proposed Site Plan - Proposed Ground Floor - Proposed First Floor - Proposed Elevation - BrochuresDevelopment Opportunity, 5 Esk Avenue, Ramsbottom,Planned rebuild videoBrochure
Location
Address
Development Opportunity, 5 Esk Avenue, Ramsbottom, Bury
City
Bury
Features and Finishes
Prestigious and highly desirable location, Well established neighbourhood, with a number of large conversions complete, Agreed planning for demolition and build of a 5 bedroom Eco Home, Plans for the new build can be viewed online under reference 2023/0189 with Rossendale Council, Submitted plans/ subject to approval for the substantial extension of existing house, Plans for the extention can be viewed online under reference 2024/0311 with Rossendale Council
Legal Notice
Our comprehensive database is populated by our meticulous research and analysis of public data. MirrorRealEstate strives for accuracy and we make every effort to verify the information. However, MirrorRealEstate is not liable for the use or misuse of the site's information. The information displayed on MirrorRealEstate.com is for reference only.