Development opportunity, Marston, Nr Great Budworth
Property Details
Plot
Description
Property Details: • Type: Plot • Tenure: N/A • Floor Area: N/A
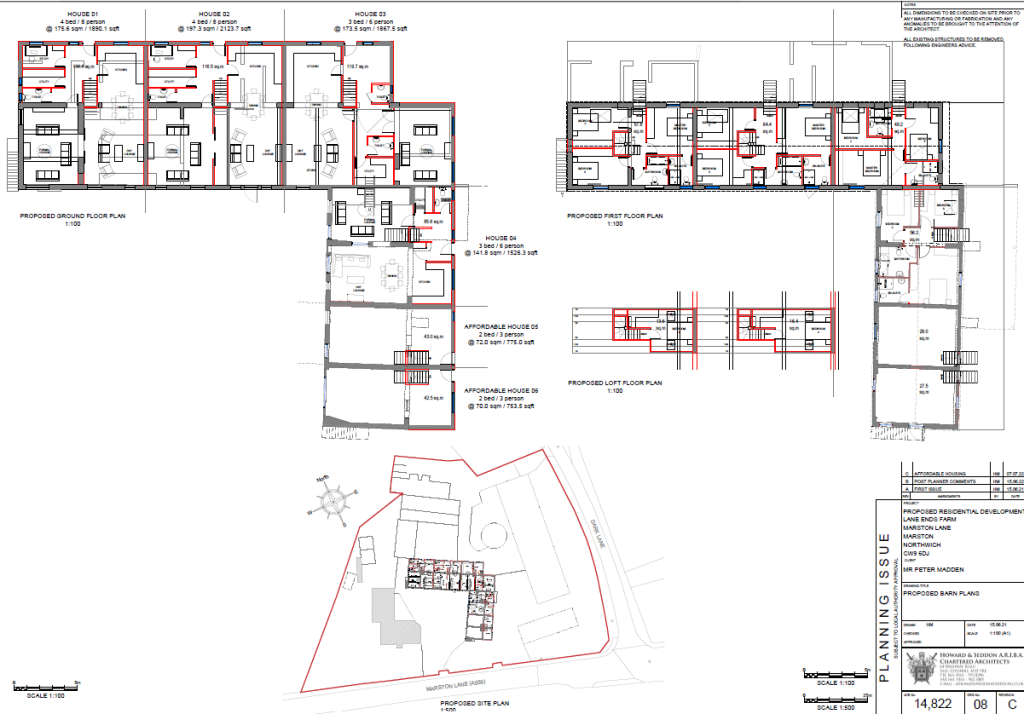
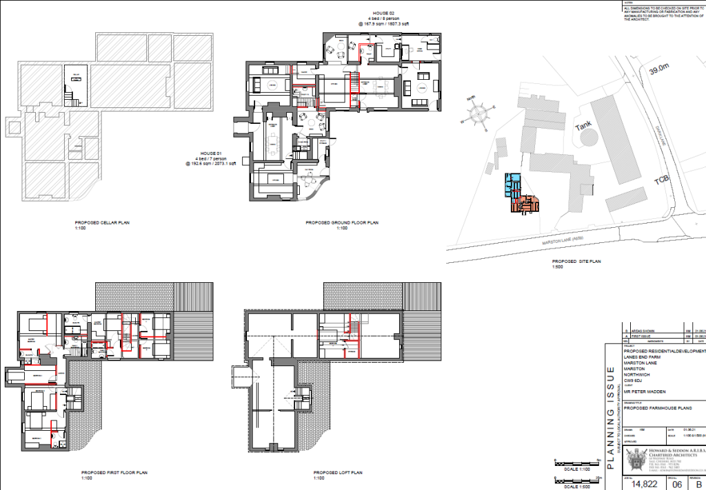
Key Features: • Planning permission granted for 8 dwellings • Comprising 2 semi-detached and 6 barn conversions • Around 13,000 sq ft of accommodation • Splendid views towards Great Budworth • Approximately 2.8 acre site • Semi-rural location within 15 minutes of Knutsford centre
Location: • Nearest Station: Northwich Station • Distance to Station: 1.7 miles
Agent Information: • Address: Greystones HQ Barrow Lane, Tarvin Sands Chester CH3 8JF
Full Description: This Grade II listed farm presents a promising development opportunity with approved planning permission for conversion and extension. The farm currently sits on approximately 2.8 acres, including a yard, gardens, and a small paddock of around 1 acre.The planning permission allows for the conversion of the barns into 6 dwellings and the farmhouse into 2 separate dwellings. Cheshire West planning ref. 21/04764/FUL The development occupies a semi-rural location between Knutsford & Northwich, bordering fields with views toward Great Budworth, with two access points off Marston Lane and Dark Lane. The accompanying PDF documents provide scale drawings and official planning and listed building consent for further details.Overage clause: An overage clause of 25% applies for any planning permission gained to change the use of any part of the property (apart from the farmhouse and listed barns) from agricultural use for the next 20 years.BrochuresBrochure 1Brochure 2
Location
Address
Development opportunity, Marston, Nr Great Budworth
City
None
Features and Finishes
Planning permission granted for 8 dwellings, Comprising 2 semi-detached and 6 barn conversions, Around 13,000 sq ft of accommodation, Splendid views towards Great Budworth, Approximately 2.8 acre site, Semi-rural location within 15 minutes of Knutsford centre
Legal Notice
Our comprehensive database is populated by our meticulous research and analysis of public data. MirrorRealEstate strives for accuracy and we make every effort to verify the information. However, MirrorRealEstate is not liable for the use or misuse of the site's information. The information displayed on MirrorRealEstate.com is for reference only.