Development plot , Millards Lane, Lode

GBP 295000 For Sale

Property Details

Property Type

Plot

Description

Property Details: • Type: Plot • Tenure: N/A • Floor Area: N/A

Key Features:

Location: • Nearest Station: Waterbeach Station • Distance to Station: 2.6 miles

Agent Information: • Address: 41A High Street Soham Ely Cambs CB7 5HA

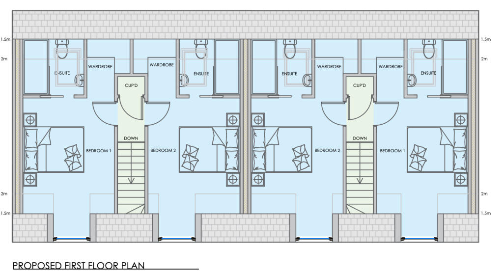
Full Description: DescriptionExcellent opportunity to acquire this building plot with full planning granted for 2 semi-detached, 3 bedroom homes. Situated in the sought after village of Lode, which is just a short drive from Cambridge City and Bottisham Village College, this site is ideal for the smaller builder/investor and building can commence swiftly.TitleThe site is registered under Title reference CB487983 (Land West of Montrose Farm, 2 Millards Lane, Lode)Tenure & PossessionThe site is for sale Freehold and with vacant possession.PlanningFull planning was granted by East Cambridgeshire District Council on 27th December 2024 (Reference 24/00574/FUL), for the erection of 2 private 3 bedroom semi-detached dwellings with associated vehicular access and associated works. Full planning conditions and drawings can be found on the councils planning portal or obtained via Bovingdons Estate Agents. There are a number of reports/documents available including Contamination Report, Flood Risk Assessment, Arboricultural Impact Assessment, Biodiversity Improvement plan and Tree Protection Scheme, house plans and proposed layout drawings.Estimated GDV.Selling prices for the 2 completed houses, which are both circa 91 sq m (980 sq ft),have been estimated by Bovingdons Limited to give a Gross Development Value in the region of £800,000 based on the market conditions as at November 2024. Method of sale.The site is for sale by Private Treaty.OFFERSOffers are invited for the freehold purchase of the site. All offers will need to beconfirmed in writing to the seller’s agent and include the following:1 - Any proposed conditions attached to the offer. 2 - Proof of funding.3 - Timescales for the proposed submission of exchange and completion.4 - Proof of ID for buyers whether private or company purchase.5 - Details of solicitors to be instructed on the purchase.Restrictive CovenantsWe are not aware at this time of any restrictive covenants on the site, but prospective buyers must confirm this for themselves via their legal representatives before committing to the purchase.ServicesAll prospective buyers are to make their own enquiries as to the location and provision of services.Wayleaves, Easements & Rights of Way.The land is to be sold subject to all existing rights of way, public or private, light support, drainage, water and electricity supplies and allotted rights and obligations, easements, quasi-easements and all wayleaves ,whether referred to or not in these sales particulars. - Purchasers will be deemed to have full knowledge and satisfied themselves as to the provisions of such matters which may affect the property.VATShould any sale of the land or any right attached to it become chargeable for VAT, then such tax will be the liability of the purchaser to settle in addition to the purchase price.ViewingsViewings - Whilst the site is visible from the roadside, all viewings are to be agreed via the seller’s sole agent.NotesLocal council is East Cambridgeshire District Council.County is Cambridge County Council.

Location

Address

Development plot , Millards Lane, Lode

City

Lodè

Legal Notice

Our comprehensive database is populated by our meticulous research and analysis of public data. MirrorRealEstate strives for accuracy and we make every effort to verify the information. However, MirrorRealEstate is not liable for the use or misuse of the site's information. The information displayed on MirrorRealEstate.com is for reference only.

Real Estate Broker
Bovingdons, Soham
Brokerage
Bovingdons, Soham
Top Tags
2 semi-detached 3 bedroom homes Millards Lane Lode
Likes

0

Views

55

This website uses cookies to ensure you get the best experience. Learn more