Development site, Lower Barn Street, Off Cranberry Lane, Darwen

GBP 205,000
For Sale

Property Details

Property Type

Land

Description

Property Details: • Type: Land • Tenure: N/A • Floor Area: N/A

Key Features: • Exciting development land with planning • Planning permission for 5 detached dwellings • Rarely found investment opportunity to build • Beautiful location, countryside views • Close to motorway link, schools, amenities • Attractive stylish designs with balconies • For sale via auction, no upward chain delay • Freehold and not subject to VAT

Location: • Nearest Station: Darwen Station • Distance to Station: 1.1 miles

Agent Information: • Address: 11 Institute Street, Bolton, BL1 1PZ

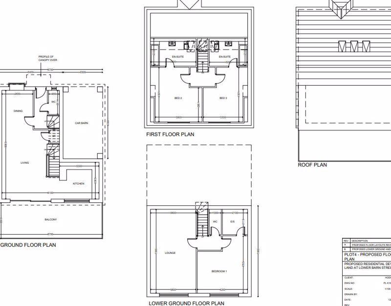
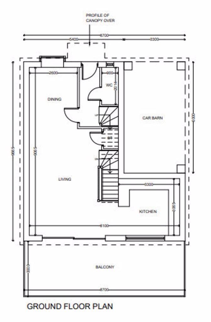
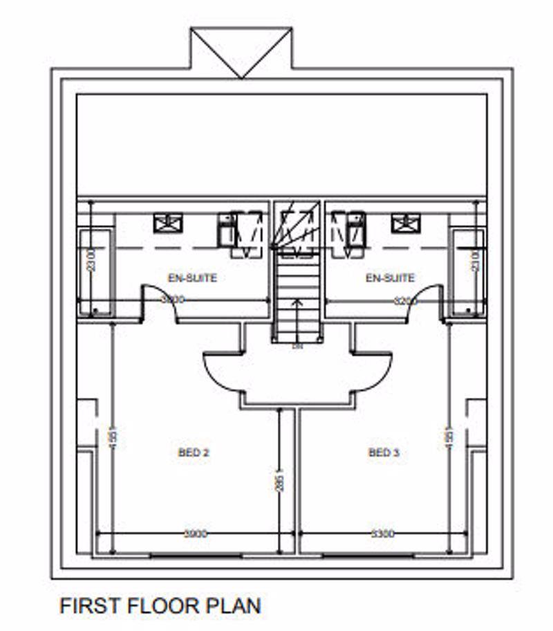
Full Description: Offered for sale via auction, is this superb residential development opportunity, extending to just under half an acre overall or thereabouts, with planning permission obtained for five detached, versatile, dwellings.Set within a consistently popular residential location, it is around 3/4 of a mile from Darwen town centre, being excellently placed for every day amenities, including: schools, shops, houses of worship and transport links. The A666 is nearby and Egerton in North Bolton is approximately a nine minute drive away (Google maps estimate 9/1/23) while the M65 Junction 4 is around 3 miles away. Although on the periphery of Darwen’s urban boundary there are open fields and a railway line to the north so the site retains a countryside feel maximised with a balcony being incorporated into the designs. Locally Persimmon Homes’ Spring Meadows development is nearby, which is perhaps indicative of the high level of demand for residential property in the area.Blackburn with Darwen Borough Council, granted planning permission on the 27th of July 2022 for the development of five detached dwellings in accordance with application reference number 10/21/0953. Full details of the planning application are available on the Blackburn with Darwen Borough Council planning website though we have included some example proposed floor plans, the proposed site plan, and proposed elevation drawings for easy reference. It is worth noting that the site has previously had planning permission for three detached bungalows (10/20/1246), so the five detached properties that is granted offers a notable change in usage and potential revenue returns.We are advised that the site is freehold and VAT will not be charged on the purchase price.This really is a fabulous investment opportunity and there is a great deal to admire. There is a video of the site available to watch and for further information or to arrange a viewing. Please contact Cardwells Estate Agents Bolton on , email or visitChain details:The development site is sold with no further upward chain.Viewings:Viewing is highly recommended to appreciate all that is on offer, a personal viewing appointment can be arranged by calling Cardwells Estate Agents Bolton on , emailing; or visiting:Thinking of selling:If you are thinking of selling a property, perhaps Cardwells Estate Agents Bolton can be of assistance? We offer free property valuations, which in this ever-changing market may be particularly helpful as a starting point before advertising your property sale. Just call us , email: or visit: and we will be pleased to make an appointment to meet you.Arranging a mortgage:Cardwells can introduce you to independent financial advisors who have access to the whole of the mortgage market. We would be pleased to be of assistance and if you would like us to help these are the contact details: Cardwells Estate Agents Bolton on , emailing: or visiting:Disclaimer:This brochure and the property details are a representation of the property offered for sale or rent, as a guide only. Content must not be relied upon as fact and does not form any part of a contract. Measurements are approximate. No fixtures or fittings, heating system or appliances have been tested, nor are they warranted by Cardwells, or any staff member in any way as being functional or regulation compliant. Cardwells do not accept any liability for any loss that may be caused directly or indirectly by the information provided, all interested parties must rely on their own, their surveyor's or solicitor's findings. We advise all interested parties to check with the local planning office for details of any application or decisions that may be consequential to your decision to purchase or rent any property. Any floor plans provided should be used for illustrative purposes only. Any leasehold properties both for sale and to let, may be subject to leasehold covenants,...BrochuresProperty BrochureFull Details

Location

Address

Development site, Lower Barn Street, Off Cranberry Lane, Darwen

City

Darwen

Features and Finishes

Exciting development land with planning, Planning permission for 5 detached dwellings, Rarely found investment opportunity to build, Beautiful location, countryside views, Close to motorway link, schools, amenities, Attractive stylish designs with balconies, For sale via auction, no upward chain delay, Freehold and not subject to VAT

Legal Notice

This website uses cookies to ensure you get the best experience. Learn more