Development Site on Gloucester Road, Bishopston

GBP 575000 For Sale

Property Details

Property Type

Plot

Description

Property Details: • Type: Plot • Tenure: N/A • Floor Area: N/A

Key Features: • Prime location on Gloucester Road • Planning Consent Granted • Aparthotel / HMO • Potential for a variety of schemes • Potential Gross Rent of £156,000pa

Location: • Nearest Station: Montpelier Station • Distance to Station: 0.6 miles

Agent Information: • Address: 60 Northumbria Drive, Henleaze, Bristol, BS9 4HW

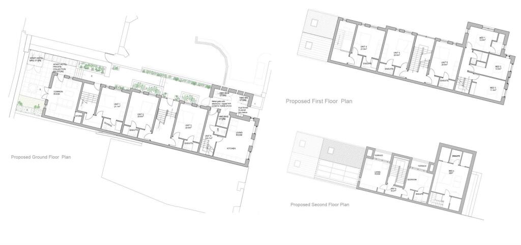
Full Description: A development site situated in a highly desirable location on Gloucester Road, Bishopston.Full planning consent has been granted for the demolition of the existing buildings and construction of a single residential blocking comprising a Sui Generiss HMO and a Use Class C1 aparthotel.The scheme provides for a 7 bed aparthotel and a further 4 bedroom HMO, although offers potential for a variety of schemes, subject to obtaining the necessary consents.Description - A development site situated in a highly desirable location on Gloucester Road, Bishopston. Full planning consent has been granted for the demolition of the existing buildings and construction of a single residential building comprising an HMO and a Use Class C1 aparthotel. The scheme provides for a 7 bedroom aparthotel and a further 4 bedroom HMO, although offers potential for a variety of schemes, subject to obtaining the necessary consents.Location - The property is situated in a prominent position on Gloucester Road in Bishopston, close to the junction with Egerton Road. A wide range of local amenities are available on Gloucester Road and excellent transport links are provided to the city centre.Tenure - Offered for sale on a freehold basis, and with vacant possession.Floor Plan - The floor plan is provided for indicative purposes only and should not be relied upon.Planning - Application No: 22/01385/FProposal: Demolition of all buildings and construction of single residential block comprising a sui generis HMO, and a Use Class C1 aparthotel with associated external space, refuse and cycle storage.Date of decision: 6th January 2023.Potential Rent - There is potential to create a further/8th bedroom in the aparthotel and our client has obtained a rental appraisal on this basis, from an established HMO/aparthotel specialist. They anticipates a rent in the region of £750pcm per room for the HMO, and circa £1250pcm per room in the aparthotel (based on 80% occupancy). Based on a 4 bedroom HMO and 8 bed aparthotel this therefore equates to a potential gross annual rent of £156,000pa.Vat - All figures quoted are exclusive of VAT unless otherwise stated.Viewings - By appointment.Control Of Asbestos Regulations - As per the Control of Asbestos Regulations 2012, the owner or tenant of the property, or anyone else who has control over it and/or responsibility for maintaining it, must comply with the regulations which may include the detection of and/or management of any asbestos or asbestos related compounds contained at the property. Maggs & Allen has not tested or inspected for Asbestos and therefore recommend all interested parties to make their own enquiries.BrochuresDevelopment Site on Gloucester Road, BishopstonEnergy Performance CertificatesEE RatingEI Rating

Location

Address

Development Site on Gloucester Road, Bishopston

City

Development Site on Gloucester Road

Features and Finishes

Prime location on Gloucester Road, Planning Consent Granted, Aparthotel / HMO, Potential for a variety of schemes, Potential Gross Rent of £156,000pa

Legal Notice

Our comprehensive database is populated by our meticulous research and analysis of public data. MirrorRealEstate strives for accuracy and we make every effort to verify the information. However, MirrorRealEstate is not liable for the use or misuse of the site's information. The information displayed on MirrorRealEstate.com is for reference only.

Real Estate Broker
Maggs & Allen, Auction, Commercial & Investment
Brokerage
Maggs & Allen, Auction, Commercial & Investment
Top Tags
Aparthotel / HMO 000pa
Likes

0

Views

55

This website uses cookies to ensure you get the best experience. Learn more