Donnybrook QLD 4510
Property Details
5
3
New House & Land
Description
Property Details: • Type: New House & Land
• Bedrooms: 5 • Bathrooms: 3
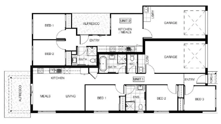
Description: This quality brick veneer 3+2 Bedroom, dual occupancy property is for the investor looking for value for money without compromising quality. If you're looking for a good balance of rental yield and capital growth this dual income home will tick all the boxes. Tenants will be equally impressed with the layout of this dual living home with spacious living areas and modern kitchen design. The property is a full turn-key, fixed price package with nothing more to spend and includes all council infrastructure charges. About The Property: Dual Occupancy Dwelling 1 - 3 Bedrooms, 2 Bathrooms, 1 Car Dwelling 2 - 2 Bedrooms, 1 Bathroom, 1 Car Land Size: 605sqm Land Price: $565,000 Build Size 195sqm Build Price: $557,000 Fixed Price Contract - Full Turn key - Tenant ready Total Price: $1,122,000 RENTAL ESTIMATE: $1015-$1080 per week. Land Is Registered PROPERTY HIGHLIGHTS Turn Key House and Land Package Includes - Full termite management system - Dual Occupancy 3+2 - Brick veneer construction - LED Lighting - Energy efficiency - Turf & 10 SQM landscape gardens - Fully fenced - Concreted driveways, paths & patios - Split to both units with remote controls - Lever door handles throughout - Fully painted with quality paints - Stainless Steel appliances - Clothesline, TV antenna & letterbox - Carpet & Tile throughout - Vertical blinds to all windows - Fly screens & window locks - Security screen to external doors - Fans bedrooms - Garage remote controls - Infrastructure fee incl. in land - 12Mth Maintenance period - 6 Year structural warranty ABOUT THE AREA Perfectly located between the Sunshine Coast and Brisbane, Stillwater Donnybrook is a beautifully designed new residential community. Situated amidst the stunning natural beauty of Pumicestone Passage and Moreton Bay, build you new home in this unique development where you'll appreciate the peace and tranquility of the beautiful setting. You'll be surrounded by nature while being a part of the safe and friendly Donnybrook community. TO RESERVE THIS PROPERTY For more information call Aaron on 0412828702 - Complete an Expression of Interest with Asset Property Partners and a $1,000 holding deposit - Asset Property Partners prepares contracts and express posts to agent/buyer solicitor/buyer - Two Contract Purchase - Land and Build Standard conditions - Pay no stamp duty on the build Land is registered with a 14 day finance approval 5% deposit on building contract with builder payable on finance approval Progressive construction draw downs Build time: 13-16 Weeks from construction approval HOW WE CAN HELP YOU Through our trusted network of builders and land developers across South East Queensland, Asset Property Partners offers a no cost service that helps everyday Australian's make smarter property choices. Let us help you save time and money whilst taking the hassle out of building! Contact 0412828702 for a free, no obligation discovery session to help you find the most suitable property option for you. Disclaimer: Disclaimer: All images and descriptions are indicative and may vary from the final product. All information contained herein is gathered from sources we believe to be reliable. Intending purchasers should satisfy themselves by clarification prior to purchase. Prices stated are subject to availability. All plans are copyright in whole and in part.
Location
Address
Donnybrook QLD 4510
City
Donnybrook
Features and Finishes
None
Legal Notice
Our comprehensive database is populated by our meticulous research and analysis of public data. MirrorRealEstate strives for accuracy and we make every effort to verify the information. However, MirrorRealEstate is not liable for the use or misuse of the site's information. The information displayed on MirrorRealEstate.com is for reference only.