Duke Street, Clayton Le Moors, BB5
Property Details
2
1
Detached
Description
Property Details: • Type: Detached • Tenure: Ask agent • Floor Area: N/A
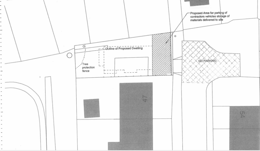
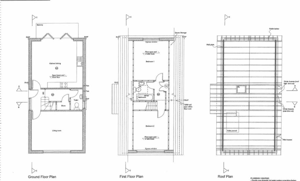
Key Features: • Luxurious two bedroom new build detached property • Open plan dining kitchen • High spec kitchen and bathroom • Rear garden • Off road parking • Private corner plot • Short drive to M65 motorway link
Location: • Nearest Station: N/A • Distance to Station: N/A
Agent Information: • Address: 7 St. James Street, Accrington, BB5 1NE
Full Description: Welcome to this luxurious two-bedroom new build detached house located in a sought-after area, offering a perfect blend of modern living and comfort. Upon entering, you will be greeted by a bright and spacious open plan dining kitchen, ideal for hosting gatherings and enjoying family meals. The high-spec kitchen will boast sleek countertops, ample storage space, and top-of-the-line appliances.The property will feature two generously sized double bedrooms and the contemporary bathroom will be fitted with premium fixtures and finishes and will provide the buyer the opportunity to choose their own fixtures.Situated on a private corner plot, this residence offers the ultimate in privacy and tranquillity. The rear garden will provides a serene outdoor space, perfect for enjoying a morning coffee or hosting summer barbeques. Off-road parking adds to the convenience of this property, ensuring that you will never have to worry about finding a parking space.Conveniently located just a short drive away from the M65 motorway link, this property is perfect for commuters looking to easily access nearby cities and towns. Whether you're commuting to work or exploring the surrounding areas, this home's location offers unparallelled convenience.In conclusion, this two-bedroom detached house will epitomise modern living at its finest. From the high-spec kitchen and bathroom of your choosing to the private corner plot and off-road parking, every detail has been carefully considered to provide a comfortable and stylish living experience. Don't miss out on the opportunity to make this exceptional property your new home. Contact us today to schedule a viewing and envision yourself living in this exquisite abode.
Location
Address
Duke Street, Clayton Le Moors, BB5
City
Accrington
Features and Finishes
Luxurious two bedroom new build detached property, Open plan dining kitchen, High spec kitchen and bathroom, Rear garden, Off road parking, Private corner plot, Short drive to M65 motorway link
Legal Notice
Our comprehensive database is populated by our meticulous research and analysis of public data. MirrorRealEstate strives for accuracy and we make every effort to verify the information. However, MirrorRealEstate is not liable for the use or misuse of the site's information. The information displayed on MirrorRealEstate.com is for reference only.