Dunsmore Grove, Solihull, B91 1BH
Property Details
Land
Description
Property Details: • Type: Land • Tenure: N/A • Floor Area: N/A
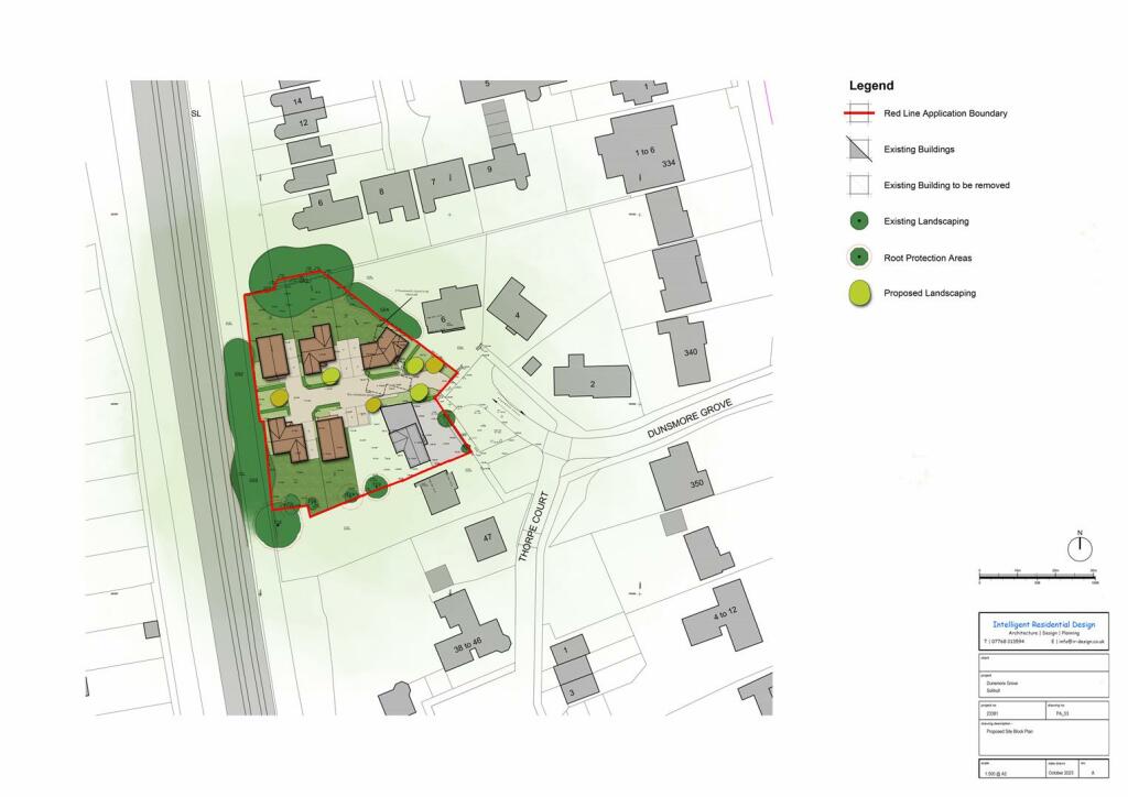
Key Features: • Plot With Planning Permission Approved • Planning Application PL/2023/02605/PPFL • Construction of Five Detached Four Bedroom Houses • Plots 1, 3 & 5 1,622 Sq.Ft. Each • Plots 2 & 4 1,740 Sq.Ft. Each • No. 5 Dunsmore Grove Is Available By Separate Negotiation • 1 Mile to Olton Train Station • Easy Access to Solihull Town Centre • Close To Local Amenities • Permitted Development Rights have not been removed from the council but must be applied for.
Location: • Nearest Station: Olton Station • Distance to Station: 0.8 miles
Agent Information: • Address: The Pavillions Cranmore Drive, Shirley, Solihull, B90 4SB
Full Description: The sale will be for No.7 Dunsmore Grove. Adverse Possession Land (to the rear of both No. 5 and No.7) and side strip of land next to No.7.Demolition of 7 Dunsmore Grove and the erection of x 5 detached dwellings with associated garaging, access and land Application PL/2023/02605/PPFLDetails - This sale includes four title deeds in total, offering a unique development opportunity with full planning approval for a residential project. No. 5 Dunsmore Grove is available by separate negotiation.Planning Approval Details - Planning Application: PL/2023/02605/PPFL Approved on 15th August 2024.Development Proposal - Planning permission has been granted for the demolition of 7 Dunsmore Grove and erection of five four bedroom detached dwellings with associated parking, access and landscaping. The plot breakdown and sizes are as follows:-* Plots 1, 3 & 5 - 1,622 sq.ft. each* Plots 2 & 4 - 1,740 sq.ft. each* Total sq.ft. - 8,346 sq.ft.Permitted Development Rights have not been removed from the council but must be applied for.Location - The site is located off the main Warwick Road and benefits from the local amenities that Dovehouse Parade has to offer. Transport links provide access into both Solihull and Birmingham via road and rail, with Olton train station being 1 mile away.Viewings - At short notice with DM & Co. Homes on or by email .Want To Sell Your Property? - Call DM & Co. Homes on to arrange your FREE no obligation market appraisal and find out why we are Solihull's fastest growing Estate Agency.BrochuresDunsmore Grove Brochure.pdf
Location
Address
Dunsmore Grove, Solihull, B91 1BH
City
Solihull
Features and Finishes
Plot With Planning Permission Approved, Planning Application PL/2023/02605/PPFL, Construction of Five Detached Four Bedroom Houses, Plots 1, 3 & 5 1,622 Sq.Ft. Each, Plots 2 & 4 1,740 Sq.Ft. Each, No. 5 Dunsmore Grove Is Available By Separate Negotiation, 1 Mile to Olton Train Station, Easy Access to Solihull Town Centre, Close To Local Amenities, Permitted Development Rights have not been removed from the council but must be applied for.
Legal Notice
Our comprehensive database is populated by our meticulous research and analysis of public data. MirrorRealEstate strives for accuracy and we make every effort to verify the information. However, MirrorRealEstate is not liable for the use or misuse of the site's information. The information displayed on MirrorRealEstate.com is for reference only.