Eggleston Lane, Romaldkirk, Barnard Castle

GBP 150000 For Sale

Property Details

Property Type

Land

Description

Property Details: • Type: Land • Tenure: N/A • Floor Area: N/A

Key Features: • Planning permission for a generous sized two bedroom property • Three reception rooms • Master bedroom with en-suite • Gardens • Garage • Parking • In the highly sought after village of Romaldkirk

Location: • Nearest Station: Bishop Auckland Station • Distance to Station: 14.0 miles

Agent Information: • Address: 12 The Bank, Barnard Castle, DL12 8PQ

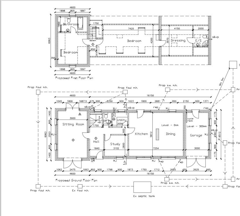
Full Description: Planning permission has been granted for the construction of a generous sized two bedroom property, situated in the highly sought after village of Romaldkirk. The property briefly comprises an entrance hall, study, utility room, sitting room, dining room, breakfast kitchen, master bedroom with en suite and dressing room, further bedroom and a house bathroom. Externally, there is an integral garage, parking and surrounding gardens.Barnard Castle 6 miles. A66 8 miles. Richmond 20 miles. Scotch Corner 20 miles. Darlington 22 miles. East Coast Railway Station - London 2 1/2 hours, Durham Tees Valley Airport 25 minutes, Newcastle Airport 45 mins. (all distances are approximate). Romaldkirk is a former estate village lying about 6 miles upstream on the River Tees from the market town of Barnard Castle. Romaldkirk is an extremely active village. The village has a fete and plot has easy access to the renowned Rose and Crown Inn. Shopping - Local Market towns of Barnard Castle, Richmond and Darlington. Larger centres at Teesside and the Metro Centre, Newcastle. Schools - The area is well served by good State and Independent Schools. Comprehensive school: Barnard Castle. Private Schools: Barnard Castle, Yarm School and Teesside High. Racing - Catterick, Sedgefield, Ripon, Thirsk and Newcastle.Description - Planning permission has been granted for the construction of a generous sized two bedroom property offering approximately 2100 sqft of accommodation over two floors, situated in the highly sought after village of Romaldkirk. The property briefly comprises an entrance hall, study, utility room, sitting room, dining room, breakfast kitchen, master bedroom with en suite and dressing room, further bedroom and a house bathroom. Externally, there is an integral garage, parking and surrounding gardens.Planning Permission - Full Planning permission was approved under reference DM/20/00295/FPA, with conditions discharged. For further information, please go to Durham County Council Planning Portal using the planning reference.Wayleaves, Easements And Rights Of Way - The site is sold subject to and with the benefit of all rights, including rights of way whether public or private, rights of water, light, drainage and electricity supplies and all existing and proposed wayleaves whether referred to in the particulars or not.Services - There are no services to the site although mains water, electric and drainage are understood to be within the vicinity. None of the services have been tested and prospective purchasers must satisfy themselves as to their availability and capacity.Local Authority - Durham County Council Telephone number: Health & Safety - We would ask that prospective purchasers are as vigilant as possible when making an inspection of the site, for your own safety, and no liability is accepted.Area & Measurements - All areas, measurements and other information have been taken from various records and are believed to be correct, but any intending purchaser(s) should not rely on them as statements of fact and should satisfy themselves as to their accuracy.Viewings - The site can be viewed from the public road which runs next to the site at any time during daylight hours subject to having a set of the sales particulars. If a site inspection is required, this must strictly be via private appointment and through the selling agent GSC Grays Tel: Particulars - Photographs taken February 2024.Details Written February 2024.BrochuresEggleston Lane, Romaldkirk, Barnard Castle

Location

Address

Eggleston Lane, Romaldkirk, Barnard Castle

City

Barnard Castle

Features and Finishes

Planning permission for a generous sized two bedroom property, Three reception rooms, Master bedroom with en-suite, Gardens, Garage, Parking, In the highly sought after village of Romaldkirk

Legal Notice

Our comprehensive database is populated by our meticulous research and analysis of public data. MirrorRealEstate strives for accuracy and we make every effort to verify the information. However, MirrorRealEstate is not liable for the use or misuse of the site's information. The information displayed on MirrorRealEstate.com is for reference only.

Real Estate Broker
GSC Grays, Barnard Castle
Brokerage
GSC Grays, Barnard Castle
Top Tags
Gardens Garage
Likes

0

Views

73

This website uses cookies to ensure you get the best experience. Learn more