Elmstead Avenue, Birmingham
Property Details
3
1
Detached
Description
Property Details: • Type: Detached • Tenure: Freehold • Floor Area: N/A
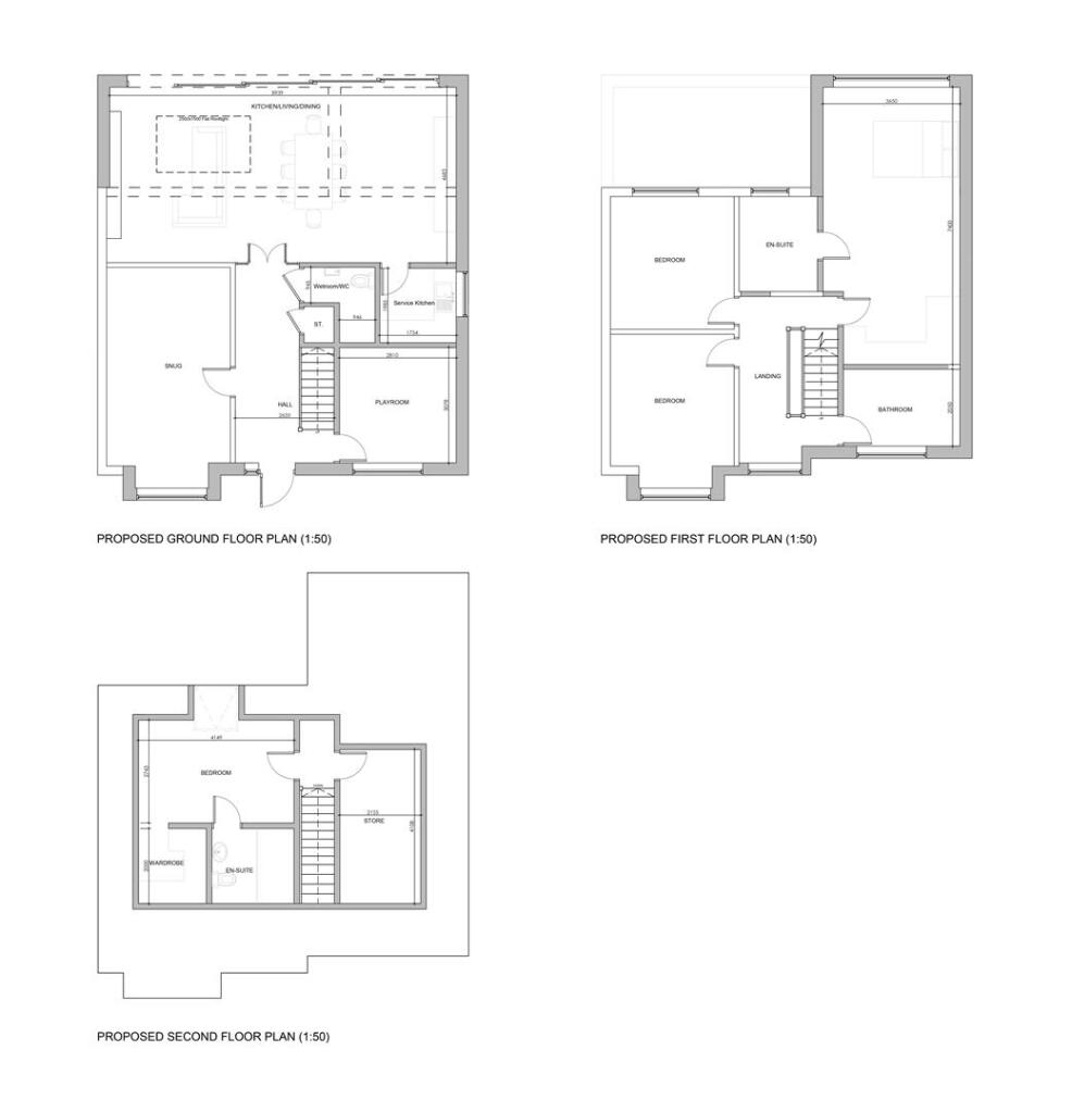
Key Features: • Detached • Planning Permission For Side And Rear Extension • Three Bedrooms • Open Plan Kitchen And Dining • Well Presented Throughout • Multi Purpose Garden Building
Location: • Nearest Station: N/A • Distance to Station: N/A
Agent Information: • Address: 163 High Street, Solihull, B91 3ST
Full Description: Nestled on the sought-after Elmsted Avenue, this impressive three-bedroom detached home offers a rare combination of stylish living and future potential.Having been tastefully refurbished in recent years, the property boasts a stunning rear kitchen, perfect for modern family life and entertaining. The spacious and contemporary design floods the heart of the home with natural light and offers ample room for dining and relaxing.To the front, you'll find a large driveway with space for multiple vehicles, ideal for growing families or guests. One of the standout features of this property is the generous side plot, offering planning permission for a side and rear extension giving you the opportunity to add even more space as your needs evolve.The rear garden is a fantastic size and includes a versatile outbuilding, ideal for use as a home office, gym, or children's playroom—a perfect addition for those looking for flexible space to suit modern lifestyles.Whether you're looking to move straight into a beautifully finished home or seeking a property with room to grow, this home has it all.Lounge - 8.10m x 5.28m (26'7 x 17'4) - Kitchen/ Dining Room - 8.10m x 5.28m (26'7 x 17'4) - Bedroom One - 4.34m x 3.15m (14'3 x 10'4) - Bedroom Two - 3.68m x 3.15m (12'1 x 10'4 ) - Bedroom Three - 2.39m x 2.03m (7'10 x 6'8 ) - Bathroom - 2.54m x 2.03m (8'4 x 6'8 ) - Tenure - The Agent understands that the property is Freehold. However, we have not checked the legal title to the property. We advise all interested parties to obtain verification on the tenure via their solicitor or surveyor prior to committing to purchase the property.Council Tax Band - The Agent understands from the vendor that the property is located within Birmingham city Council and is Tax Band C.Services - Hunters understands from the vendor that mains drainage, gas, electricity, and water are connected to the property, however, we have not obtained verification of this information. Any interested parties should obtain verification on this information via their solicitor or surveyor prior to committing to the purchase of the property.Referral Fees - Hunters would like to make our clients aware that in addition to the fee we receive from our vendor, Hunters may also receive a commission payment (referral fee) from other service providers for recommending their services to sellers or buyers.Fixtures And Fittings - Only those items mentioned in these sales particulars will be included in the sale of the property.General - These particulars are intended to give a fair and reliable description of the property, however, no responsibility for any inaccuracy or error can be accepted by Hunters, nor do they constitute an offer or contract. Please note that we have not tested any services or appliances referred to in these particulars (including gas/electric central heating) and the purchasers are advised to satisfy themselves as to the working order and condition prior to purchasing the property. If a property is unoccupied at any time, there may be reconnection charges for any switched off or disconnected or drained appliances. All measurements in our particulars are approximate.Agent Note - Agent Note: We have not been able to verify whether works and extensions to the property required any Planning or Building Regulation approval, or whether such approvals were obtained. We have been unable to verify this information and any prospective purchaser should make their own enquiries with their legal adviser prior to committing to purchase. Hunters do stress that they have not checked the legal documentation to verify the exact nature and extent of this or any matters effecting the property and would advise any potential buyer to obtain verification from their solicitor.BrochuresElmstead Avenue, Birmingham
Location
Address
Elmstead Avenue, Birmingham
City
Birmingham
Features and Finishes
Detached, Planning Permission For Side And Rear Extension, Three Bedrooms, Open Plan Kitchen And Dining, Well Presented Throughout, Multi Purpose Garden Building
Legal Notice
Our comprehensive database is populated by our meticulous research and analysis of public data. MirrorRealEstate strives for accuracy and we make every effort to verify the information. However, MirrorRealEstate is not liable for the use or misuse of the site's information. The information displayed on MirrorRealEstate.com is for reference only.