Enterprise House, Billington Road, Burnley, Lancashire, BB11 5UB
Property Details
Light Industrial
Description
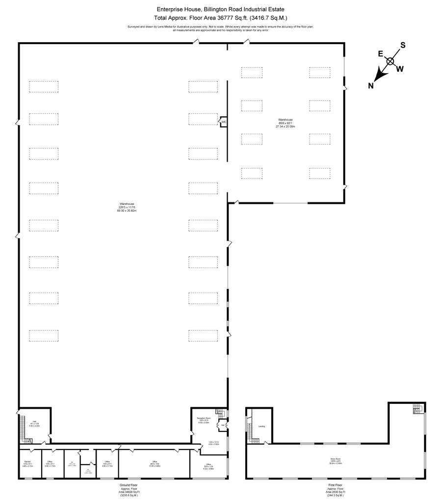
Property Details: • Type: Light Industrial • Tenure: N/A • Floor Area: 36777 sqft
Key Features: • Detached warehouse, with modern extension • Established location with good access to Burnley, Hyndburn and Pendle • Open plan warehouse space with three loading doors, glazed two-storey offices and showroom • Located close to Warburton's, Veka and Cherry Tree Bakery • Ideal warehouse and distribution facility, extending to 36,777 sq ft • Large car park and loading area, laid in tarmac • Positioned close to both junctions 9 and 10 of the M65 motorway • Brand new portal frame extension built on the side of the property
Location: • Nearest Station: Rose Grove Station • Distance to Station: 0.5346765690009008 miles
Agent Information: • Address: Church House 10 Church Street Padiham Burnley BB12 8HG
Full Description: <b>Location</b><br /><br />The property is located at the bottom of Billington Road Industrial Estate, being within a short drive of both junctions 9 and 10 of the M65 motorway.<br /><br />Billington Road is an established business park with other companies in the vicinity, including Warburtons, Cherry Tree Bakery, and AMS Neve.<br /><br />Burnley is approximately 21 miles north of Manchester and 20 miles east of Preston. Burnley is served by junctions 9,10 and 11 of the M65 motorway, which runs west to Accrington, Blackburn and Preston.<br /><br /><b>Description</b><br /><br />A detached portal frame warehouse on an established business park close to junctions 9 and 10 of the M65 motorway.<br /><br />The property offers open plan warehouse space with a brand new portal frame extension and three loading doors in to the warehouse. <br /><br />The premises has two storey office/showroom accommodation with feature glazing and modern reception.<br /><br />The gated site has its own loading area and a large car park to the front and side of the building. <br /><br /><b>VAT</b><br /><br />The purchase price quoted is exclusive of VAT which may be payable at the prevailing rate.<br /><br /><b>Services</b><br /><br />We understand the property has the benefit of mains electricity, water and gas services.<br /><br />It is the prospective purchasers responsibility to verify that all services and appliances are in working order and are of suitable purpose being adequate for their needs.<br /><br /><b>Legal Costs</b><br /><br />Each party is to be responsible for their own legal costs.<br /><br /><b>Viewings</b><br /><br />Please contact the agents: <br /><br />Whiteacres Property<br />Church House<br />10 Church Street<br />Padiham<br />BB12 8HG<br /><br /> <br /> <br /><br /><br /><b>Accommodation</b><br /><br />The property has been measured on a gross internal basis and extends to the following approximate floor areas. <br /><br /><b>Services Responsibility</b><br /><br />It is the prospective purchasers responsibility to verify that all services and appliances are in working order and are of suitable purpose being adequate for their needs.
Location
Address
Enterprise House, Billington Road, Burnley, Lancashire, BB11 5UB
City
Lancashire
Features and Finishes
Detached warehouse, with modern extension, Established location with good access to Burnley, Hyndburn and
Pendle, Open plan warehouse space with three loading doors, glazed two-storey offices and showroom, Located close to Warburton's, Veka and Cherry Tree Bakery, Ideal warehouse and distribution facility, extending to 36,777 sq ft, Large car park and loading area, laid in tarmac, Positioned close to both junctions 9 and 10 of the M65 motorway, Brand new portal frame extension built on the side of the property
Legal Notice
Our comprehensive database is populated by our meticulous research and analysis of public data. MirrorRealEstate strives for accuracy and we make every effort to verify the information. However, MirrorRealEstate is not liable for the use or misuse of the site's information. The information displayed on MirrorRealEstate.com is for reference only.