Fife Street, Dufftown, Keith, Moray
Property Details
Ask agent
Description
Property Details: • Type: Ask agent • Tenure: N/A • Floor Area: N/A
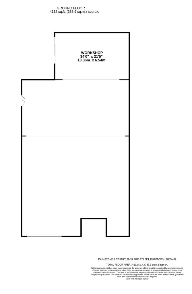
Key Features: • Freehold • Growth Potential • Excellent Investment Opportunity • Prominent Trading Location • Established Business • 3 Garage Areas & Office • Profitable Garage • Well-Maintained
Location: • Nearest Station: Keith Station • Distance to Station: 9.8 miles
Agent Information: • Address: 62 High Street, Elgin, IV30 1BU
Full Description: CCL are delighted to offer to the market the opportunity to purchase a well-established and profitable garage located in a prominent position within the popular town of Dufftown in the heart of Speyside. Johnston and Stuart offers a range of services including MOTs, repairs and servicing and was established by the current owner over 40 years ago. The garage has a good reputation within the area and operates from a workshop adjacent to a petrol forecourt. The property provides an excellent investment opportunity for someone already operating within the motor industry looking for a new venture or a landlord looking to acquire a freehold property and obtain a new tenant.
Location
Address
Fife Street, Dufftown, Keith, Moray
City
Keith
Features and Finishes
Freehold, Growth Potential, Excellent Investment Opportunity, Prominent Trading Location, Established Business, 3 Garage Areas & Office, Profitable Garage, Well-Maintained
Legal Notice
Our comprehensive database is populated by our meticulous research and analysis of public data. MirrorRealEstate strives for accuracy and we make every effort to verify the information. However, MirrorRealEstate is not liable for the use or misuse of the site's information. The information displayed on MirrorRealEstate.com is for reference only.