Fir Tree Farm, Fir Tree Lane, New Arley, Warwickshire, CV7 8GW
Property Details
3
House
Description
Property Details: • Type: House • Tenure: N/A • Floor Area: N/A
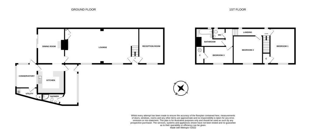
Key Features: • Three Bedroomed Farmhouse • Original features including exposed beams • Planning permission granted for replacement two storey and single storey extension • Two paddocks - Totalling1.9 acres approximately
Location: • Nearest Station: N/A • Distance to Station: N/A
Agent Information: • Address: 5 Geoff Monk Way Birstall Leicester LE4 3BU
Full Description: Fir Tree house is a three bedroomed farmhouse, which is in need of complete renovation and modernisation. The property is set in a courtyard location and has a shared access with the adjoining properties. The property benefits from planning permission being granted by North Warwickshire Borough Council for ''Demolition of existing single storey element and replacement with new two storey and single storey extension'' Planning Reference: PAP/2003/0147 dated: 13/04/2023The property also benefits from two small paddocks, giving a total area in size of approximately 1.9 acres.BrochuresBrochure
Location
Address
Fir Tree Farm, Fir Tree Lane, New Arley, Warwickshire, CV7 8GW
City
None
Features and Finishes
Three Bedroomed Farmhouse, Original features including exposed beams, Planning permission granted for replacement two storey and single storey extension, Two paddocks - Totalling1.9 acres approximately
Legal Notice
Our comprehensive database is populated by our meticulous research and analysis of public data. MirrorRealEstate strives for accuracy and we make every effort to verify the information. However, MirrorRealEstate is not liable for the use or misuse of the site's information. The information displayed on MirrorRealEstate.com is for reference only.