First Floor, 435-437 Walmersley Road, Bury, BL9

GBP 1500 For Rent

Property Details

Property Type

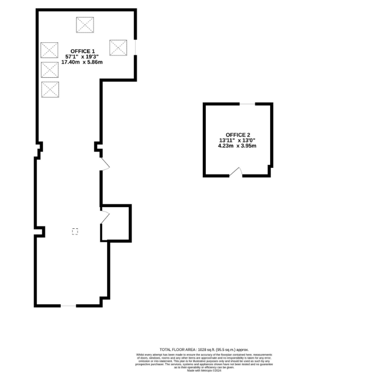
1,000 sq ft

Description

Property Details: • Type: 1,000 sq ft • Tenure: N/A • Floor Area: N/A

Key Features: • OPEN PLAN OFFICE SPACE • BILLS INCLUDED • MODERN AND SPACIOUS • READY FOR OCCUPATION

Location: • Nearest Station: Bury Interchange Tram Stop • Distance to Station: 1.4 miles

Agent Information: • Address: Atrium House, 574 Manchester Road, Bury, BL9 9SW

Full Description: This immaculately presented and modernly decorated space comes fitted with a suspended ceiling, carpet floor tiles and feature lighting. Finished with perimeter dado trunking for power and data points throughout the suite, and central heating for the cooler months, the floor is available for immediate occupation.

To the rear of the suite is a spacious breakout area which features a striking vaulted ceiling fitted with skylights, flooding the area with natural light.

Perfect for a spacious 6-7 desk office suiting a variety of uses, such as those in the professional services sector amongst others, additional facilities include a meeting room for private appointments, kitchen facilities and two W/C's (including a DDA compliant W/C). It may be possible for the existing furniture within the space to be retained upon request, including a full size snooker table in great condition.

Located 2 minutes drive from the M66 and 5 minutes from Bury town centre, metrolink and interchange, the office has great links to the M60, M62 and Greater Manchester. Ample on-street parking is available in the locality of the premises.

Bills are included.

Viewings by appointment only.

Location

Address

First Floor, 435-437 Walmersley Road, Bury, BL9

City

Bury

Features and Finishes

OPEN PLAN OFFICE SPACE, BILLS INCLUDED, MODERN AND SPACIOUS, READY FOR OCCUPATION

Legal Notice

Our comprehensive database is populated by our meticulous research and analysis of public data. MirrorRealEstate strives for accuracy and we make every effort to verify the information. However, MirrorRealEstate is not liable for the use or misuse of the site's information. The information displayed on MirrorRealEstate.com is for reference only.

Real Estate Broker
Citrus Commercial Circle, Manchester
Brokerage
Citrus Commercial Circle, Manchester
Top Tags
BILLS INCLUDED MODERN AND SPACIOUS
Likes

0

Views

26

This website uses cookies to ensure you get the best experience. Learn more