First Floor, Western House, Cambridge Road, Stansted, Essex

GBP 1313 For Rent

Property Details

Property Type

986 sq ft

Description

Property Details: • Type: 986 sq ft • Tenure: N/A • Floor Area: N/A

Key Features: • Grade II Listed Building • 2 Car Parking Spaces • Air Conditioned • Prominent Building • Kitchenette • First Floor Suite • Rateable Value Office Suite £11,000 Rateable Value Car Park £400 • VAT is not charged • EPC - D • KW/COM.4494.02.23

Location: • Nearest Station: Stansted Mountfitchet Station • Distance to Station: 0.1 miles

Agent Information: • Address: The Guilds House, Water Lane, Bishop's Stortford, CM23 2JZ

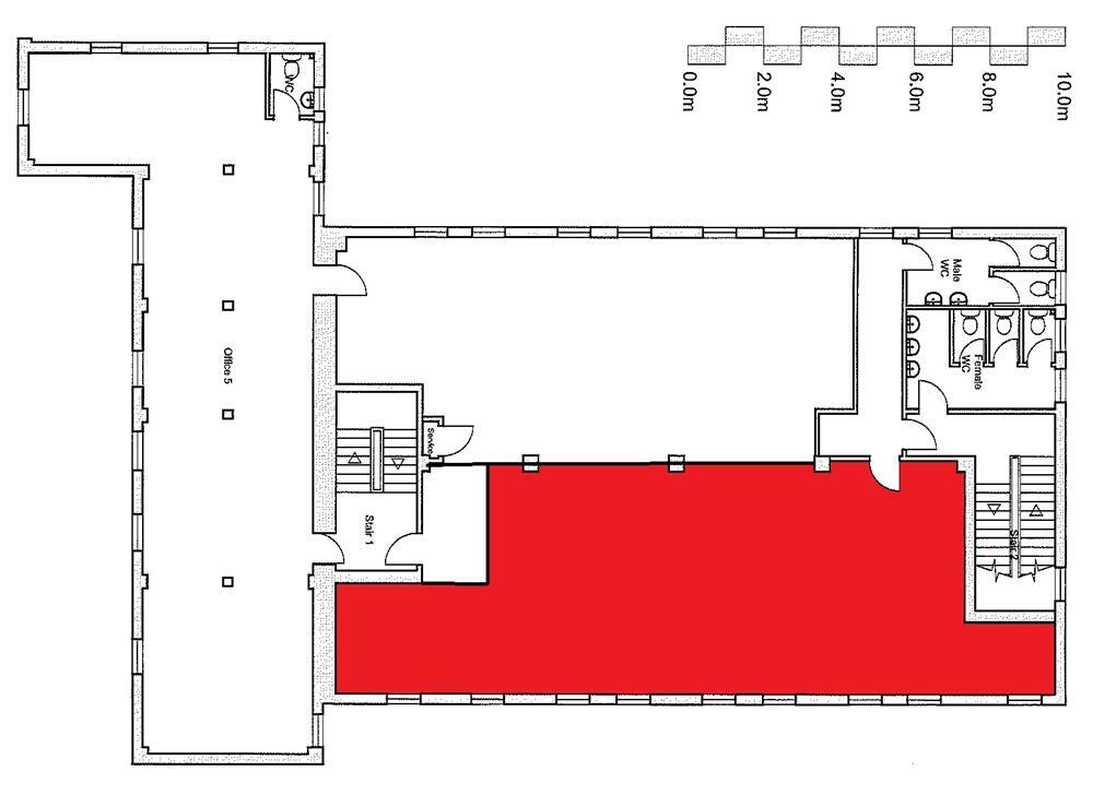
Full Description: The office suite is situated at first floor in the rear part of the building, accessed from Chapel Hill. The suite is mainly open plan, with a glass partitioned meeting room.The suite has its own kitchenette, with male and female toilets and a shower room situated on the first floor landing, shared with other occupiers of the building.

Location

Address

First Floor, Western House, Cambridge Road, Stansted, Essex

City

Stansted Mountfitchet

Features and Finishes

Grade II Listed Building, 2 Car Parking Spaces, Air Conditioned, Prominent Building, Kitchenette, First Floor Suite, Rateable Value Office Suite £11,000

Rateable Value Car Park £400, VAT is not charged, EPC - D, KW/COM.4494.02.23

Legal Notice

Our comprehensive database is populated by our meticulous research and analysis of public data. MirrorRealEstate strives for accuracy and we make every effort to verify the information. However, MirrorRealEstate is not liable for the use or misuse of the site's information. The information displayed on MirrorRealEstate.com is for reference only.

Real Estate Broker
Mullucks - Commercial, Bishops Stortford
Brokerage
Mullucks - Commercial, Bishops Stortford
Top Tags
First Floor Suite Air Conditioned Prominent Building
Likes

0

Views

42

This website uses cookies to ensure you get the best experience. Learn more