Forest Ridge, Keston Park

GBP 4550000 For Sale

Property Details

Property Type

Detached

Description

Property Details: • Type: Detached • Tenure: N/A • Floor Area: N/A

Key Features:

Location: • Nearest Station: N/A • Distance to Station: N/A

Agent Information: • Address: 9 Princess Parade Crofton Road Orpington BR6 8NP

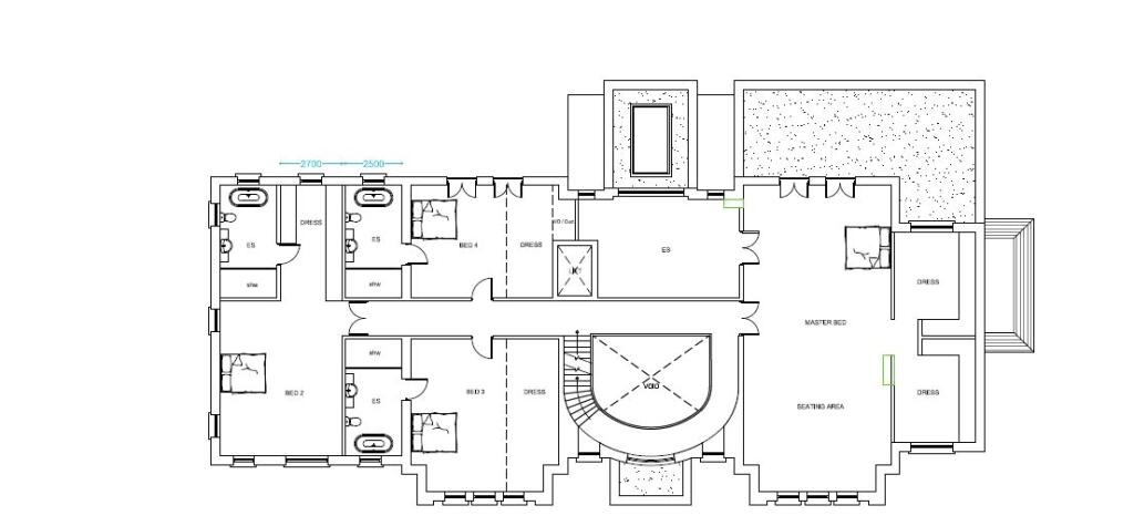
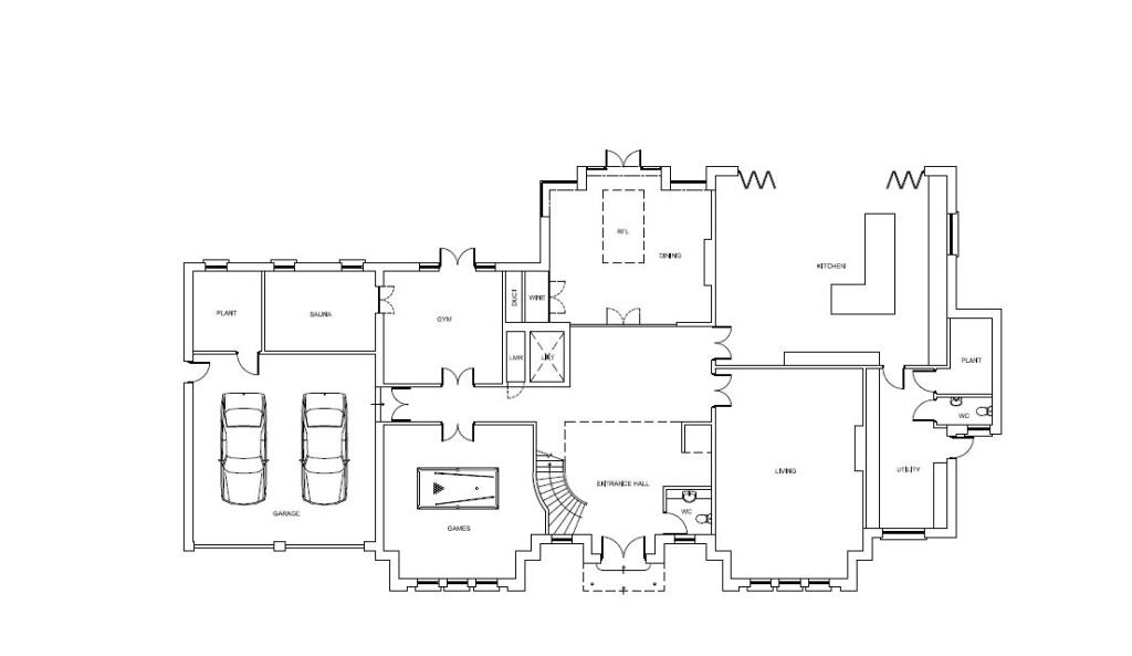
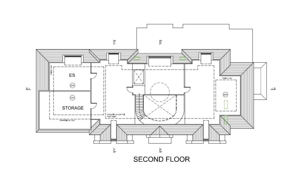
Full Description: 'Firs' is an opportunity to purchase a substantial family home, positioned on a one acre plot in one of the boroughs most sought after locations.Forest Ridge sits in the heart of Keston Park a gated private estate adjoining green belt countryside.The property enjoys a large frontage providing the ideal setting for this regency styled house.With accommodation in excess of 5500 sq ft the property. Attached are the propsed planning drawings that would provide around 10,000 sq ftThis property has multiple options, either as a property to live in , that has recently been completely refurbished inside, or as a development opportunity, taking advantage of its amazing position and plot in one oh Keston Parks premier roadsForest Ridge is situated within minutes’ walk of Locksbottom Village with its excellent amenities that include some first class restaurants and access to Orpington and Bromley mainline stations. The property also falls within the popular Darrick Wood School catchment area.There is also access to a bridle way that gives access and backs onto the greenbelt.This is an idyllic location to live within the M25The M25 close by with access at junction 4.Local Authority: BromleyCouncil Tax Band: H

Location

Address

Forest Ridge, Keston Park

City

London

Legal Notice

Our comprehensive database is populated by our meticulous research and analysis of public data. MirrorRealEstate strives for accuracy and we make every effort to verify the information. However, MirrorRealEstate is not liable for the use or misuse of the site's information. The information displayed on MirrorRealEstate.com is for reference only.

Real Estate Broker
Alan de Maid, Locksbottom
Brokerage
Alan de Maid, Locksbottom
Top Tags
Likes

0

Views

84

This website uses cookies to ensure you get the best experience. Learn more