Former Parks Depot, Clopton Crescent, Solihull, B37 6QU
Property Details
None
Description
Property Details: • Type: N/A • Tenure: N/A • Floor Area: N/A
Key Features: • Freehold Vacant possession upon completion.
Location: • Nearest Station: N/A • Distance to Station: N/A
Agent Information: • Address: 1st Floor 75-77 Colmore Row, Birmingham, B3 2AP
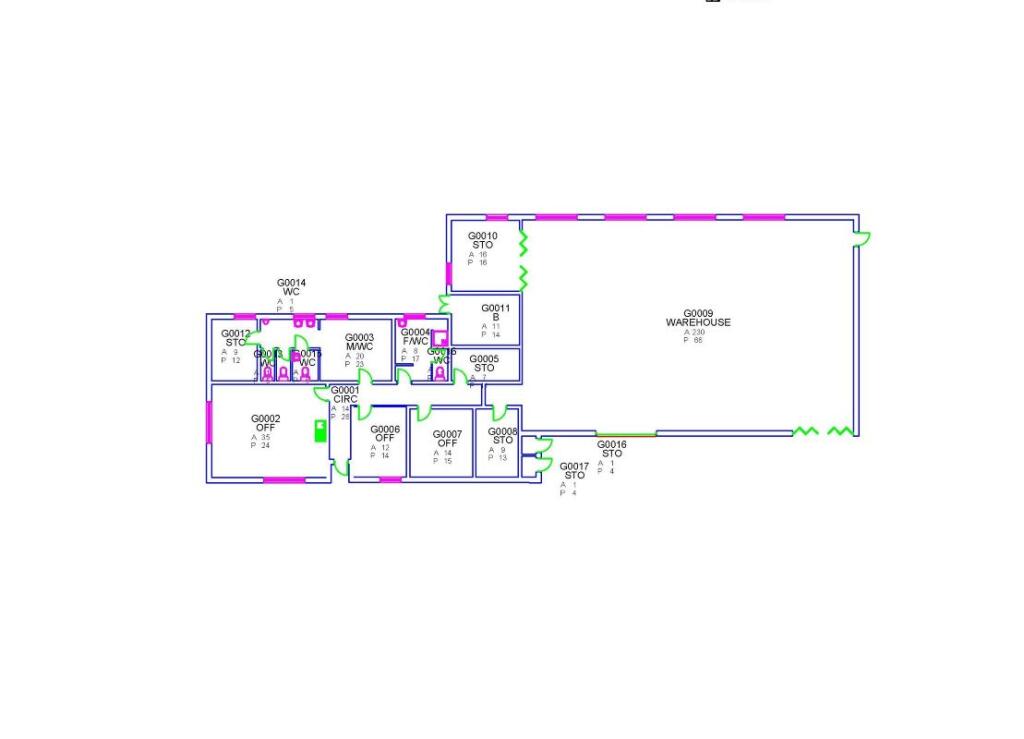
Full Description: For Sale By Public Auction on 11 September 2025 starting at 08:30 AM - A vacant freehold former depot and associated land extending to approximately 1.2 acres, which may be suitable for redevelopment, subject to obtaining the necessary planning consents
A relatively rectangular former depot site, accessed via a driveway off Clopton Crescent with ample off road parking, extending to approximately 1.2 acres.
Tenure Freehold Vacant possession upon completion.
Site Area The site extends to approximately 1.2 acres or thereabouts.
Planning The site may be suitable for a variety of uses (subject to formal planning consent being obtained). Such uses to include educational, community or residential. No guarantee or warranty is offered in respect of such consents being available.
Services Certain mains services are understood to be available in the vicinity of the site, but prospective buyers should make their own independent enquiries as to the suitability of services for their particular requirements.
Ground Conditions & Contamination Prospective buyers must undertake their own investigations with regard to ground conditions and contamination and fully satisfy themselves as to the suitability of the site for any use they may propose.
Rights of way, wayleaves, easements, restrictive covenants etc The site is sold subject to, or with the benefit of any rights of way, wayleaves, restrictive covenants etc. which may exist whether mentioned in these particulars or not.
Pre-auction Offers Please note no offers will be considered prior or post the Auction Sale.
Viewing Times Strictly by appointment with the Auctioneers - please note that whilst there is a building on the site, access to the building itself is not permitted for health and safety reasons.
Live-Streamed Auction Please note that the Auction will be livestreamed via our website. You can take part remotely via Proxy, Telephone or Online, if you wish to bid you must pre-register via our website no later than 3pm the day prior to the auction.
Disclaimer Bond Wolfe or their Agents for the seller of these Lots give notification that any particulars contained within the catalogue/website are prepared to the best of their knowledge and include information that has been provided to them. Plans, photographs and room measurements (provided via a 3rd party) are provided as guidance only and should not be relied upon. All potential buyers should make their own enquiries and investigations to the accuracy of the information contained in these particulars or to obtain further information that is not provided which they deem to be important prior to bidding. Any amendments to the particulars that Bond Wolfe are aware of will be published on the addendum, which is available within the lot information.
Viewings All viewings are undertaken at your own risk. It is recommended that you take a torch, as not all properties have electricity, and that appropriate clothing is worn. Bond Wolfe under no circumstances shall be liable and will not accept any responsibility for any indirect incidental, consequential, special, or exemplary damages, injury and/or death arising in connection with your access to any property, caused as a result of the property’s state of repair or your use/decision to use your own equipment or any furniture, equipment or appliances in the property.
*Definition of Guide Price and Reserve All properties are sold subject to a reserve price, which is the minimum price the seller is willing to accept and is confidential between the seller and Auctioneer. The guide price is only an indication as to where the reserve is currently set and not necessarily the Auctioneers expectation of what it will sell for. . If the guide price is a bracket figure, then the reserve price cannot be higher than the top end of the guide price, if the guide price is a fixed figure, then the reserve cannot be more than 10% above the guide price. The guide price and reserve price can be subject to change at any time up to and including the auction day and, properties can often sell for substantially more than the quoted guide price.
Costs at Auction When buying at auction you will unconditionally exchange contracts on the fall of the auctioneer’s gavel, please therefore ensure you have read the legal pack for each property prior to bidding. They are all individual and include the terms and conditions of your purchase as well as any costs in addition to the purchase price.
The sale of each lot is subject to an administration fee of £2,340 inc VAT (£1,950.00 + VAT) (unless otherwise stated in the important information available on Bond Wolfe’s website), payable on the fall of the gavel/at the end of the online auction. Please note that the administration fee for the Local Authority lots may differ and all interested parties should enquire directly with the Auctioneers as to the fee applicable.
Any additional costs excluding the administration fee will be listed in the Special Conditions within the legal pack and these costs will be payable on completion. The legal pack has been prepared by the seller’s solicitor(s), who are responsible for its contents and disclosing all know information. It is available to download free of charge under the ‘lot information’ on the Bond Wolfe website, and you take responsibility for reading and understanding the legal pack and are bound by all the contents. Any stamp duty and/or government taxes are not included within the Special Conditions within the legal pack and all potential buyers must make their own investigations.
Location
Address
Former Parks Depot, Clopton Crescent, Solihull, B37 6QU
City
Solihull
Features and Finishes
Freehold Vacant possession upon completion.
Legal Notice
Our comprehensive database is populated by our meticulous research and analysis of public data. MirrorRealEstate strives for accuracy and we make every effort to verify the information. However, MirrorRealEstate is not liable for the use or misuse of the site's information. The information displayed on MirrorRealEstate.com is for reference only.