Former United Free Church, Aberdeen, Aberdeenshire
Property Details
Mixed Use
Description
Property Details: • Type: Mixed Use • Tenure: FREEHOLD • Floor Area: N/A
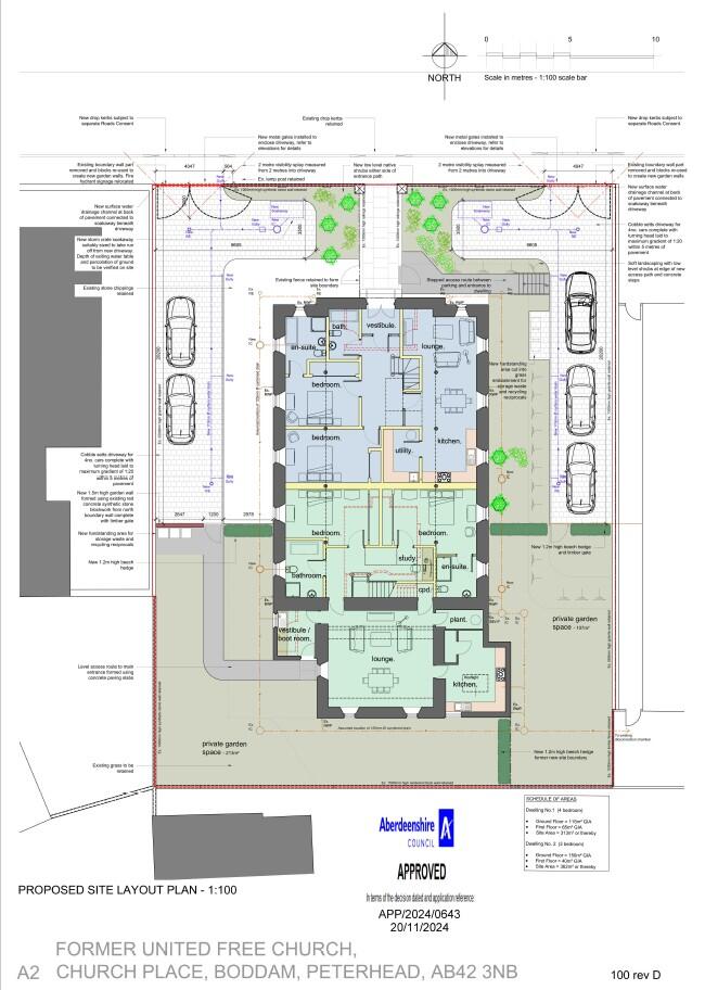
Key Features: • Unique commercial to residential development • Planning approved APP/2024/0643 for two spacious homes • Outstanding GDV potential • Coastal village location
Location: • Nearest Station: Dyce Station • Distance to Station: 24.022380958186577 miles
Agent Information: • Address: Building 3, 46 Munro Place, Anniesland, Glasgow G13 2UP
Full Description: Commercial to Residential Opportunity <br /> <br />We are delighted to present to auction this unique commercial to residential development opportunity in the Aberdeenshire coastal village of Boddam, approximately 3.5 miles south of Peterhead. The Former United Free Church enjoys prominent position on Church Place, close to Boddam village centre, and offers investors and developers an exciting residential project. Planning permission has been granted under Aberdeenshire Planning Reference APP/2024/0643 in November 2024 to create two spacious homes (1 x 3 bed, and 1 x 4 bed) over two levels within this beautiful granite building, with outstanding GDV potential for prospective buyers. The competitive guide price, and fantastic end value potential is sure to attract strong levels of interest. As such, early viewing is essential for a property that will not be around for long. <br /> <br />The coastal village of Boddam lies approximately 3.5 miles south of Peterhead, with Aberdeen approximately 28 miles to the south. A range of local facilities are within the village, and the Buchan Braes business centre offers further options. Commuters can easily access Ellon and Aberdeen by road and via the Ellon Park & Ride facility, and Aberdeen airport is around a 30 mile drive south. <br /> <br /> <br />PURCHASERS NOTES <br />Please note that these particulars have been prepared by us on the basis of information provided by our client. If there is any aspect of these particulars that you wish clarified or that you find misleading please contact the office where further information will be made available. <br /> <br />• No tests have been made of services, equipment or fittings. <br />• No warranty is given or implied as to the condition of buildings, services, fixtures, fittings etc. <br />• All measurements, distances and acres are approximate. <br />• Fixtures, fittings and other items are not included unless specified in these details. <br /> <br />This material is protected by the laws of copyright. The owner of the copyright is Auction House Scotland. The property sheet forms part of our database and is protected by the database rights and copyright laws. No unauthorised copying or distribution without permission. Auction House Scotland is revolutionising the sale of property in Scotland. <br /> <br />Remember, if you are buying a property which is being sold by Auction House Scotland you will normally be responsible for payment of a Buyer's Premium or Auction Fee of 3.6% of the purchase price subject to a minimum of £3600 inclusive of VAT. More details can be obtained on application. <br /> <br />Cybercrime Warning: <br />Please be aware that there is a significant risk posed by cyber fraud, specifically affecting email accounts and bank account details. PLEASE NOTE THAT OUR BANK ACCOUNT DETAILS WILL NOT CHANGE DURING THE COURSE OF A TRANSACTION AND WE WILL NOT CHANGE OUR BANK DETAILS VIA EMAIL. Please be careful to check account details with us in person if in any doubt. We will not accept responsibility if you transfer money into an incorrect account.
Location
Address
Former United Free Church, Aberdeen, Aberdeenshire
City
Aberdeen
Features and Finishes
Unique commercial to residential development, Planning approved APP/2024/0643 for two spacious homes, Outstanding GDV potential, Coastal village location
Legal Notice
Our comprehensive database is populated by our meticulous research and analysis of public data. MirrorRealEstate strives for accuracy and we make every effort to verify the information. However, MirrorRealEstate is not liable for the use or misuse of the site's information. The information displayed on MirrorRealEstate.com is for reference only.