Front Street Hetton Le Hole Houghton Le Spring

GBP 100000 For Sale

Property Details

Property Type

Office

Description

Property Details: • Type: Office • Tenure: N/A • Floor Area: N/A

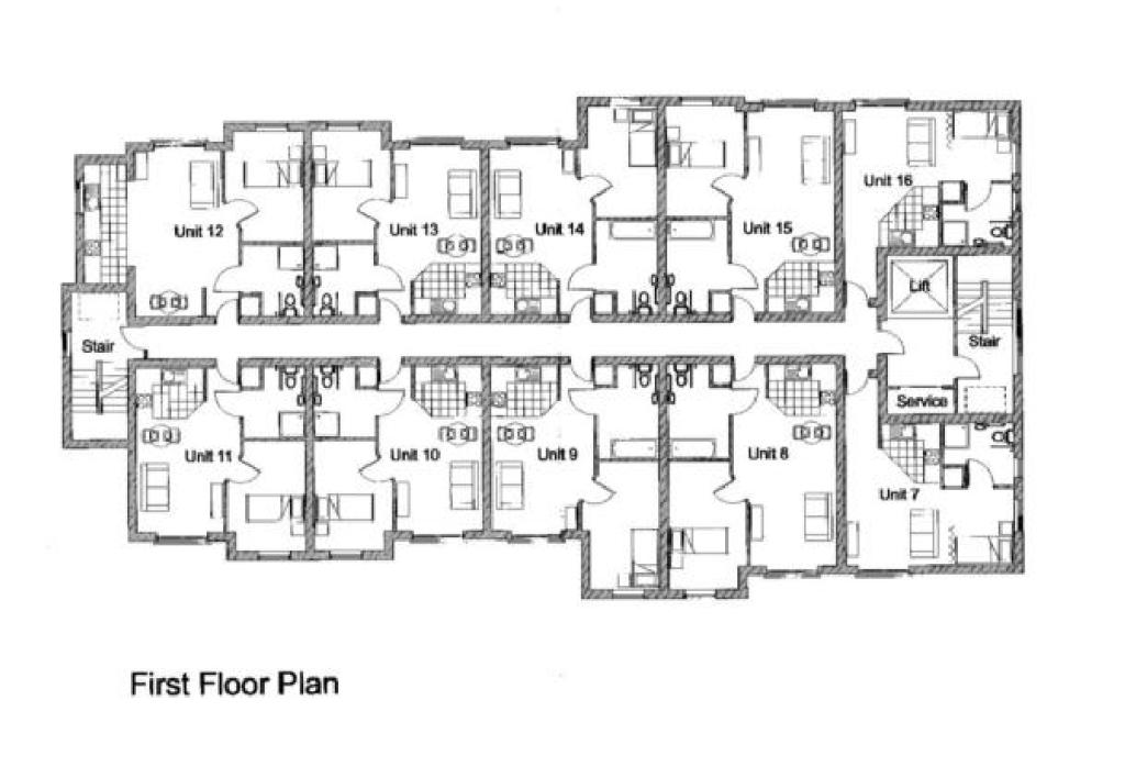
Key Features: • Land With Planning Permission • Former Site of St Nicholas' Church • Approval for 30 units • Contemporary Design

Location: • Nearest Station: Seaham Station • Distance to Station: 4.6 miles

Agent Information: • Address: 5 Ashfield Terrace Chester Le Street DH3 3PD

Full Description: 3 EXECUTIVE BUILDING PLOTS @ OFFERS AROUND £100,000 PER PLOTPlans for a wide variety of residential and care buildingsLand for sale with planning permission already approved to construct a 30+ 1 bed apartments, to include office, reception, lobby, lounge area and gym and has outline planning consent for EMI use. This is a unique opportunity, and will suit a variety of purchasers, from self-builders to those in the care industry. The site could be used for residential housing and split into 3 sites of approximately 550m2 per plot, subject to planning approval. The entrance could be gated to make it a more executive. Planning consent has also been approved for a mixture of bungalows and flatsThere is the option of developing the site in several other ways, subject to planning permission being approved for any application submitted.

Location

Address

Front Street Hetton Le Hole Houghton Le Spring

City

Houghton-le-Spring

Features and Finishes

Land With Planning Permission, Former Site of St Nicholas' Church, Approval for 30 units, Contemporary Design

Legal Notice

Our comprehensive database is populated by our meticulous research and analysis of public data. MirrorRealEstate strives for accuracy and we make every effort to verify the information. However, MirrorRealEstate is not liable for the use or misuse of the site's information. The information displayed on MirrorRealEstate.com is for reference only.

Real Estate Broker
Copeland Residential, Chester Le Street
Brokerage
Copeland Residential, Chester Le Street
Top Tags
000 PER PLOT
Likes

0

Views

67

This website uses cookies to ensure you get the best experience. Learn more