Gairn Mews, Gairn Terrace, Aberdeen, AB10

GBP 94995 For Sale

Property Details

Bedrooms

2

Bathrooms

1

Property Type

Flat

Description

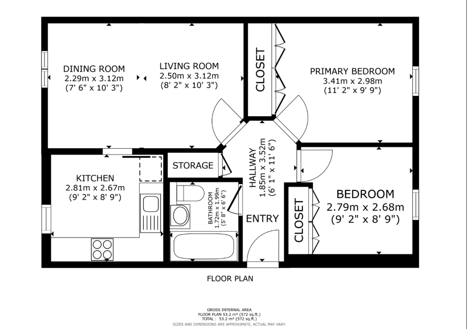
Property Details: • Type: Flat • Tenure: Freehold • Floor Area: N/A

Key Features: • Buy-to-let Investment • Tenanted & Fully Compliant • 2 Bedrooms • Home Report £110,000 • Current rental £720pm • Current Yield 9.1% • EPC Rating C • 53 sq m • Furnished Let • No buyer fees

Location: • Nearest Station: N/A • Distance to Station: N/A

Agent Information: • Address: Portolio Ltd, Westpoint, 4 Redheughs Rigg, Edinburgh, EH12 9DQ

Full Description: Tenanted two-bedroom first floor flat for sale, offering a turnkey buy-to-let investment opportunity in a popular and well-connected area of Aberdeen. The property extends to approximately 53m² and comprises a welcoming hallway, bright living room, fitted kitchen, two bedrooms, and a bathroom. It benefits from double glazed timber-frame windows, a gas-fired Glow Worm Ultracom 30cxi central heating boiler supplying radiators and domestic hot water, and an EPC rating of C. This modern apartment, built around 1994, is being sold with the tenants in situ as a buy-to-let investment property. The property is fully compliant and the current tenants have been a resident since December 2022, providing rental income on day 1 of purchase. The current tenancy generates an annual rental income of £8,640. The property is sold as seen, and the sale price includes all the inventory items. The Home Report value is £110K. The communal areas are looked after by FD Burnett. Gairn Mews is situated just south of Aberdeen city centre, within easy reach of the River Dee, Duthie Park, and a range of local shops, cafes, and transport links. The area remains popular with both professionals and families due to its convenient access to the city’s business districts, Robert Gordon University, and main commuter routes.BrochuresBrochure 1

Location

Address

Gairn Mews, Gairn Terrace, Aberdeen, AB10

Features and Finishes

Buy-to-let Investment, Tenanted & Fully Compliant, 2 Bedrooms, Home Report £110,000, Current rental £720pm, Current Yield 9.1%, EPC Rating C, 53 sq m, Furnished Let, No buyer fees

Legal Notice

Our comprehensive database is populated by our meticulous research and analysis of public data. MirrorRealEstate strives for accuracy and we make every effort to verify the information. However, MirrorRealEstate is not liable for the use or misuse of the site's information. The information displayed on MirrorRealEstate.com is for reference only.

Real Estate Broker
Portolio, Edinburgh
Brokerage
Portolio, Edinburgh
Top Tags
Current Yield 9.1% Home Report £110
Likes

0

Views

0

This website uses cookies to ensure you get the best experience. Learn more