Gatehead, Great Clifton, Workington, CA14 1TN

GBP 45000 For Sale

Property Details

Property Type

Plot

Description

Property Details: • Type: Plot • Tenure: N/A • Floor Area: N/A

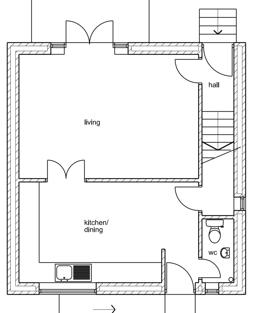
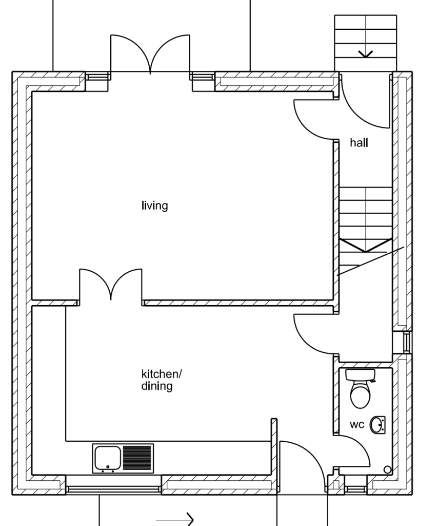
Key Features: • Planning permission secured for a 3 bedroom detached family home in Great Clifton • Quiet village life with shops, a park, and a pub within a 5 minute walk • Convenient location near the village centre and a "Good" rated primary school • Embrace the outdoors with open fields nearby and the National Park a short drive away • Spacious lounge, kitchen/diner, and downstairs w/c included in the approved plans • Two double bedrooms (one ensuite), a single bedroom, and a family bathroom upstairs • Affordable plot at £45,000 – build for less than buying a new build • Plot comes with planning permission – skip the hassle and paperwork • Easy access to Workington and Cockermouth by car or bus • Manageable self-build project, perfect for first-time builders or small developers

Location: • Nearest Station: Workington Station • Distance to Station: 2.8 miles

Agent Information: • Address: 33 Banklands, Workington, CA14 3EU

Full Description: Want To Cut Your Teeth On A Manageable Self Build Project? Self builds don’t have to be massive, expensive, Grand Designs mansions. This Great Clifton plot has planning permission for an affordable three bedroom detached on a family friendly estate.  Good things come in small packages and this tidy little plot is ready for you to create your dream three bedroom detached family home.It’s not in your typical self build plot location, tucked between an ex-council semi and Great Clifton Methodist Church.But despite the slightly unusual location it is in a handy spot, only a couple of minutes walk from the centre of this popular village.Everything you need in the village (including a shop, a park and the village hall) are all less than 5 minutes walk away. The pub is closest, just a couple of streets away!The village school (Derwent Vale Primary School) is rated “Good” by Ofsted and is less than a 10 minute walk awayGreat Clifton is a popular village where you can enjoy a quiet country pace of life by the river but still drive to Workington or Cockermouth in less than 15 minutes (and there’s a regular bus service too).It’s also the ideal starting point if you like getting out into the countryside. You’ve got open fields on your doorstep and it’s only a short drive west of the National Park. Loweswater is less than half an hour's drive or a 75 minute bike ride away.The plans have been drawn up and approved, outlining a ground floor with a spacious lounge, a downstairs WC and sociable kitchen / diner.Upstairs the plans include two double bedrooms (one with an ensuite), a single bedroom and a family bathroom.There’s no garage but there will be space to park on the drive.Finding a decent plot is often the hardest part of a self build / small build project. The next is going through all the hassle and paperwork to get planning permission.With this plot that’s all been taken care of you. If you’ve never taken on a self build project before this could be the perfect chance to build your own - without biting off more than you can chew.And with the plot only costing £45,000 it could be the perfect way to get more for your money and create a far better house than buying a new build.I know this won’t be for everyone but if it’s exactly the sort of opportunity you’ve been looking for, call today and we’ll arrange for you to check out the plot.

Location

Address

Gatehead, Great Clifton, Workington, CA14 1TN

City

Workington

Features and Finishes

Planning permission secured for a 3 bedroom detached family home in Great Clifton, Quiet village life with shops, a park, and a pub within a 5 minute walk, Convenient location near the village centre and a "Good" rated primary school, Embrace the outdoors with open fields nearby and the National Park a short drive away, Spacious lounge, kitchen/diner, and downstairs w/c included in the approved plans, Two double bedrooms (one ensuite), a single bedroom, and a family bathroom upstairs, Affordable plot at £45,000 – build for less than buying a new build, Plot comes with planning permission – skip the hassle and paperwork, Easy access to Workington and Cockermouth by car or bus, Manageable self-build project, perfect for first-time builders or small developers

Legal Notice

Our comprehensive database is populated by our meticulous research and analysis of public data. MirrorRealEstate strives for accuracy and we make every effort to verify the information. However, MirrorRealEstate is not liable for the use or misuse of the site's information. The information displayed on MirrorRealEstate.com is for reference only.

Real Estate Broker
Mark Buchanan Property Group, Powered by eXp UK, Workington
Brokerage
Mark Buchanan Property Group, Powered by eXp UK, Workington
Top Tags
Spacious lounge kitchen/diner a park
Likes

0

Views

25

This website uses cookies to ensure you get the best experience. Learn more