Gilstead Lane, Bingley, West Yorkshire, BD16
Property Details
Plot
Description
Property Details: • Type: Plot • Tenure: FREEHOLD • Floor Area: N/A
Key Features: • Detached
Location: • Nearest Station: Bingley Station • Distance to Station: 1.0144574203607817 miles
Agent Information: • Address: Covering Yorkshire
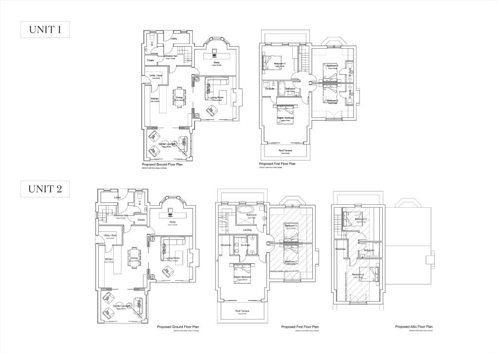
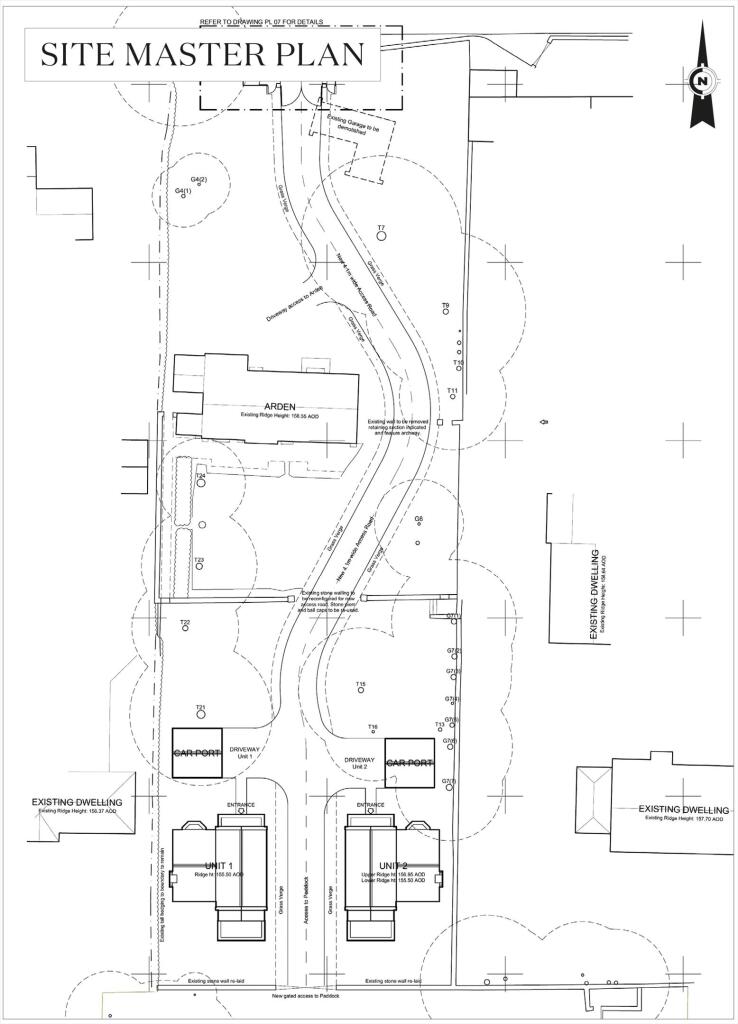
Full Description: This is one of the last remaining and arguably best plots available in Gilstead, offering a rare chance to create an exclusive and private residential community. The development is perfectly positioned to enjoy both the tranquillity of a secluded setting and the convenience of local amenities, schools, and transport links.<br /><br />SITUATION <br />Set in the highly sought-after village of Gilstead, near Bingley, this unique development plot offers full planning permission to construct two luxurious stone-built homes and a potential third property (subject to further planning approval) in this exceptional tranquil and private setting, in one of West Yorkshire's most prestigious and picturesque locations. <br /><br />The approved development includes full planning permission for the following: <br />• Plot 1 (Unit 1): A 4-bedroom, 4-bathroom detached property designed to offer spacious family living. <br />• Plot 2 (Unit 2): A 5-bedroom, 3-bathroom detached property offering luxury and comfort. <br />• Both properties come with double timber frame carports. <br />• The rear gardens of Plots 1 and 2 are south-facing, providing stunning views over a beautiful paddock surrounded by mature trees and vibrant springtime flowers — an idyllic backdrop for luxury living. <br />• This is an exceptional opportunity to develop high-end homes in a highly sought-after, prestigious location. <br />• In addition to the two main properties, there is an opportunity to build a third property (subject to further planning permission): <br />• Plot 3: A 2/3-bedroom Gate House located to the north of the site (subject to further planning approval).<br /><br />The decision notice for this development is 17/02753/FUL. Full planning documents and additional information can be viewed online on the Bradford MDC planning portal. This planning permission provides a fantastic opportunity to create a prestigious development in one of the most desirable areas of Gilstead.<p><br />Gilstead Lane is a sought-after and prestigious location, offering the perfect balance of tranquil countryside living while being conveniently close to the amenities of nearby Bingley. The area is served by well-regarded local schools in Eldwick and Bingley, with Bradford Grammar School easily accessible by both road and rail. Just 100 metres from the end of Gilstead Lane, open fields lead to scenic footpaths that take you directly to Shipley Glen, Baildon Moors and Saltaire, providing a wealth of exceptional walking opportunities. Bingley is a bustling town with excellent road and rail links to major West Yorkshire towns, cities, and beyond. Bingley Station, located approximately a mile away, offers direct train services to Leeds (with connections to London), Bradford, and Skipton, while Leeds Bradford Airport is approximately 7 miles away. The renowned World Heritage Site of Saltaire is also nearby, easily accessible by a short train ride.<br /><br />Distances: Bingley – 1 mile<br />Bradford – 7 miles<br />Leeds – 12 miles<br />(All distances are approximate)</p>
Location
Address
Gilstead Lane, Bingley, West Yorkshire, BD16
City
West Yorkshire
Features and Finishes
Detached
Legal Notice
Our comprehensive database is populated by our meticulous research and analysis of public data. MirrorRealEstate strives for accuracy and we make every effort to verify the information. However, MirrorRealEstate is not liable for the use or misuse of the site's information. The information displayed on MirrorRealEstate.com is for reference only.