Glassel, Banchory, AB31

GBP 100000 For Sale

Property Details

Bedrooms

1

Bathrooms

1

Property Type

1

Description

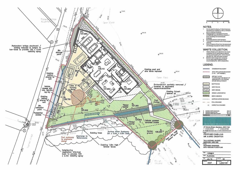
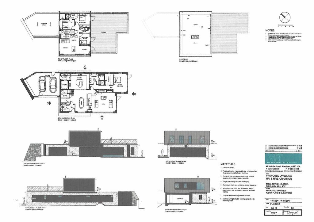
SUPERB PLOT IN SOUGHT AFTER LOCATION ON ROYAL DEESIDE WITH FULL PLANNING PERMISSIONPlanning Ref : APP/2018/2955We are delighted to bring to the market this excellent building plot with full planning permission for a modern detached four bedroom family home. The plans could be altered to suit individual requirements but would require a new planning application. The plot is situated in the very sought after and quiet rural location of Glassel just outside the very popular Deeside town of Banchory and is approximately .25 of an acre. Services are available to the site and connection would be at the expense of the purchaser. Banchory offers a wide range of local amenities including nursery, primary and secondary schools along with leisure centre with sports facilities and swimming pool. It has a wide range of shops and local businesses, supermarkets, coffee shops and restaurants. Outdoor activities include 18 hole golf courses, parks, hill walks and cycle trails. Glassel is well placed for an easy commute to the business parks at Westhill and Kingswells and all that Royal Deeside has to offer.DisclaimerThese particulars do not constitute any part of an offer or contract. All statements contained therein, while believed to be correct, are not guaranteed. All measurements are approximate. Intending purchasers must satisfy themselves by inspection or otherwise, as to the accuracy of each of the statements contained in these particulars.

Location

Address

Glassel, Banchory, AB31

City

Banchory

Features and Finishes

Stunning rural location, Services available, Excellent access, The best of Royal Deeside, Close to local amenities., Full planning for stunning property

Legal Notice

Our comprehensive database is populated by our meticulous research and analysis of public data. MirrorRealEstate strives for accuracy and we make every effort to verify the information. However, MirrorRealEstate is not liable for the use or misuse of the site's information. The information displayed on MirrorRealEstate.com is for reference only.

Real Estate Broker
Remax City & Shire Aberdeen, Aberdeen
Brokerage
Remax City & Shire Aberdeen, Aberdeen
Top Tags
Likes

0

Views

94

This website uses cookies to ensure you get the best experience. Learn more