Glenholme Park, Clayton

GBP 1500000 For Sale

Property Details

Bedrooms

11

Bathrooms

6

Property Type

Manor House

Description

Property Details: • Type: Manor House • Tenure: N/A • Floor Area: N/A

Key Features: • STONE BUILT MANORHOUSE • DATING BACK TO 1800'S • REMARKABLE PERIOD FEATURES • SEVEN RECEPTION ROOMS • GRADE II LISTED • ELEVEN BEDROOMS • GALLERIED LANDING • ELECTRIC GATES • VILLAGE LOCATION • HUGE OPPORTUNITY

Location: • Nearest Station: N/A • Distance to Station: N/A

Agent Information: • Address: 11 Green End Clayton Bradford BD14 6BA

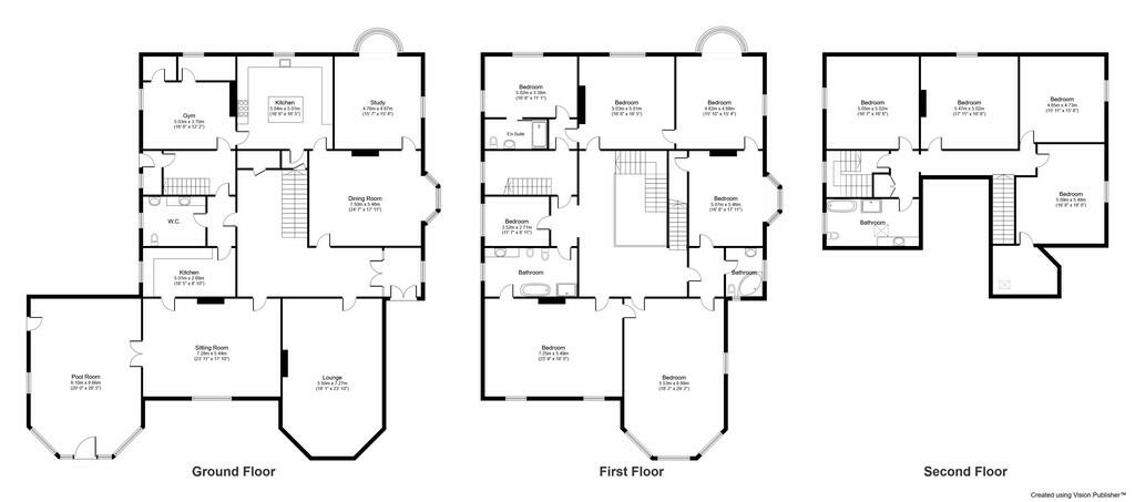
Full Description: Whitney's have pleasure in offering for sale "Glenholme Park" a most imposing stone built detached residence dating back to 1888 and offering unrivalled family accommodation. Designed and built for Alfred Wallis, a local mill owner. This stunning Grade II Listed manor house has significant space, including 6-7 reception rooms, two kitchens and 11 bedrooms. The wrap-around gardens offer a private setting and there is ample parking accessed through electric gates. Glenholme Park is rich in local history and superb original character features, along with a decidedly lavish interior. Most rooms have plaster decoration, paper-mache friezes and grand fireplaces in oak or marble and all with pictorial tiles. This architectural gem offers discerning purchasers a remarkable opportunity to own a local landmark property. There may be potential to reconfigure the layout to create two sizeable properties, and could also be suitable for a variety of commercial uses STTP. The main entrance hall is a sight to behold, leading to an impressive sweeping staircase with a galleried landing and the original roof lantern window. The property boasts detailed plasterwork, oak panelling, the original oak doors and intricate brass hardware, exceptional stained glasswork, plus so much more. The owner has also recently installed a new central heating boiler system, at considerable expense. Standing at over 8000 square feet, this is an exceptionally large property that represents value for money when calculating the price per foot. To the ground floor - Entrance Hall, Main Hall, Lounge, Sitting Room, Pool Room, Dining Room, two Kitchens, Inner Hall, Study, Gym and WC.To the first floor - Seven bedrooms, two Ensuite and a family Bathroom.To the second floor - Four Bedrooms and a Bathroom. Externally the property is accessed via electric gates that lead to a large driveway and substantial gardens. The village of Clayton is 3.5 miles from Bradford city centre and has a variety of local amenities. Leeds Bradford Airport is just 12 miles away and the larger cities of Leeds and Manchester are 13 miles and 36 miles away respectively.Please register your interest with Whitney's on or email  Brochures5 Page Portrait -...

Location

Address

Glenholme Park, Clayton

City

Clayton

Features and Finishes

STONE BUILT MANORHOUSE, DATING BACK TO 1800'S, REMARKABLE PERIOD FEATURES, SEVEN RECEPTION ROOMS, GRADE II LISTED, ELEVEN BEDROOMS, GALLERIED LANDING, ELECTRIC GATES, VILLAGE LOCATION, HUGE OPPORTUNITY

Legal Notice

Our comprehensive database is populated by our meticulous research and analysis of public data. MirrorRealEstate strives for accuracy and we make every effort to verify the information. However, MirrorRealEstate is not liable for the use or misuse of the site's information. The information displayed on MirrorRealEstate.com is for reference only.

Real Estate Broker
Whitney's, Clayton
Brokerage
Whitney's, Clayton
Top Tags
GRADE II LISTED ELEVEN BEDROOMS
Likes

0

Views

96

This website uses cookies to ensure you get the best experience. Learn more