Grand Avenue, Bournemouth, BH6

GBP 695000 For Sale

Property Details

Bedrooms

3

Bathrooms

3

Property Type

Ground Flat

Description

Property Details: • Type: Ground Flat • Tenure: N/A • Floor Area: N/A

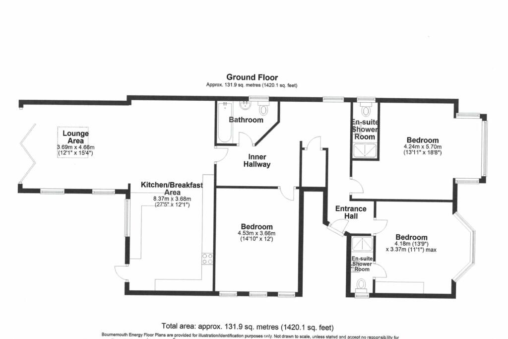
Key Features: • LUXURY 3 DOUBLE BEDROOM & THREE BATHROOM APARTMENT • SUPERB LOCATION IN THE HEART OF SOUTHBOURNE • SPACIOUS OPEN PLAN KITCHEN / LIVING ROOM • OWN PRIVATE GARDEN • ALLOCATED PARKING • INTERNAL FOOTPRINT OF 1420 SQ FT • SHARE OF FREEHOLD • SERVICE CHARGE AD HOC & NO GROUND RENT • OFFERED WITH NO FURTHER CHAIN

Location: • Nearest Station: N/A • Distance to Station: N/A

Agent Information: • Address: Purplebricks, 650 The Crescent Colchester Business Park, Colchester, United Kingdom, CO4 9YQ

Full Description: The PropertyAn extremely spacious and spectacular ground floor apartment. Located in the heart of Southbourne and walking distance to our stunning Beaches. The luxury apartment comprises of a high spec OPEN PLAN fitted kitchen / living space with fully fitted appliances and direct access to the south-west facing private garden & summer house through wide folding glass doors. It also consists of 3 DOUBLE BEDROOMS two of which include en-suites & original fireplace features. There is a large family bathroom & roomy storage cupboard in hallway. Allocated car-parking space & bike shed The entire property is 1420sqft, Property Description DisclaimerThis is a general description of the property only, and is not intended to constitute part of an offer or contract. It has been verified by the seller(s), unless marked as 'draft'. Purplebricks conducts some valuations online and some of our customers prepare their own property descriptions, so if you decide to proceed with a viewing or an offer, please note this information may have been provided solely by the vendor, and we may not have been able to visit the property to confirm it. If you require clarification on any point then please contact us, especially if you’re traveling some distance to view. All information should be checked by your solicitor prior to exchange of contracts.Successful buyers will be required to complete anti-money laundering checks. Our partner, Lifetime Legal Limited, will carry out the initial checks on our behalf. The current non-refundable cost is £80 inc. VAT per offer. You’ll need to pay this to Lifetime Legal and complete all checks before we can issue a memorandum of sale. The cost includes obtaining relevant data and any manual checks and monitoring which might be required, and includes a range of benefits. Purplebricks will receive some of the fee taken by Lifetime Legal to compensate for its role in providing these checks.BrochuresBrochure

Location

Address

Grand Avenue, Bournemouth, BH6

Features and Finishes

LUXURY 3 DOUBLE BEDROOM & THREE BATHROOM APARTMENT, SUPERB LOCATION IN THE HEART OF SOUTHBOURNE, SPACIOUS OPEN PLAN KITCHEN / LIVING ROOM, OWN PRIVATE GARDEN, ALLOCATED PARKING, INTERNAL FOOTPRINT OF 1420 SQ FT, SHARE OF FREEHOLD, SERVICE CHARGE AD HOC & NO GROUND RENT, OFFERED WITH NO FURTHER CHAIN

Legal Notice

Our comprehensive database is populated by our meticulous research and analysis of public data. MirrorRealEstate strives for accuracy and we make every effort to verify the information. However, MirrorRealEstate is not liable for the use or misuse of the site's information. The information displayed on MirrorRealEstate.com is for reference only.

Real Estate Broker
Purplebricks, covering Bournemouth
Brokerage
Purplebricks, covering Bournemouth
Top Tags
OWN PRIVATE GARDEN ALLOCATED PARKING
Likes

0

Views

32

This website uses cookies to ensure you get the best experience. Learn more