Grange Road, Riddlesden, Keighley, West Yorkshire, BD20 5AB
Property Details
Residential Development
Description
Property Details: • Type: Residential Development • Tenure: N/A • Floor Area: N/A
Key Features: • 0.193 Acres (0.078 hectares) • Available Immediately • Increasingly Rare Freehold Opportunity • reference number: 17/06520/FUL
Location: • Nearest Station: Keighley Station • Distance to Station: 0.8 miles
Agent Information: • Address: 8 Main Street Cross Hills Keighley BD20 8TB
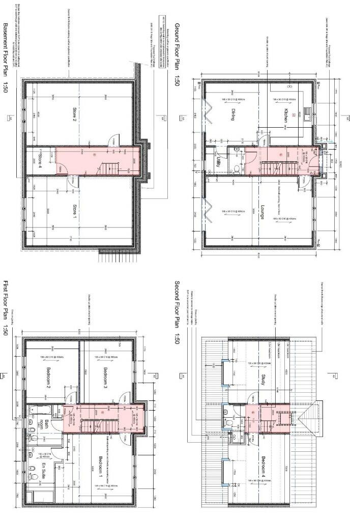
Full Description: L o c a t i o n The site is situated on Grange Road just off Bradford Road (B6265) within the Riddlesden District of Keighley having good access to all local amenities. D e s c r i p t i o n The site extends to 0.078 hectares (0.193 acres) and is offered for sale with planning consent for 2 new detached homes. The surroundings are residential in nature. S e r v i c e s We understand that all main services are either installed or readily available however we recommend that prospective purchasers make their own enquires and satisfy themselves with regards to the availability, suitability and capacity of such services. P l a n n i n g Planning Permission for 2 dwellings has been granted by The City of Bradford Metropolitan District Council (reference number: 17/06520/FUL). A copy of the associated plans are reproduced within these particulars. Additional information about the planning approval is available at
applications/applicationDetails.do?activeTab=docum ents&keyVal=OZXCHRDHHU400 Approved Scheme. The approved scheme is for 2 units with approximate areas as follows; Plot 1 4/5 bedroomed detached house Internal Accommodation 3,500 sqft
Plot 2 4/5 bedroomed detached house Internal Accommodation 3,500 sqft External Parking and amenity/garden areas
We recommend interested parties make their own enquires with regards their specific use to the local planning office on Tel: , email: planning.
G u i d e P r i c e £300,000
V A T All prices/rents are quoted exclusive of any VAT liability if applicable.
L e g a l C o s t s Each party will be responsible for their own legal costs incurred during the transaction.
F u r t h e r I n f o r m a t i o n Lisa Throupe - / Ian Hayfield - Justin Robinson -BrochuresBrochure 1
Location
Address
Grange Road, Riddlesden, Keighley, West Yorkshire, BD20 5AB
City
Keighley
Features and Finishes
0.193 Acres (0.078 hectares), Available Immediately, Increasingly Rare Freehold Opportunity, reference number: 17/06520/FUL
Legal Notice
Our comprehensive database is populated by our meticulous research and analysis of public data. MirrorRealEstate strives for accuracy and we make every effort to verify the information. However, MirrorRealEstate is not liable for the use or misuse of the site's information. The information displayed on MirrorRealEstate.com is for reference only.