Great Asby, Appleby-In-Westmorland

GBP 175000 For Sale

Property Details

Property Type

Plot

Description

Property Details: • Type: Plot • Tenure: N/A • Floor Area: N/A

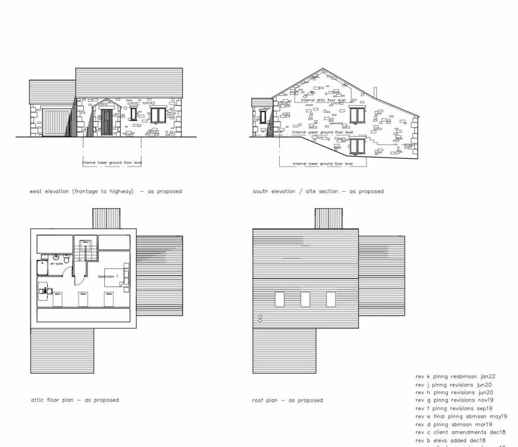
Key Features: • Around 0.46 acre building plot • On edge of desirable village of Great Ashby • Elevated plot with fantastic views • Planning permission for 3 bedroom home • Incorporating an attached garage with off road parking and garden • Excellent village community & local amenities • Planning Ref E/01/18A • Yorkshire Dales National Park

Location: • Nearest Station: Appleby Station • Distance to Station: 4.7 miles

Agent Information: • Address: Unit 3 Mason Court Gillan Way Penrith 40 Business Park Penrith Cumbria CA11 9GR

Full Description: This is a fantastic opportunity to purchase a building plot on the edge of the popular village of Great Asby. The plot extends to around 0.46  acre and enjoys fantastic, elevated views of the surrounding countryside. Under Planning Ref E/01/18A permission has been granted to erect a two storey, three bedroomed dwelling incorporating an attached garage with off road parking and garden.Arranged over 3 floors, with some reverse style living, there is around 1600 sq.ft of living accommodation.  On the lower ground floor there are 2 double bedrooms, family bathroom and a utility room.  On the ground floor there is an abundance of living space with an open plan family room, dining room and separate lounge.  On the first floor there is a superb master bedroom suite with an ensuite shower room.This is a rare opportunity to create a family home, in a desirable village location, on the edge of the beautiful Westmorland  Dales village of Great Asby and benefits from having a primary school, active village hall, lively village pub and outstanding fibre Broadband to each house..  The village is a short drive away from the market towns of Appleby, Kirkby Stephen and A66/M6 transport links and would make a perfect family home.There is a Local Occupancy restriction imposed on this plot, further details are available on the Yorkshire Dales planning portal using reference E/01/18A or contact us for more information.** Viewing strictly by appointment only **Disclaimer - These particulars, whilst believed to be accurate are set out as a general guideline and do not constitute any part of an offer or contract. Intending Purchasers should not rely on them as statements of representation of fact, but must satisfy themselves by inspection or otherwise as to their accuracy. The services, systems, and appliances shown may not have been tested and has no guarantee as to their operability or efficiency can be given. All floor plans are created as a guide to the lay out of the property and should not be considered as a true depiction of any property and constitutes no part of a legal contract.Planning Permission - Under Planning Ref E/01/18A permission has been granted to erect a two storey, three bedroomed dwelling incorporating an attached garage with off road parking and garden.BrochuresGreat Asby, Appleby-In-Westmorland

Location

Address

Great Asby, Appleby-In-Westmorland

City

Appleby-in-Westmorland

Features and Finishes

Around 0.46 acre building plot, On edge of desirable village of Great Ashby, Elevated plot with fantastic views, Planning permission for 3 bedroom home, Incorporating an attached garage with off road parking and garden, Excellent village community & local amenities, Planning Ref E/01/18A, Yorkshire Dales National Park

Legal Notice

Our comprehensive database is populated by our meticulous research and analysis of public data. MirrorRealEstate strives for accuracy and we make every effort to verify the information. However, MirrorRealEstate is not liable for the use or misuse of the site's information. The information displayed on MirrorRealEstate.com is for reference only.

Real Estate Broker
David Britton Estates, Penrith
Brokerage
David Britton Estates, Penrith
Top Tags
Likes

0

Views

94

This website uses cookies to ensure you get the best experience. Learn more