Great Maplestead, Halstead, Essex

GBP 450000 For Sale

Property Details

Property Type

Barn

Description

Property Details: • Type: Barn • Tenure: N/A • Floor Area: N/A

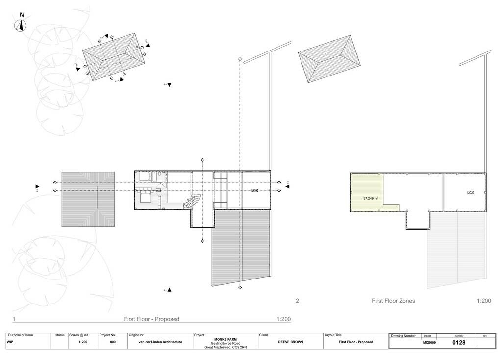
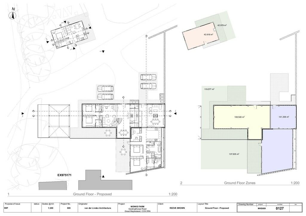
Key Features: • Idyllic rural location • Planning Ref: 24/01780/COUPA • Permission for 3 units • All in about 0.4 acres • Potential for additional land to be purchased

Location: • Nearest Station: N/A • Distance to Station: N/A

Agent Information: • Address: 2A Broad Street, Boxford, CO10 5DX

Full Description: Description An exciting opportunity to acquire a unique development site with planning permission for the conversion of two agricultural barns under Class Q permitted development rights and to create three units comprising one detached single storey dwelling and two semi-detached two storey barn conversions. Each will enjoy their own parking and gardens and stand in a rural setting set slightly back from the road within this highly desirable village. About the Area Great Maplestead, which in the past has been awarded "Best Kept Village in Essex," is an undeniably attractive and thriving village with a good community feel. Local amenities include a highly regarded primary school. The nearby market towns of Halstead, Sudbury and Braintree provide further amenities and services, including a mainline service to London Liverpool Street from the latter. Planning Reference 24/01780/COUPA - "Prior approval for the change of use of agricultural building to a dwellinghouse (Class C3), and for associated operational development - Change of use to 3 No. residential dwellings." Local Authority Braintree District Council Services Private drainage. Agents Notes All convenants, restrictions and planning stipulations can be viewed by using the planning referrance quoted above in the planning section of the Braintree District Council website. Viewing Arrangments Strictly by appointment only with a member of the Town & Village team in attendance - please contact the office for further details or to arrange a viewing. Disclaimer Town & Village Properties (and its subsidiaries and their joint Agents where applicable) for themselves and for the vendors or lessors of this property for whom they act, give notice that (I) these particulars are a general outline only for the guidance of prospective purchasers or tenants, and do not constitute the whole or any part of an offer or contract (II) Town & Village Properties cannot guarantee the accuracy of any description, dimensions, references to conditions, necessary permissions for use and occupancy and other details contained herein and prospective purchasers or tenants must not rely on them as statements of fact or representations and must satisfy themselves as to their accuracy, (III) No employee of Town & Village Properties (and its subsidiaries and their joint Agents where applicable) has any authority to make or give any representation or warranty or enter into any contract whatever in relation to the property, (IV) Town & Village Properties (and its subsidiaries and their joint Agents where applicable) will not be liable in negligence or otherwise, for any loss arising from the use of these particulars and Town & Village Properties (and its subsidiaries and their joint Agents where applicable) have not tested any apparatus, equipment, fixtures and fittings or services and so cannot verify that they are in working order or fit for the purpose. A buyer is advised to obtain verification from their Solicitor, (V) Photographs will only show certain parts of the property and assumptions should not be made in respect of those parts of the property that have not been photographed. (Items or contents shown in the photographs are not included as part of the sale unless specified otherwise. It should not be assumed the property will remain as shown in the photograph. Photographs are taken using a wide-angle lens. BrochuresPDF Brochure

Location

Address

Great Maplestead, Halstead, Essex

City

Great Maplestead

Features and Finishes

Idyllic rural location, Planning Ref: 24/01780/COUPA, Permission for 3 units, All in about 0.4 acres, Potential for additional land to be purchased

Legal Notice

Our comprehensive database is populated by our meticulous research and analysis of public data. MirrorRealEstate strives for accuracy and we make every effort to verify the information. However, MirrorRealEstate is not liable for the use or misuse of the site's information. The information displayed on MirrorRealEstate.com is for reference only.

Real Estate Broker
Town & Village Properties, Boxford
Brokerage
Town & Village Properties, Boxford
Top Tags
3 units permission 0.4 acres land
Likes

0

Views

84

This website uses cookies to ensure you get the best experience. Learn more