Green Lane, South Chailey, Lewes, East Sussex, BN8

GBP 400000 For Sale

Property Details

Property Type

Land

Description

Property Details: • Type: Land • Tenure: N/A • Floor Area: N/A

Key Features:

Location: • Nearest Station: Plumpton Station • Distance to Station: 2.2 miles

Agent Information: • Address: Forge Meadow Hammer Lane, Cowbeech, BN27 4JL

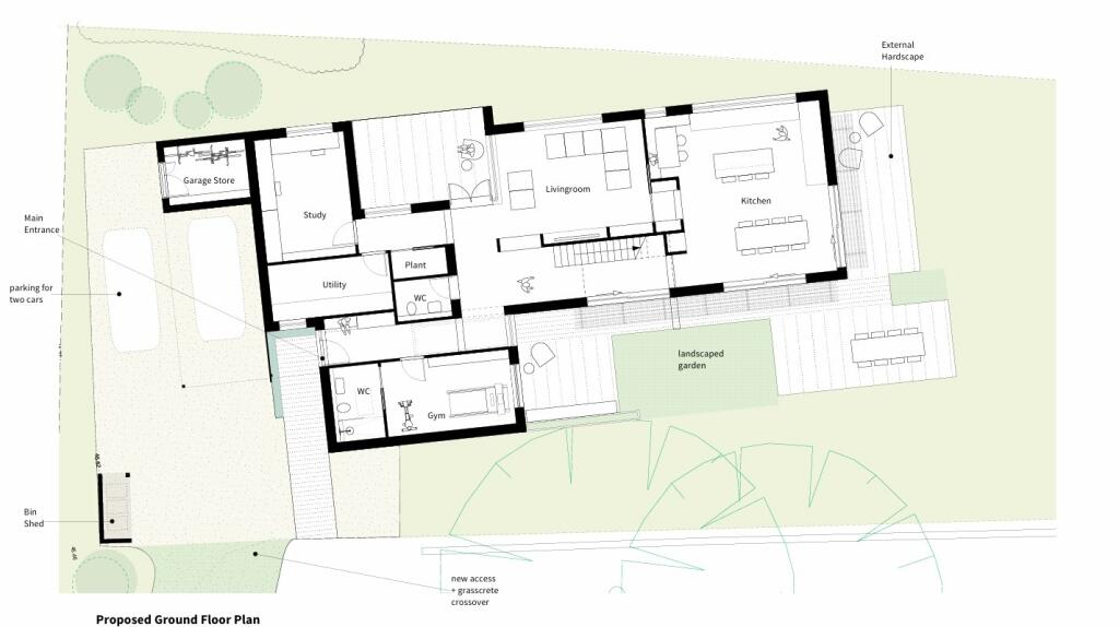
Full Description: GUIDE PRICE: £400,000 - £450,000PLEASE NOTE: Planning permission has been approved and the site is fully serviced with sewage, water and electricity.• An exciting and substantial sized bespoke luxury building plot with the accommodation design extending to 2,268 square feet (220 square meters), set within circa 0.5 of an acre of gardens and associated meadow land, which in turn backs onto further grazing meadows. • This unique and impressive single bespoke building plot is considered perfect for either a boutique developer or a self-builder looking for a semi-rural setting, but at the same time not isolated.• The existing planning permission and current designs for this building plot are presently for an ultra-modern detached bespoke luxury house presently to comprise of two storeys with the accommodation area to extend to approximately 2,268 square feet (220 square meters)• First floor proposed internal accommodation designs are to comprise of three double bedrooms, as well as a luxury family bathroom/shower room. The main master bedroom will also have a feature balcony, a walk-in dressing room and luxury ensuite shower room. • Ground floor proposed internal accommodation designs are to comprise of a generous sized reception hall, a cloakroom, a study, a living room, an open plan kitchen / breakfast room and adjoining open plan dining room, a separate utility room, a plant room and fourth bedroom with ensuite shower room• Outside planning design allows for 3 sun terraces and a further alfresco dining area, as well as a garage store and carport, in addition to further parking areas• Exciting exterior designs with natural green garden roof area, further unique pitched roof and large picture and bi-folding windows • These bespoke building plots very rarely come onto the open market for purchase, so don’t delay and call Neville and Neville Estate Agents today • Located down a quiet semi-rural lane backing onto farmland• Haywards Heath mainline train station located only 15 minute’s drive away, making this bespoke building plot land perfect for city commutersDESCRIPTION: An extremely rare opportunity to purchase a fabulous and impressive luxury bespoke single building plot which comes with circa 0.5 of an acre in total of gardens and meadow land, with current planning permission designs to build a detached 2,268 square foot ultra-modern designed eco influenced 3 to 4 bedroomed two storey residence backing onto farmland located down Green Lane Chailey East Sussex. The present planning permission already allows for the ground floor layout to be comprised with a fairly long and generous sized reception hall, a bedroom with ensuite shower room, a further cloakroom, a study, a plant room, a living room, an open plan kitchen / breakfast room with an adjoining open plan dining room and a separate utility room.The first-floor accommodation planning designs currently allow for three double bedrooms, with the main bedroom to benefit from a large feature balcony, an ensuite shower room and a walk-in dressing room. Outside, the gardens which will be located close to house design, will cater for three separate sun terraces, as well as for a further alfresco dining area. In addition, there will be covered parking for two vehicles and a storage garage section for bicycles etc. Boutique builders and self-builders can obviously choose to amendments to the present exterior materials that have been chosen to approve subject to planning. LOCATION: This unique bespoke building plot with planning permission is located near the end of Green Lane Chailey and backs directly onto meadow land / previous grazing land. The village of Chailey is only a few minutes’ drive away. Haywards Heath with its mainline train station is just 15 minutes by car. The convenient distance of both Haywards Heath and Lewes with their mainline stations, makes this building plot perfect for London clients looking to build a luxury ultra-modern home that is within commuting distance for the city. Depending upon educational requirements, there is an abundance of both state and private schools nearby, including Ardingly College and Great Walstead to name just a few. Excellent leisure facilities and extensive shopping can also be found at both Lewes and Haywards Heath. VIEWINGS FOR THIS EXCITING BESPOKE BUILDING PLOT ARE TO BE STRICTLY ARRANGED WITH THE AGENT NEVILLE AND NEVILLEFOR FURTHER DETAILS RELATING TO THE PLANNING FOR THIS SITE, PLEASE ASK FOR THOMAS NEVILLE AGENTS NOTE: Please note that these details have been prepared as a general guide and do not form part of a contract. We have not carried out a detailed survey, nor tested the services, appliances and specific fittings. Room sizes are approximate and should not be relied upon. Any verbal statements or information given about this property, again, should not be relied on and should not form part of a contract or agreement to purchase.

Location

Address

Green Lane, South Chailey, Lewes, East Sussex, BN8

Legal Notice

Our comprehensive database is populated by our meticulous research and analysis of public data. MirrorRealEstate strives for accuracy and we make every effort to verify the information. However, MirrorRealEstate is not liable for the use or misuse of the site's information. The information displayed on MirrorRealEstate.com is for reference only.

Real Estate Broker
Neville & Neville Estate Agents, Cowbeech
Brokerage
Neville & Neville Estate Agents, Cowbeech
Top Tags
Likes

0

Views

60

This website uses cookies to ensure you get the best experience. Learn more