Greenbank QLD 4124
Property Details
4
2
New House & Land
Description
Property Details: • Type: New House & Land
• Bedrooms: 4 • Bathrooms: 2
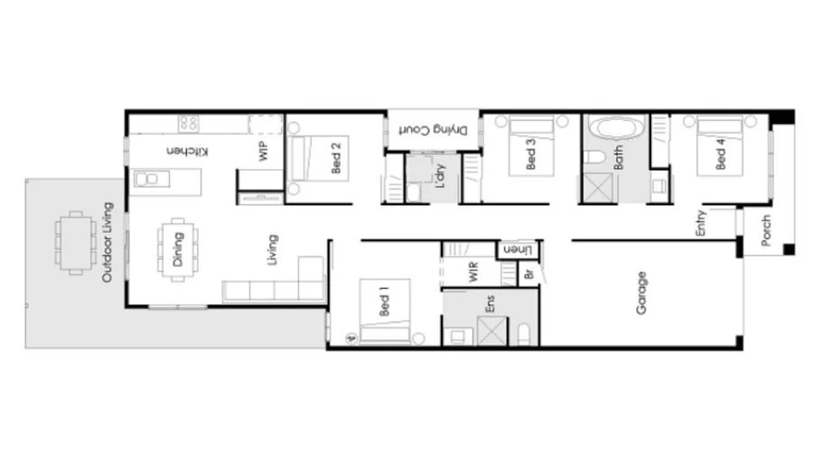
Description: Brand-new. Fully finished. Registered land. This is one of the smartest ways to buy new in Greenbank right now. This house and land opportunity in Greenbank offers buyers a rare combination of price certainty, modern inclusions and immediate build readiness. With the land already registered and the home delivered as a fixed-price, full turnkey package, there are no hidden extras and no surprises along the way. The Teviot 152 - Facade 5 design is a well-considered 4-bedroom, 2-bathroom, 1-car home that maximises space and liveability on a 255sqm allotment. The layout features open-plan living and dining at its centre, flowing through to an outdoor living area - ideal for everyday living, entertaining or long-term tenant appeal. Inside, the home includes inclusions buyers and tenants actively look for: - 2590mm high ceilings to the ground floor - 20mm reconstituted stone benchtops to the kitchen - Quality stainless steel kitchen appliances, including dishwasher - Reverse-cycle air-conditioning to living area and master bedroom - Ceiling fans and LED lighting throughout - Floor coverings throughout Delivered as a genuine turnkey package, everything is already taken care of: - Exposed aggregate driveway - Fully landscaped front and rear yards - Fencing included - Letterbox and clothesline There is nothing more to spend after handover. Property snapshot: 4 bedrooms, 2 bathrooms, 1-car garage Teviot 152 design - Facade 5 Land size 255sqm Registered land Fixed site costs included Full turnkey package Land $403,500 | Build $456,000 Fixed total price $865,500 Located in Greenbank, the property sits within a family-friendly, high-growth corridor supported by new schools, parks, shopping centres and expanding infrastructure. Easy access to Logan, Ipswich and Brisbane continues to drive strong demand from both renters and owner-occupiers. This opportunity is ideal for: - First home buyers wanting a brand-new home with certainty - Investors seeking a low-maintenance, modern rental - Buyers looking to enter a proven growth location at an accessible price point Contact Us Now For More Information Aaron Weaver on 0412828702 HOW WE CAN HELP YOU Through our trusted network of builders and land developers across South East Queensland, Asset Property Partners offers a no cost service that helps everyday Australian's make smarter property choices. Let us help you save time and money whilst taking the hassle out of building! Contact Aaron Weaver on 0412828702 or [email protected] to help you find the most suitable property option for you. Disclaimer: Disclaimer: All images and descriptions are indicative and may vary from the final product. All information contained herein is gathered from sources we believe to be reliable. Intending purchasers should satisfy themselves by clarification prior to purchase. Prices stated are subject to availability. All plans are copyright in whole and in part.
Location
Address
Greenbank QLD 4124
City
Greenbank
Features and Finishes
None
Legal Notice
Our comprehensive database is populated by our meticulous research and analysis of public data. MirrorRealEstate strives for accuracy and we make every effort to verify the information. However, MirrorRealEstate is not liable for the use or misuse of the site's information. The information displayed on MirrorRealEstate.com is for reference only.