Gyrodata, Campus 3, Aberdeen Innovation Park, Balgownie Drive, Bridge of Don, Aberdeen, AB22

GBP 250000 For Sale

Property Details

Property Type

N/A

Description

Property Details: • Type: N/A • Tenure: N/A • Floor Area: N/A

Key Features: • Eaves Height • LED lighting • Out of Town • Roller shutter doors • Cat 2 lighting

Location: • Nearest Station: N/A • Distance to Station: N/A

Agent Information: • Address: 3-5 Albyn Place, Aberdeen, AB10 1YE

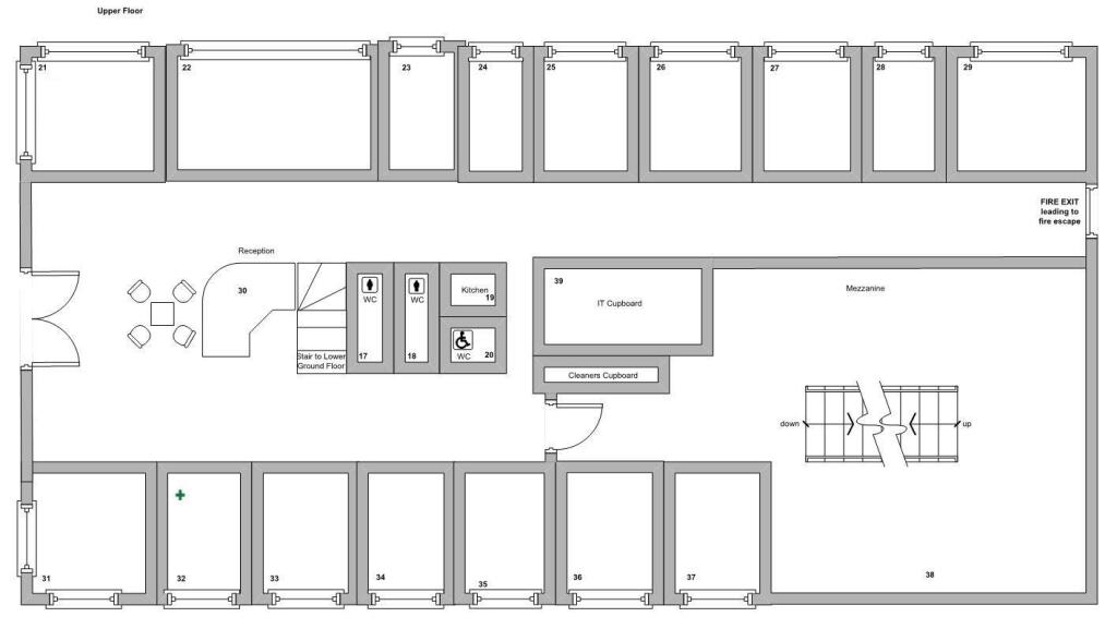
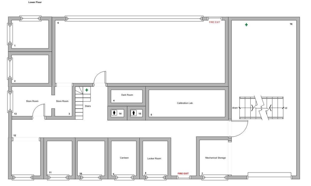
Full Description: Asking Price £250000.00 The property comprises a detached warehouse, office and lab facility, spread over two floors. The lower floor consists of warehouse space, accessed via an electric-operated roller door (4.10m wide x 5.72m high), lab space and offices. There is a metal staircase which leads to the mezzanine storage area. The warehouse eaves height is approximately 5.8m. The upper floor contains a double-height entrance area, cellular offices, a large boardroom and staff amenity. The mezzanine can also be accessed directly from this level. Heating is provided by electric wall panel heaters and there is a combination of Cat 2 and LED lighting. The offices and lab spaces have suspended ceiling tiles with integral lighting and carpet or linoleum tiles. The warehouse walls are blockwork to 2.87m with cladding above, with the offices being painted plasterboard. Externally, there is a small storage area to the rear, next to the shutter roller door, as well as a large car park which could be utilised for further laydown storage.The property is located within Bridge of Don, approximately 3 miles north of Aberdeen City Cente and 5 miles southeast from Aberdeen International Airport. Located within Aberdeen Innovation Park which provides a well-established and attractive parkland environment.

Location

Address

Gyrodata, Campus 3, Aberdeen Innovation Park, Balgownie Drive, Bridge of Don, Aberdeen, AB22

City

Aberdeen

Features and Finishes

Eaves Height, LED lighting, Out of Town, Roller shutter doors, Cat 2 lighting

Legal Notice

Our comprehensive database is populated by our meticulous research and analysis of public data. MirrorRealEstate strives for accuracy and we make every effort to verify the information. However, MirrorRealEstate is not liable for the use or misuse of the site's information. The information displayed on MirrorRealEstate.com is for reference only.

Real Estate Broker
Knight Frank, Aberdeen - Commercial
Brokerage
Knight Frank, Aberdeen - Commercial
Top Tags
Out of Town Eaves Height Cat 2 lighting
Likes

0

Views

35

This website uses cookies to ensure you get the best experience. Learn more