Halcyon Road, Birkenhead, Wirral, Merseyside, CH41

GBP 145000 For Sale

Property Details

Property Type

Plot

Description

Property Details: • Type: Plot • Tenure: N/A • Floor Area: N/A

Key Features: • Development Plot • New Build • New • 1 Plot

Location: • Nearest Station: Birkenhead Central Station • Distance to Station: 0.7 miles

Agent Information: • Address: 357 Woodchurch Road Prenton CH42 8PE

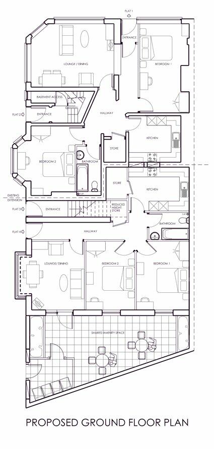
Full Description: Bradshaw Farnham and Lea are delighted to bring to market this new development opportunity. The land is approximately 0.63 acres and has planning permission for an extension and additional two flats. Giving the potential for a total of four flats on the whole premise, including the existing building adjacent on woodchurch road. It comes with planning permission and building control fees paid.There is an income of £600.00 from the workshop and £100 from the Garage totaling£700.00 paid monthly by licence to occupy with one months notice by either parties. Planning ref – APP/17/01488The site offers a fantastic residential development opportunity for investors and has great development value. The area is extremely popular and has great transport links and is only a short walk to Oxton village.BrochuresParticulars

Location

Address

Halcyon Road, Birkenhead, Wirral, Merseyside, CH41

City

Birkenhead

Features and Finishes

Development Plot, New Build, New, 1 Plot

Legal Notice

Our comprehensive database is populated by our meticulous research and analysis of public data. MirrorRealEstate strives for accuracy and we make every effort to verify the information. However, MirrorRealEstate is not liable for the use or misuse of the site's information. The information displayed on MirrorRealEstate.com is for reference only.

Real Estate Broker
Bradshaw Farnham & Lea, Wirral
Brokerage
Bradshaw Farnham & Lea, Wirral
Top Tags
Likes

0

Views

73

This website uses cookies to ensure you get the best experience. Learn more