Halifax Road, Bradford, West Yorkshire, BD6 2LP

GBP 70000 For Sale

Property Details

Property Type

3,746 sq ft

Description

Property Details: • Type: 3,746 sq ft • Tenure: N/A • Floor Area: N/A

Key Features: • Full planning permission granted • Residential land for sale • Planning permission for 4 bedroom detached house • Situated in a popular residential location • Freehold title

Location: • Nearest Station: Low Moor Station • Distance to Station: 1.6 miles

Agent Information: • Address: Mercantile House Silverlink, Wallsend, NE28 9NY

Full Description: *For sale via secure sale online bidding: terms and conditions apply.*

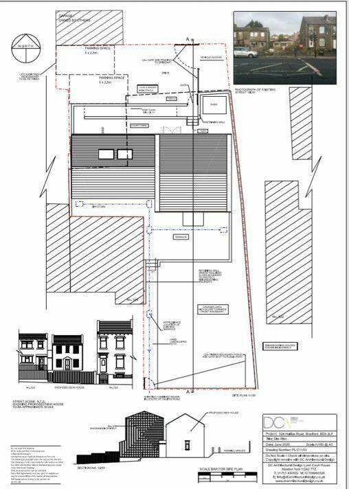
We are pleased to offer to auction this residential land for sale with approved planning permission for one 4 bedroom detached house as per plans shown. Situated in a popular residential location on the site of 524 Halifax Road.

The final build will be an impressive 4 bed detached residence with spacious open plan living on the ground floor opening out to the garden and a study/play room or fourth bedroom. On the first floor are three good sized bedrooms with en-suite to the master and a family bathroom.

Please note we have not inspected this property.LocationThe subject land is located on Halifax Road, Bradford. The subject land is located a short drive away from Bradford City Centre where you can find local schools, transport links and amenities. Leeds City Centre is approximately 9 miles to the east of Bradford.TenureFreehold. Title number WYK268399.Planning PermissionConstruction of 1 detached 3/4 bedroom detached new dwelling, parking and landscaping - Application No: 24/02708/FUL

City of Bradford Metropolitan District CouncilSite DetailsThe subject site measures approximately 0.086 acres (348.02sqm) with a perimeter of roughly 89.17m.Additional InformationFor further information please contact our office direct on , or alternatively via e-mail on . With regards to viewing the subject property, this is to be done strictly by appointment through Keith Pattinson Commercial department. Please contact us to arrange an internal inspection, or to register your interest.Auctioneers Additional CommentsPattinson Auction are working in Partnership with the marketing agent on this online auction sale and are referred to below as 'The Auctioneer'.

Please be aware that any inquiry, bid or viewing of the subject property will require your details to be shared between both the marketing agent and The Auctioneer in order that all matters can be dealt with effectively.

This auction lot is being sold either by, conditional (Modern) or unconditional (Traditional) auction terms and overseen by the auctioneer in partnership with the marketing agent.

The property is available to be viewed strictly by appointment only via the Marketing Agent or The Auctioneer. Bids can be made via The Auctioneers or the Marketing Agents website.Auctioneers Additional CommentsYour details may be shared with additional service providers via the marketing agent and/or The Auctioneer.

A Legal Pack associated with this particular property is available to view upon request and contains details relevant to the legal documentation enabling all interested parties to make an informed decision prior to bidding. The Legal Pack will also outline the buyers' obligations and sellers' commitments. It is strongly advised that you seek the counsel of a solicitor prior to proceeding with any property and/or Land Title purchase.

In order to submit a bid upon any property being marketed by The Auctioneer, all bidders/buyers will be required to adhere to a verification and identity process in accordance with Anti Money Laundering procedures.Auctioneers Additional CommentsIn order to secure the property and ensure commitment from the seller, upon exchange of contracts the successful bidder will be expected to pay a non-refundable deposit of 5% of the purchase price of the lot subject to any special conditions detailed in the legal pack. The deposit will be a contribution to the purchase price. A non-refundable reservation fee may also be payable upon agreement of sale (Details of which can be obtained from the auctioneers website). The Reservation Fee is in addition to the agreed purchase price and consideration should be made by the purchaser in relation to any Stamp Duty Land Tax liability associated with overall purchase costs.

Both the Marketing Agent and The Auctioneer may believe it necessary or beneficial to the customer to pass your details to third party service suppliers, from which a referral fee may be obtained. There is no requirement or indeed obligation to use these recommended suppliers or services.

Location

Address

Halifax Road, Bradford, West Yorkshire, BD6 2LP

City

Bradford

Features and Finishes

Full planning permission granted, Residential land for sale, Planning permission for 4 bedroom detached house, Situated in a popular residential location, Freehold title

Legal Notice

Our comprehensive database is populated by our meticulous research and analysis of public data. MirrorRealEstate strives for accuracy and we make every effort to verify the information. However, MirrorRealEstate is not liable for the use or misuse of the site's information. The information displayed on MirrorRealEstate.com is for reference only.

Real Estate Broker
Pattinsons, Pattinsons Auction- National Auctioneer
Brokerage
Pattinsons, Pattinsons Auction- National Auctioneer
Top Tags
freehold title
Likes

0

Views

27

This website uses cookies to ensure you get the best experience. Learn more