Hall Road, Asheldham

GBP 175000 For Sale

Property Details

Property Type

Plot

Description

Property Details: • Type: Plot • Tenure: N/A • Floor Area: N/A

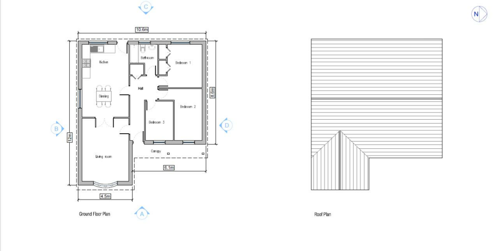
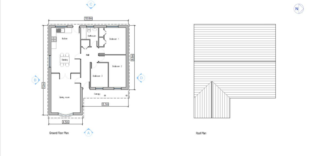
Key Features: • Planning Approved For A Three Bedroom Detached Bungalow • Unique Development Opportunity • Planning Ref: 24/00273/FUL • Detailed Planning Approved • 4.1 Miles From Burnham-on-Crouch • 2.1 Miles From A Train Station • Village Location • Offered With Vacant Possession • Excellent self build opportunity • Viewing Strictly By Appointment Only

Location: • Nearest Station: Southminster Station • Distance to Station: 1.4 miles

Agent Information: • Address: 35 The Street, Latchingdon, CM3 6JP

Full Description: ** Planning for a Three Bedroom Detached Bungalow ** This unique opportunity has arisen to purchase a development plot with planning passed for a residential three bedroom detached bungalow. The plot is located within this semi rural village of Asheldham on the outskirts of Southminster which benefits from a train station with links to London Liverpool Street. For further information relating to the planning approval please refer to Maldon District Councils website using reference: 24/00273/FULAgent Note - The plot comes with two allocated spaces. The neighbouring property benefits from the other two allocated parking spaces. Any interested party would need to satisfy their own investigations with regards to planning permission/re-development for the site.In order to appreciate the scale of the plot and the potential this has to offer, please contact us to arrange a site visit.Distances - Southminster Train Station - 2.1 milesOrmiston Rivers Academy - 4.8 milesLondon Southend Airport - 26.1 miles(All distances are approx.)Viewings - Strictly by appointment only through the selling agent Paul Mason Associates .Important Notices - We wish to inform all prospective purchasers that we have prepared these particulars including text, photographs and measurements as a general guide. Room sizes should not be relied upon for carpets and furnishings. We have not carried out a survey or tested the services, appliances and specific fittings. These particulars do not form part of a contract and must not be relied upon as statement or representation of fact.BrochuresHall Road, AsheldhamBrochure

Location

Address

Hall Road, Asheldham

City

Asheldham

Features and Finishes

Planning Approved For A Three Bedroom Detached Bungalow, Unique Development Opportunity, Planning Ref: 24/00273/FUL, Detailed Planning Approved, 4.1 Miles From Burnham-on-Crouch, 2.1 Miles From A Train Station, Village Location, Offered With Vacant Possession, Excellent self build opportunity, Viewing Strictly By Appointment Only

Legal Notice

Our comprehensive database is populated by our meticulous research and analysis of public data. MirrorRealEstate strives for accuracy and we make every effort to verify the information. However, MirrorRealEstate is not liable for the use or misuse of the site's information. The information displayed on MirrorRealEstate.com is for reference only.

Real Estate Broker
Paul Mason Associates, Latchingdon
Brokerage
Paul Mason Associates, Latchingdon
Top Tags
Likes

0

Views

67

This website uses cookies to ensure you get the best experience. Learn more