Hammond Drive, Ramsey, Harwich, Essex, CO12

GBP 500000 For Sale

Property Details

Property Type

Land

Description

Property Details: • Type: Land • Tenure: N/A • Floor Area: N/A

Key Features:

Location: • Nearest Station: Harwich International Station • Distance to Station: 1.9 miles

Agent Information: • Address: Tower House, 300 Main Road, Harwich, CO12 3PJ

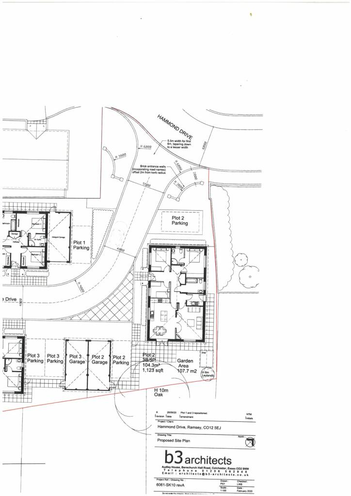
Full Description: HAMMOND DRIVE, RAMSEY, ESSEX. PRICE £500,000. LAND FOR SALE - A unique opportunity to purchase a plot of land with detailed planning permission for 3 x three bedroomed DETACHED BUNGALOWS with SINGLE GARAGE. The plot will be in a quiet cul-de-sac location located off Hammond drive, being within access to the Two Village primary school, Dovercourt town centre and A120.All details can be viewed under Tendring District Council Public Access site - planning permission number 20/00342/FUL link to site is: For easy reference Plot 1,2 & 3 on the block plan are on offer. Plots 4 & 5 are being retained by the current owner.Footings are already in place. Roadway to be provided at the buyer’s cost. For further information and to discuss this prospect in further detail contact .

Location

Address

Hammond Drive, Ramsey, Harwich, Essex, CO12

City

Essex

Legal Notice

Our comprehensive database is populated by our meticulous research and analysis of public data. MirrorRealEstate strives for accuracy and we make every effort to verify the information. However, MirrorRealEstate is not liable for the use or misuse of the site's information. The information displayed on MirrorRealEstate.com is for reference only.

Real Estate Broker
Harwich Village Homes, Harwich
Brokerage
Harwich Village Homes, Harwich
Top Tags
Plot 1 2 & 3 on offer
Likes

0

Views

66

This website uses cookies to ensure you get the best experience. Learn more