Hanbury, Bromsgrove, Worcestershire
Property Details
3
1
Detached
Description
Property Details: • Type: Detached • Tenure: N/A • Floor Area: N/A
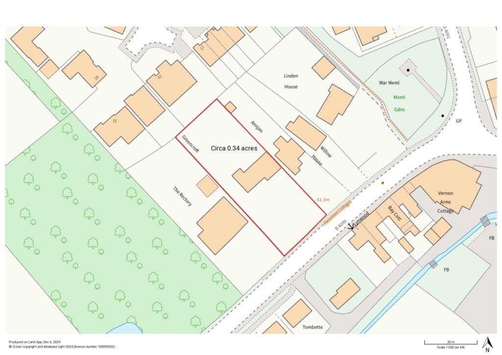
Key Features: • Sitting room with brick fireplace • Adjoining conservatory with doors to rear garden • Separate dining room open to kitchen with useful walk-in larder • Rear hall with utility area and separate cloakroom • 3 good sized bedrooms all with fitted wardrobes/ cupboards • Modern family bathroom • Integral double garage with boiler room/workshop • Gated gravel driveway with ample parking • Large, enclosed west facing rear garden • Gardens extending to 0.34 acres
Location: • Nearest Station: N/A • Distance to Station: N/A
Agent Information: • Address: Global House Hindlip Lane Worcester WR3 8SB
Full Description: Sought after convenient location with gardens extending to 0.34 acres.Spacious detached family home set back from the road with open views to the front and gardens extending to 0.34 acres located in this popular village.Ground floor• Hallway with parquet flooring • Dual aspect sitting room with brick fireplace• Adjoining garden room/conservatory with quarry tiled floor and double doors to rear garden• Dining room overlooking the front garden and open to the kitchen • Kitchen with quarry tiled floor, fitted units and fitted Lamona oven, hob and extractor and useful walk-in larder/pantry • Rear Hall with utility area, door to rear garden, separate cloakroom and integral door to garageFirst floor• Landing with window overlooking the rear garden, access to roof space and fitted cupboards with shelving• East facing bedroom 1 with open views to the front and 2 fitted wardrobes• 2 further bedrooms one with fitted wardrobes and the other with fitted cupboards• Modern family bathroom with a white suite, shower over bath, half tiling to walls and heated towel rail.Outside• Set back from the road • Gated access with gravel driveway providing ample parking • Large east facing lawned front garden with mature hedge screening• Integral double garaging with 2 metal up and over doors, shelving and door to boiler room/workshop with Worcester Greenstar oil fired central heating boiler • Enclosed and private west facing rear garden laid to lawn with mature trees and gated side access to the front of the property • Gardens extending in total to 0.34 acresSituationThe property is set back from the road and is situated in the popular village of Hanbury which is home to the National Trust’s Hanbury Hall, the Jinney Ring Craft Centre and other local amenities including Hanbury C of E First School, St Mary the Virgin Church and the Vernon Arms public house. More extensive facilities can be found in nearby Droitwich and Bromsgrove including railway stations and good access to M5 and M42 which links to M40 the principal route to London from the West Midlands. The area is also popular for its proximity to several excellent schools including RGS and Kings in Worcester and the renowned Bromsgrove School.Fixtures and FittingsAll fixtures, fittings and furniture such as curtains, light fittings, garden ornaments and statuary are excluded from the sale. Some may be available by separate negotiation.ServicesMains water, electric and drainage. The property benefits from oil fired central heating provided by the Worcester Greenstar Heatslave 18/25 boiler located in the boiler room/workshop. None of the services or appliances, heating installations, plumbing or electrical systems have been tested by the selling agents.We understand that the current broadband download speed at the property is around 14 Mbps, however please note that results will vary depending on the time a speed test is carried out. The estimated fastest download speed currently achievable for the property postcode area is around 24 Mbps (data taken from checker.ofcom.org.uk on 05/12/2024). Actual service availability at the property or speeds received may be different.We understand that the property is likely to have current mobile coverage outdoors (data taken from checker.ofcom.org.uk on 05/12/2024). Please note that actual services available may be different depending on the particular circumstances, precise location and network outages. TenureThe property is to be sold freehold with vacant possession.Local AuthorityWychavon District Council Council Tax Band: FPublic Rights of Way, Wayleaves and EasementsThe property is sold subject to all rights of way, wayleaves and easements whether or not they are defined in this brochure.Plans and BoundariesThe plans within these particulars are based on Ordnance Survey data and provided for reference only. They are believed to be correct but accuracy is not guaranteed. The purchaser shall be deemed to have full knowledge of all boundaries and the extent of ownership. Neither the vendor nor the vendor’s agents will be responsible for defining the boundaries or the ownership thereof.ViewingsStrictly by appointment through Fisher German LLP. DirectionsPostcode – B60 4DBwhat3words ///subway.conducted.canalBrochuresParticulars
Location
Address
Hanbury, Bromsgrove, Worcestershire
City
Bromsgrove
Features and Finishes
Sitting room with brick fireplace, Adjoining conservatory with doors to rear garden, Separate dining room open to kitchen with useful walk-in larder, Rear hall with utility area and separate cloakroom, 3 good sized bedrooms all with fitted wardrobes/ cupboards, Modern family bathroom, Integral double garage with boiler room/workshop, Gated gravel driveway with ample parking, Large, enclosed west facing rear garden, Gardens extending to 0.34 acres
Legal Notice
Our comprehensive database is populated by our meticulous research and analysis of public data. MirrorRealEstate strives for accuracy and we make every effort to verify the information. However, MirrorRealEstate is not liable for the use or misuse of the site's information. The information displayed on MirrorRealEstate.com is for reference only.