Handcroft Road, Croydon, Surrey CR0 3LE

GBP 1200000 For Sale

Property Details

Property Type

Plot

Description

Property Details: • Type: Plot • Tenure: N/A • Floor Area: N/A

Key Features: • Industrial For Sale • Existing Car Repair & Offices • MOT Station • Potential Alternative Uses • Possible Re Development • Vacant Possession • Failed Planning for 20 Flats • Good Location For Transport • Unconditional Offers Only • Sole Agents

Location: • Nearest Station: West Croydon Station • Distance to Station: 0.4 miles

Agent Information: • Address: 61 High Street Colliers Wood, London, SW19 2JF

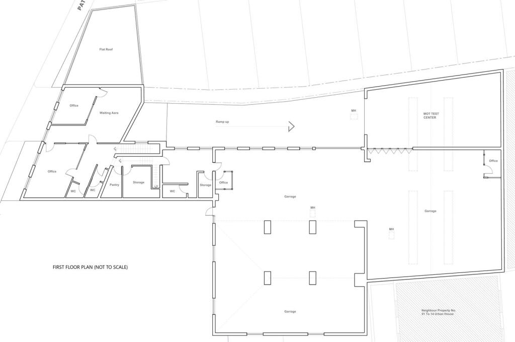
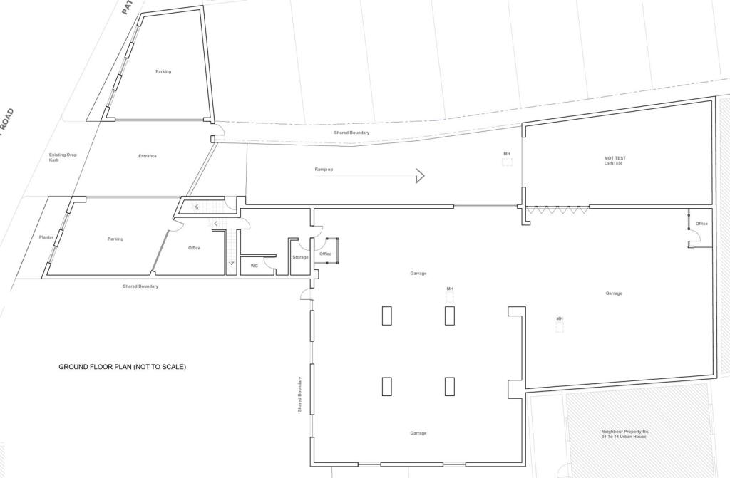
Full Description: Freehold Industrial site for sale with re development potential STP.Offered with vacant possession - Unconditional offers only - Sole agentsDescription - 0.2 acre Industrial site for sale with refused planning The property comprises workshop space with MOT and lift area, offices and store rooms and would suit occupiers / investors or developers Approximate GIA - 660 sqm (7,101 sq ft)Location - The property is situated North West of Central Croydon and offers excellent transport links Rail- West Croydon station: 0.5 miles away offering London Overground, Southern, and Thameslink services- East Croydon station: 1 mile away with Fast services to central London (15-20 minutes to London Bridge/Victoria) and direct trains to Gatwick Airport and BrightonTram- West Croydon tram stop: 0.5 miles away connecting Wimbledon, Beckenham, and New AddingtonRoad- Near A23 (to central London) and A232- Approximately 15 miles from M25Planning - In September 2024 an Outline planning application for 20 flats was refused by Croydon - Ref: 24/00279/OUTWe feel with more attention to detail and consideration to planning policies that a comprehensive resi or mixed use scheme would be allowedTerms - Unconditional offers are invited - Guide Price £1,200,000 FreeholdViewings - By appointment onlyContact sole agents CSJ BrochuresHandcroft Rd 156 - 158 Croydon Marketing particulBrochure

Location

Address

Handcroft Road, Croydon, Surrey CR0 3LE

City

London

Features and Finishes

Industrial For Sale, Existing Car Repair & Offices, MOT Station, Potential Alternative Uses, Possible Re Development, Vacant Possession, Failed Planning for 20 Flats, Good Location For Transport, Unconditional Offers Only, Sole Agents

Legal Notice

Our comprehensive database is populated by our meticulous research and analysis of public data. MirrorRealEstate strives for accuracy and we make every effort to verify the information. However, MirrorRealEstate is not liable for the use or misuse of the site's information. The information displayed on MirrorRealEstate.com is for reference only.

Real Estate Broker
Christopher St James, Colliers Wood
Brokerage
Christopher St James, Colliers Wood
Top Tags
MOT Station Vacant Possession Sole Agents
Likes

0

Views

81

This website uses cookies to ensure you get the best experience. Learn more