Happy Days Investment, 19 Church Hill, Verwood, BH31 6HT

GBP 1810000 For Sale

Property Details

Property Type

N/A

Description

Property Details: • Type: N/A • Tenure: N/A • Floor Area: N/A

Key Features: • Brand new standalone purpose built building • Let to a strong covenant, Happy Days Nurseries Ltd • Guide Price £1,810,000 (6.5% NIY) • Long term lease with approximately 24 years remaining (No Breaks) • Total Annual Income £125,000 per annum • Running yield to 8.4% with minimum fixed uplifts • Total Site Area 0.459 acres • Immaculate throughout • Highly efficient building with EPC Rating of A-15

Location: • Nearest Station: N/A • Distance to Station: N/A

Agent Information: • Address: Savills, Mountbatten House,1 Grosvenor Square Southampton SO15 2BZ

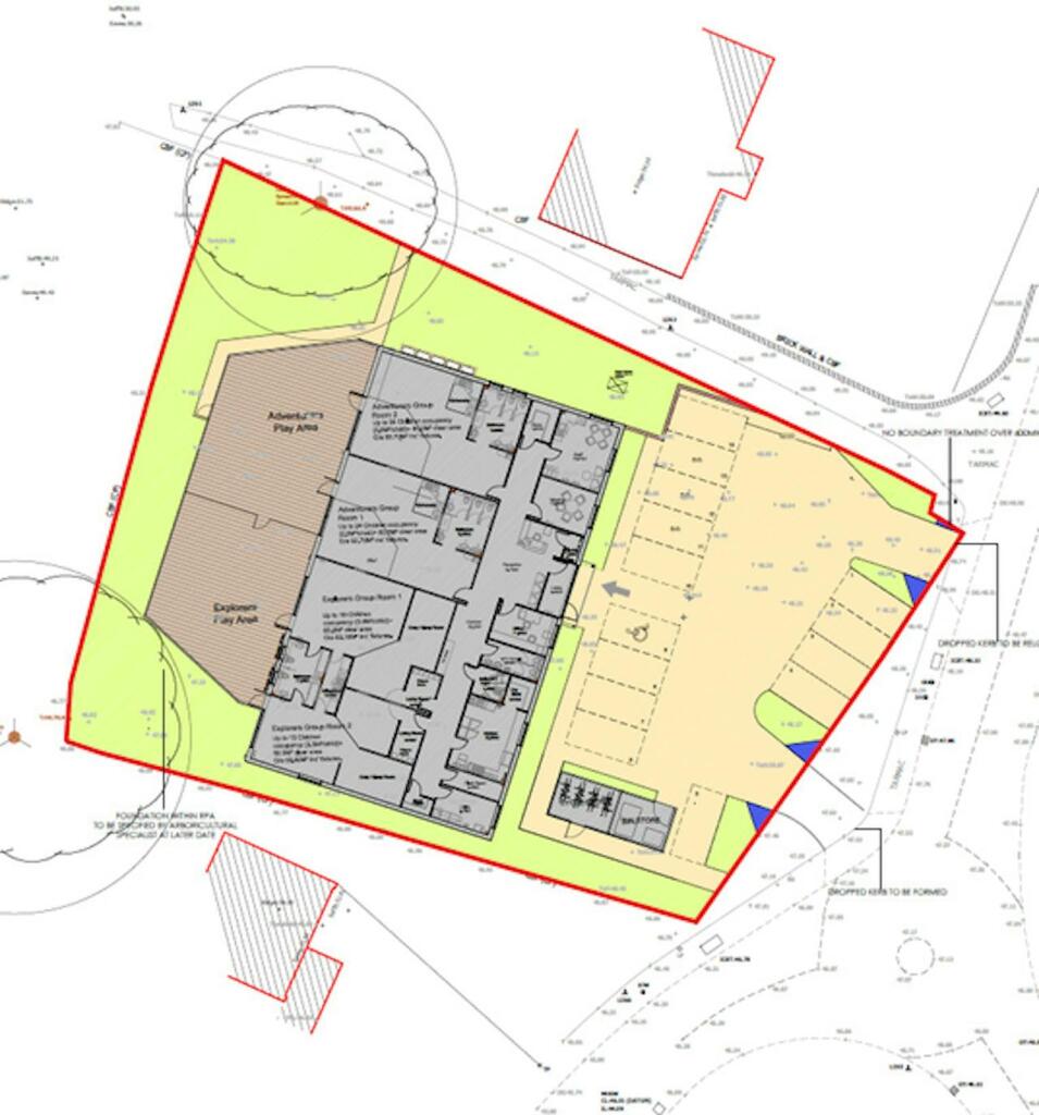
Full Description: LocationThe purpose built day nursery is located on Church Hill in Verwood, Dorset, within a well-established residential area approximately 5.8 miles west of Ringwood and around 10 miles north of Bournemouth. Church Hill sits just off the B3072, providing convenient access to the B3081 and the surrounding road network.The surrounding area is predominantly high-density residential, with a strong local catchment that supports consistent demand for childcare services. Verwood itself is a popular Dorset town with a mix of modern housing, local amenities, and good transport links to larger towns and the South Coast.Site DescriptionThe property comprises a recently developed purpose built single storey day nursery situated on a circa 0.459 acre site.The building is arranged over a single storey, is brick built and rendered, with clay tiled roof.AccommodationThe property comprises a purpose-built children’s day nursery arranged to provide a secure and welcoming reception area, several age-specific group rooms, staff facilities, and ancillary spaces. The internal layout includes baby and toddler rooms, each with access to dedicated washrooms and changing areas, as well as a kitchen, office, and staff room to support daily operations.Outside, the nursery benefits from secure, well-sized outdoor play areas at the rear, divided into separate zones for different age groups, providing safe and stimulating spaces for outdoor learning and play. The site also includes on-site parking with 14 spaces and drop-off bays for parents and staff. The overall layout is designed to meet the practical needs of a modern nursery setting.Floor AreasThe property has an approximate Gross Internal Area of 5,100 sq ft (473.8 sq m).PlanningThe property has current permitted use under Class D1 for schools, day nurseries, and crèches. Planning permission was granted on 27 July 2021 under application reference 3/20/0689/FUL for the construction of a single-storey detached building to be used as a children’s nursery (D1), with associated parking, bin storage, and cycle storage.TenureFreehold - Title DT301531.TenancyThe property is let by way of a lease dated 30 May 2024 for a term of 25 years at a passing rent of £125,000 per annum, expiring 26 March 2049. The tenant is Happy Days Nurseries Limited. The lease is subject to five yearly rent reviews on an upward only basis index linked to RPI with a cap and collar showing the rent increase profile based on the minimum and maximum levels.Covenant StrengthHappy Days opened their first nursery in 1991 and now operate 35 nurseries throughout the South West of the UK and Wales. With over thirty years of operating the company takes care of almost 2,000 children at their nurseries every day and employ approximately 500 personnel.Happy Days Nurseries Ltd has a D&B rating of 2A2 with a low risk of company default and therefore can be considered a strong covenant. For the most recent financial year end (2024) the company had a revenue of £20,100,000 and an adjusted EBITDA of £5,447,000. Their growth is clearly visible from the two summary graphs below. More financial information is available upon request.EPCA-15. The EPC will be provided to interested parties upon request.Rateable ValueAssessment TBC.Guide PriceUnconditional offers are invited in region of £1,810,000 subject to contract and exclusive of VAT. This reflects a Net Initial Yield of 6.5% after allowing for the usual purchaser’s costs.VATThe investment will be sold as a TOGC and will therefore be exempt from paying VAT.Anti-Money Laundering RegulationsRegulations require Savills to conduct various checks on purchasers and tenants. Further details are available upon request.ViewingFor a formal viewing strictly by appointment with Savills.

Location

Address

Happy Days Investment, 19 Church Hill, Verwood, BH31 6HT

City

Verwood

Features and Finishes

Brand new standalone purpose built building, Let to a strong covenant, Happy Days Nurseries Ltd, Guide Price £1,810,000 (6.5% NIY), Long term lease with approximately 24 years remaining (No Breaks), Total Annual Income £125,000 per annum, Running yield to 8.4% with minimum fixed uplifts, Total Site Area 0.459 acres, Immaculate throughout, Highly efficient building with EPC Rating of A-15

Legal Notice

Our comprehensive database is populated by our meticulous research and analysis of public data. MirrorRealEstate strives for accuracy and we make every effort to verify the information. However, MirrorRealEstate is not liable for the use or misuse of the site's information. The information displayed on MirrorRealEstate.com is for reference only.

Real Estate Broker
Savills, Southampton - Licensed Leisure
Brokerage
Savills, Southampton - Licensed Leisure
Top Tags
Brand new Long term lease Running yield
Likes

0

Views

27

This website uses cookies to ensure you get the best experience. Learn more